開間:11.5米 進深:9米
占地面積:114.69平米
建筑面積:334.28平米
造價預算:40萬
設計功能:
地下室:臥室x2、酒窖、家庭影院、儲藏間、衛生間、活動室;
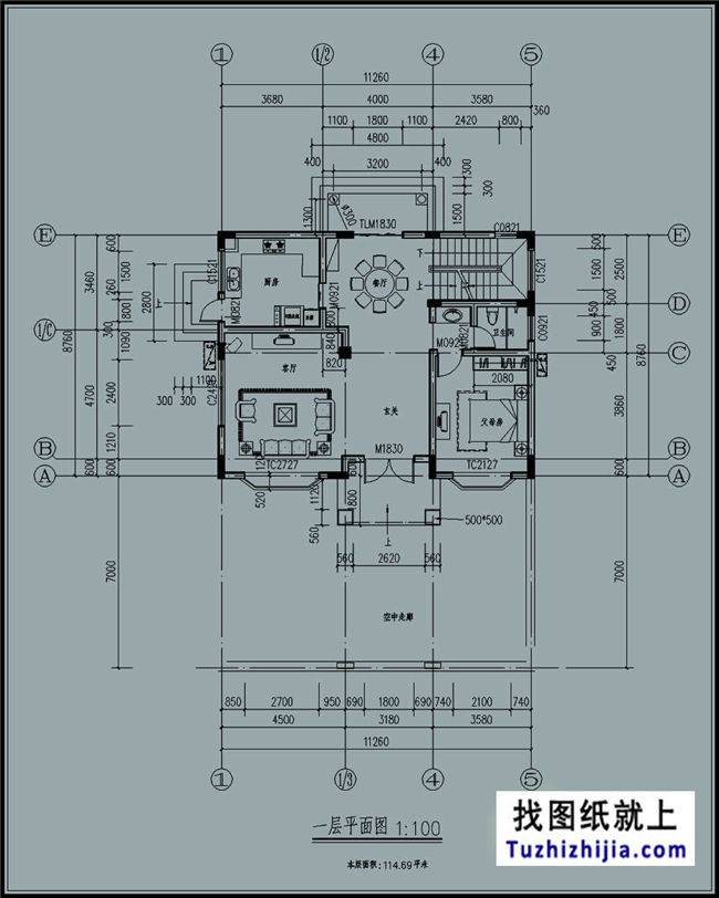
一層:客廳、玄關、廚房、餐廳、父母房、衛生間;
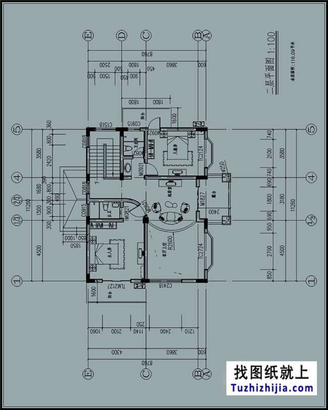
二層:臥室x2、客廳上空、衛生間x2、露臺、陽臺x2。
圖紙詳情:
建施:建筑設計總說明、門窗表、地下室層平面圖、一層平面圖、二層平面圖、東 立面圖、南立面圖西立面圖、北立面圖、剖面圖、樓梯平面圖/剖面圖、門 窗大樣圖、天溝大樣圖、門樓大樣、屋檐大樣;
結施:結構設計總說明、基礎平面布E圖、基礎大樣圖、地下室及以下柱定位及配 筋圖、一層拄定位及配筋圖、二層拄定位及配筋圖、二層柱以上定位及配筋 圖、基礎梁配筋圖、一層梁配筋圖、一層板配筋圖、二層梁配筋圖、二層板 酉己筋圖、隔熱層梁配筋圖、隔熱層板配筋圖、屋面梁配筋圖、屋面板配筋圖 樓梯結構圖;
水施:給排水設計說明、地下室給排水平面圖、 一層給排水平面圖、二層給排水平 面圖、衛生間大樣圖、給排水系統圖;
電施:電氣設計說明及圖例、地下室照明平面圖、一層照明平面圖、二層照明平面 圖、地下室插座平面圖、一層插座平面圖二層插座平面圖、 地下室接地及 弱電平面圖一層弱電平面圖、二層弱電平面圖、屋頂防雷裝置平面圖、配 電系統圖衛生間局部等電位聯接示意詳圖、弱電系統圖。





































































































