
|
現在流行說自己是這條gai上最靚的仔,那么你想成為村里最亮的仔嘛,今天介紹的這款自建二層別墅,不管是從外觀到室內裝修,都足以讓你在村里遭人嫉妒,絕對是村頭到村尾最靚的人,一起來看一下邵陽王先生的家吧! 根據基本詳情了解到,王先生的這款別墅寬12.54m,進深11.04m,總占地面積138.44㎡。 主體結構形式采用立柱加強混合結構大大降低了建筑成本到主體建成一共花費30多萬。這么寬敞的面積,這么漂亮的房子30多萬一點都不貴,結束進程后,王先生都覺得自己花的這錢值,相比在大城市買房而言更劃得來。
這款兩層別墅簡直就是為農村朋友們量身定做的戶型,方方正正,沒有過多的裝飾,也沒有浮夸的造型。此款別墅更注重的是清新自然的設計,飄窗的設計和文化石的搭配盡顯美感,四周綠樹環繞,室內溫馨典雅。一家人住在這樣的環境下,別提有多溫馨。
圖為:王先生實拍正視圖,不得不承認王先生的地基有很好的地理位置優勢。四周無高樓,只有綠樹圍繞,確保了室內的通透和采光,這樣的地理優勢可謂是冬暖夏涼。大落窗臥室,清晨起來推開窗,陽光明媚,每天都是好心情。 圖為別墅俯視圖:
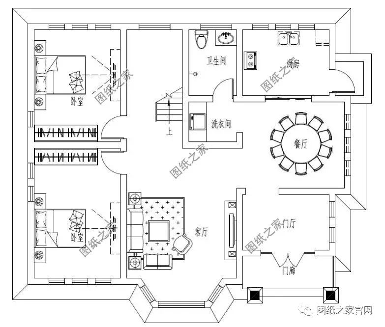
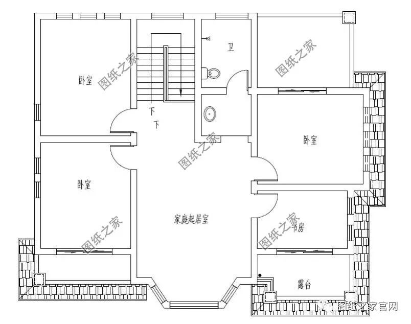
平面布局圖:
接下來讓我們看一下這款別墅一層布局。 王先生的這款別墅坐北朝南,門前有平臺,方便停放車,平時還可以在小院之中種植一些自己喜愛的花草果樹,入門后首先看見的是玄關的設計,這里起到很好的裝飾作用,又起到一定的阻隔隱私效果,緊接著是餐廳、廚房,左側設計有兩間臥室,樓梯還有寬敞的客廳。
上樓梯后就能看見生活起居室,三間臥室,一間書房和一個寬敞的露臺。 臥室之間相分隔,雖然沒有獨衛的設計,但門外不遠處樓梯口就有獨衛的設計,也算是比較方便。其中書房的設計最為巧妙,緊靠露臺,既為業主營造了一個安靜的工作學習環境,又能保障書房內的采光。看書疲倦了,還可以眺望遠處的鄉村風景,稍作調整。
不知道王先生的這款別墅戶型是否是你喜歡的款式呢? 轉載請注明出自別墅設計網:http://m.bjcyqiyejia.com/ 千套別墅設計帶別墅圖片 |

兩層20萬農村自建房設計圖,經典農村建房款式,越看越有韻味
占地:160平方米
豪華三層歐式風格別墅圖紙設計,挑空客廳大面寬大戶型
占地:225.72平方米
簡簡單單的二層樓房的設計圖,24萬就能搞定
占地:120平方米
農村一層平房設計圖及效果圖,一層房屋設計方案推薦
占地:270平方米
造價40萬三層大氣自建房設計圖紙,鄉村別墅建造圖
占地:40萬
130平方米農村兩層別墅圖紙及效果圖12X11米
占地:133平方米
兄弟共建一層雙拼平房設計圖,省錢省心又可相互照應
占地:177.27平方米
帶車庫二層農村豪華別墅設計圖,主體25萬左右
占地:170平方米左右
小戶型徽派建筑別墅設計方案大全,三層別墅設計圖推薦
占地:95平方米
四間兩層別墅房屋設計圖,外觀效果圖好看
占地:235平方米
三層歐式自建房別墅設計方案,11x11米洋氣實用,飽受大家好評
占地:127平方米
兩層半新農村別墅設計圖紙,CAD設計圖+高清效果圖
占地:90平方米
140平方米一層歐式新農村平房設計圖,主體造價僅11萬
占地:141.218平方米
二層中式四合院別墅設計圖,經典、漂亮(全套施工圖)
占地:350平方米
農村一層小別墅設計圖,經濟大氣,16米乘9米
占地:124.12平方米
120平米簡單實用型農村小別墅設計圖,二層屋頂為全露臺,小開間
占地:120平方米
簡單實用二層雙拼樓房設計圖,造價30萬左右
占地:180平方米
最新農村20萬元二層半別墅設計圖,占地僅110多平
占地:110平方米
巴洛克風格農村二層別墅設計圖(偏法式),對稱式設計,太講究
占地:210.25平方米
15萬左右一層農村自建房設計圖,一家住剛剛好
占地:131.33平方米
歷時8個月的農村自建小別墅分享!
閱讀次數:76058次
包工包料20萬左右的自建房屋設計過程直播:
閱讀次數:55732次
農村一層自建房屋設計全程實錄!
閱讀次數:50210次
自建20萬小兩層偽別墅全程直播!
閱讀次數:49326次
安徽農村自建房屋過程全程直播。
閱讀次數:42364次
衡陽一層半自建農村房屋設計全程實錄直播!
閱讀次數:38030次
11×10米農村二層自建房施工圖,比效果圖還漂亮,村里看了都夸贊
閱讀次數:37485次
35萬建好農村復式二層小別墅,實拍完工圖,附施工戶型圖【建房
閱讀次數:36514次
鄉村自建房屋設計全程直播!
閱讀次數:28882次
為父母,為自己退休后的養老打造一個舒適的鄉間農院!
閱讀次數:27118次
