
|
農村人喜歡簡單、大方,內部空間利用率高,布局合理的二層樓房戶型,外觀嘛,也要漂亮些,不需要花花哨哨,不需要豪華高端,看起來精致、漂亮就行,實用兼顧好看才好嘛!小編推薦的這幾款施工簡單、造價低,村里的施工隊都能做,布局合理,考慮到農村人的生活習慣,以實用為主,造價有個20、30十萬就能建起來,朋友們,不要光看,挑選一套喜歡的圖紙,趕快農村自建吧! 第一套?
本方案為占地120平方米的二層小別墅設計圖,外觀時尚、漂亮,內部布局合理,造價合適,是一款經典的別墅設計方案。占地面積:11.5m*10.5m(含門廳),建筑高度:9.20米(含屋頂);
設計功能: 一層戶型設計:客廳、臥室x2、廚房、餐廳、衛生間 二層戶型設計:主臥、起居室、臥室x2、書房、衛生間、陽臺 第二套:
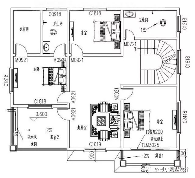
本戶型為兩層三間新農村住宅設計圖,精美的外墻,漂亮的造型符合80后、90后年輕人的審美,內部戶型設計合理,南北通透,采光,通風好,設計師把衛生間放到邊角恰到好處。
占地面積:13.0m*12.2m,155平方米左右;建筑高度:10.34米(含屋頂);
設計功能: 一層戶型設計:大堂、客廳、餐廳、廚房、臥室x2、衛生間; 二層戶型設計:客廳、主臥(帶衣帽間和衛生間)、臥室x2、衛生間、大露臺、陽臺;
農村建房新一代很多還是擺脫了老一代的假大空的建房理念,二層別墅也開始獨領風騷,以精致美觀成為農村一道美麗的風景線,農村現在人口少了很多自然不用擔心房間不夠住,一般家庭4到5個房間足夠,二層別墅足夠勝任,多余空間添置些提高生活品質的功能也是綽綽有余,那些光想拿高度勝過的人如意算盤就打空了,不說視覺上,單純從居住感受上落后的可不是一點點。今天帶來這套二層豪華別墅,已經有心急的朋友建好了,30w驚艷全村,實景圖比效果圖更棒! 圖紙之家-專注農村別墅/自建房設計18年,集合國內200余位經驗豐富的設計師,被評為口碑最好的農村建筑設計公司! |

帶架空層的三層農村別墅設計火了!雨季不怕返潮
占地:147.15平方米
歐式三層樓中樓別墅設計圖紙帶車庫(含外觀效果圖)
占地:130平方米
農村自建房10萬以下兩層別墅設計圖含外觀效果圖片
占地:105平方米
面寬13米方正戶型二層小別墅設計方案,南北通透采光好
占地:166.78平方米
二層半農村小別墅設計方案圖,南方設計圖精選
占地:82平方米
140平方米新農村二層自建平屋頂房屋設計圖紙帶外觀效果圖
占地:140平方米左右
帶中式小院的二層仿古別墅設計圖,小戶型自建房設計,外觀美極
占地:82.94
兩層半雙拼別墅設計方案,超大露臺+歐式風格,好設計別錯過!
占地:175.8平方米
農村現代三層建房子設計圖及圖片,平屋頂的設計
占地:150平方米
農村新款二層中式別墅設計圖效果圖,帶堂屋設計
占地:144平方米
農村二層中式小三合院別墅全套設計圖,民族特色風格
占地:122平方米
二層歐式小別墅設計方案,全套建筑設計圖紙+外觀效果圖
占地:146平方米
三層新農村別墅設計圖片及全套圖紙,外形對稱,帶露臺,這個戶
占地:160平方米
新農村二層帶庭院的小別墅設計圖及效果圖
占地:137平方米
160平方米經典鄉村二層房屋設計圖紙
占地:160平方米
農村小戶型二層房屋別墅設計圖,帶外觀效果圖
占地:95平方米
豪華三層歐式雙拼別墅設計圖紙,雙拼歐式別墅如何設計看這款
占地:258.294平方米
農村三層帶露臺、帶車庫房屋設計圖,含外觀圖片
占地:155平方米
美式風格鄉村兩層小別墅自建房設計圖,外觀圖好看
占地:150平方米
歐式獨棟二層小別墅設計圖,客廳中空,占地126平米
占地:120平方米
推薦:10套新農村自建房設計圖,2026年最新設計
閱讀次數:4825737次
100套鄉村別墅圖片大全,2026年最新設計
閱讀次數:2492203次
6款農村蓋一層平房的設計圖,10萬元就能建起來
閱讀次數:1852637次
這11個一層農村自建房別墅火爆了朋友圈!我最喜歡戶型十!你呢
閱讀次數:750268次
農村6萬元建一層小別墅圖,你敢相信嗎
閱讀次數:567686次
農村5萬塊就能自建房,6套普通房子設計圖分享,你沒看錯!
閱讀次數:419410次
8套農村漂亮三間平房圖片,非常適合在農村修建!
閱讀次數:411197次
農村自建房化糞池怎么做?附方案及施工過程
閱讀次數:391783次
農村一層三間平房設計圖,告別土氣養老房,讓人忍不住點贊
閱讀次數:350581次
新農村二層樓房圖片造價12萬,挑一套回家建房吧!
閱讀次數:349126次
