
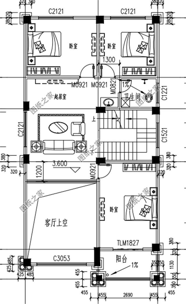
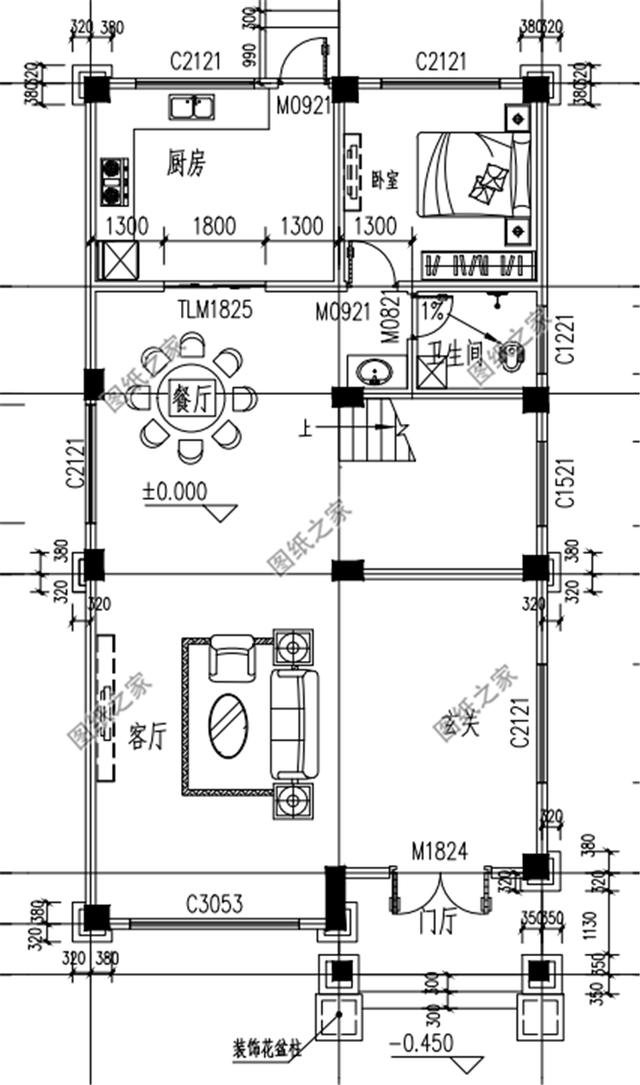
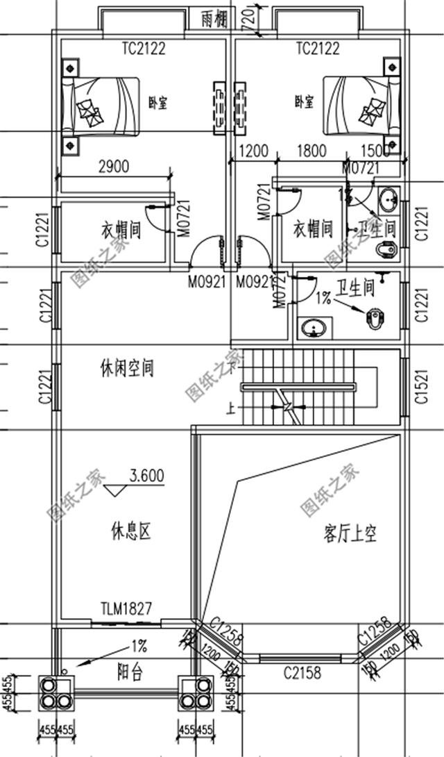
款式一:農村二層小別墅自建房屋設計圖![]() 農村二層小別墅自建房屋設計圖,客廳中空,占地150平米,不僅住 占地面積:9m*17m,150平方米左右; 建筑層高:二層; 建筑高度:10.95米(含屋頂); ![]() ![]() 設計功能: 一層戶型設計:客廳、餐廳、廚房、臥室(帶衣帽間、衛生間)、衛生間; 二層戶型設計:客廳上空、休息區、主臥(帶衛生間,衣帽間)、臥室(帶衣帽間)、衛生間; 款式二:農村三層樓房圖片及施工圖![]() 農村三層樓房新款圖片及施工圖,帶車庫,小開間大進深,造型簡單實用,易于施工。結合了現代風格的時尚,沉穩中又不失時尚,大方得體。 占地面積:7.5m*14.1m,一層占地110平方米左右; 建筑層高:三層; 建筑高度:13.08米(含屋頂); ![]() ![]() ![]() 設計功能: 一 層:客廳、廚房、餐廳、臥室、衛生間、洗衣房、車庫(不需要車庫可以做成臥室); 二 層:臥室(帶衣帽間,書房,衛生間,陽臺)、臥室×2、衛生間; 三 層:臥室(帶衣帽間)x2、多功能區、衛生間、大露臺; 款式三:農村歐式三層小別墅設計圖,客廳中空![]() 農村歐式三層小別墅設計圖,客廳中空,空間利用率高。 占地面積:8.0m*15.8m,一層占地120平方米左右; 建筑層高:三層; 建筑高度:13.6米(含屋頂); ![]() ![]() ![]() 設計功能: 一 層:客廳、廚房、餐廳、臥室、衛生間; 二 層:客廳上空、起居室、臥室x3、衛生間、陽臺; 三 層:起居室、臥室x2、衛生間、大露臺、涼亭; 以上就是小開間大進深的農村別墅外觀圖,建好了照樣美觀宜居。
圖紙之家-專注農村別墅/自建房設計18年,集合國內200余位經驗豐富的設計師,被評為口碑最好的農村建筑設計公司! |

一層鄉村別墅設計戶型圖,占地100平左右,外觀很時尚
占地:100平方米左右
面寬13米帶堂屋三層農村別墅圖,新中式大氣風格
占地:151.58平方米
145平方米新農村二層別墅設計效果圖及施工圖,12.6米x11.4米
占地:147平方米
農村三層帶電梯小別墅設計施工圖,120平方米左右12.2x10.8米
占地:123平方米
帶車庫的農村四合院別墅設計圖,富貴人家的象征,日子越過越興
占地:219.24平方米
160平方米農村二層四合院別墅設計圖及外觀圖片
占地:158平方米
130平方米現代簡約農村兩層樓房施工設計圖紙帶外觀圖
占地:126平方米
新中式農村三層樓房設計圖紙,全套圖紙設計,線條錯落有致
占地:130平方米
三層復式別墅設計圖紙(含效果圖),復式住宅設計圖精選
占地:147.7平方米
13×16米農村自建樓房三層別墅戶型設計圖,大氣
占地:168平方米
好評不斷二層簡歐房屋設計圖,占地150平,農村建房就選它
占地:150平方米左右
歐式小型二層別墅效果圖片,帶全套Cad別墅設計圖紙
占地:120平方米
新中式三層樓房設計圖,外觀精致布局也是相當的樸實
占地:140平方米
農村最好看18萬左右兩層小樓圖,外觀、造型簡潔大方
占地:120平方米
農村建房兄弟雙拼三層,經典的歐式風格,大氣的外觀
占地:250平方米
帶地下室三間二層農村自建房設計圖,現代平屋頂設計
占地:99.98平方米
進深15米新農村三層房屋設計圖紙,農村住宅設計圖集
占地:128平方米
四開間兩層別墅設計圖,農村自建住著舒適的好方案!
占地:187.04平方米
農村120平米三間三層樓房設計圖紙,農村理想住房設計圖
占地:120平方米
新農村雙拼別墅全套設計圖方案及效果圖,餐廳廚房獨立設計
占地:338.02平方米
推薦:10套新農村自建房設計圖,2026年最新設計
閱讀次數:4825737次
100套鄉村別墅圖片大全,2026年最新設計
閱讀次數:2492203次
6款農村蓋一層平房的設計圖,10萬元就能建起來
閱讀次數:1852637次
這11個一層農村自建房別墅火爆了朋友圈!我最喜歡戶型十!你呢
閱讀次數:750268次
農村6萬元建一層小別墅圖,你敢相信嗎
閱讀次數:567686次
農村5萬塊就能自建房,6套普通房子設計圖分享,你沒看錯!
閱讀次數:419410次
8套農村漂亮三間平房圖片,非常適合在農村修建!
閱讀次數:411197次
農村自建房化糞池怎么做?附方案及施工過程
閱讀次數:391783次
農村一層三間平房設計圖,告別土氣養老房,讓人忍不住點贊
閱讀次數:350581次
新農村二層樓房圖片造價12萬,挑一套回家建房吧!
閱讀次數:349126次
