
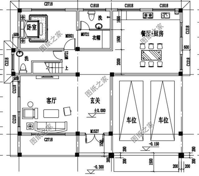
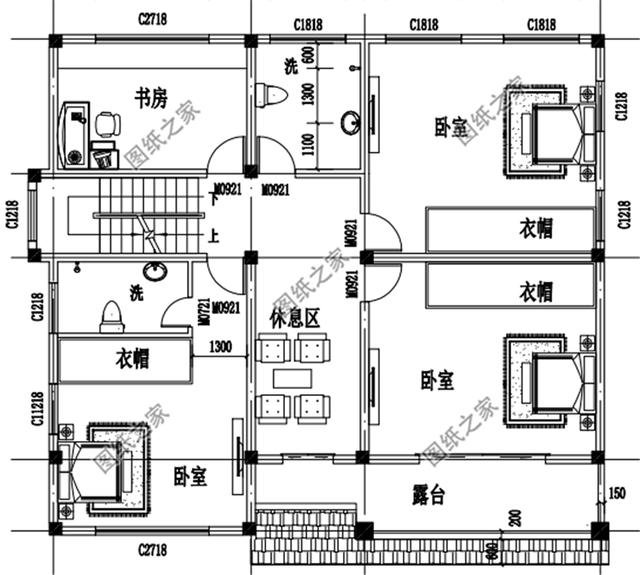
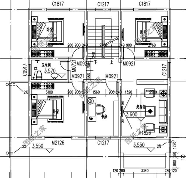
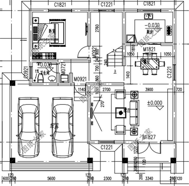
現代風格別墅一:獨棟兩層四開間別墅設計圖方案![]() 獨棟兩層四開間別墅設計圖方案,現代風格,入戶就是門廳,客廳兩者結合,大大增加了室內的空間,兩間臥室中間隔著一間衛生間,方便家人生活起居;二層布置有5間臥室,滿足家庭的生活需求。 占地面積:15.76m*8.76m,144平方米左右; 建筑層高:二層; 建筑高度:10米(含屋頂); ![]() ![]() 設計功能: 一層戶型:客廳、廚房、餐廳、雜物間、臥室(帶衛生間)、臥室、衛生間; 二層戶型:客廳、臥室x5、衛生間x2、陽臺; 現代風格別墅二:150平二層別墅房屋設計圖,現代風格![]() 本方案為150平二層別墅房屋設計圖,現代風格,造型精致、美觀,戶型布局合理,空間利用高,帶開放式車庫。 占地面積:13.00m*11.70m,150平方米左右; 建筑層高:二層; 建筑高度:9.00米(含屋頂); ![]() ![]() 設計功能: 一層戶型:玄關、客廳、餐廳、廚房、衛生間、臥室(帶衣帽間和衛生間)、車位; 二層戶型:小客廳、主臥(帶衛生間和衣帽間)、臥室x2、書房、衛生間、露臺; 現代風格別墅三:農村二層房子圖片及施工圖紙![]() 二層農村房子圖片及施工圖紙,敞開式的車庫,帶著一點東南亞熱帶風格的氣息,外觀的配色非常的時尚,青白色系的搭配,把家的溫馨感體現的淋漓盡致。 占地面積:12.6m*11.7m,134平方米左右; 建筑層高:二層; 建筑高度:10.37米(含屋頂); ![]() ![]() 設計功能: 一層戶型:客廳、餐廳、廚房、衛生間、臥室、車庫; 二層戶型:起居室、臥室x3、衛生間、陽臺、露臺; 看完了這幾款農村現代風格別墅圖片,大家覺得哪套最適合你家呢。
圖紙之家-專注農村別墅/自建房設計18年,集合國內200余位經驗豐富的設計師,被評為口碑最好的農村建筑設計公司! |

農村三層房屋設計圖紙,三層農村住宅設計效果圖,11米*10米
占地:100平方米
120平米二層別墅樓設計圖,簡約省錢也能建的漂亮
占地:121.74平方米
面寬8米多的三層農村別墅設計圖,小開間宅基地推薦
占地:112.82平方米
兄弟雙拼別墅設計戶型圖及設計方案圖,帶外觀效果圖,外觀好看
占地:185平方米(單棟)
中式三層新農村房子別墅設計圖,看了那么久,還是中式最有韻味
占地:97.2平方米
占地180平方米二層農村新款樓房別墅設計圖,外觀漂亮
占地:180平方米
面寬18米二層新中式別墅圖紙設計,復式戶型,帶堂屋
占地:269.83平方米
農村一層中式三合院別墅設計圖,戶型經典實用,19米乘15米
占地:243.21平方米
50萬左右農村三層別墅設計圖紙,帶大露臺,外觀大氣
占地:150平方米
小型三層別墅cad建筑圖紙帶效果圖,帶屋頂露臺
占地:101平方米左右
120平農村三層自建房屋設計圖,旋轉樓梯復式別墅戶型方案
占地:119.23平方米
16米乘12米農村二層別墅設計圖,布局舒適寬敞、客廳挑空
占地:188.18平方米
四層豪華歐式別墅自建樓房設計圖紙,帶效果圖和全套施工圖
占地:300平方米
鄉村最美三層別墅設計圖自建房戶型,外觀圖精致漂亮
占地:134平方米
160平方米二層自建別墅設計施工建筑圖紙及效果圖,15x11米
占地:163平方米
新農村四層獨棟復式別墅設計圖,設計豪華時尚
占地:140平方米
一層帶閣樓農村別墅設計圖,多得一層可變空間,太值了!
占地:165.89平方米
青瓦仿古中式大型三層別墅設計圖,韻味十足復古大氣
占地:300平方米
平屋頂現代風格三層蓋別墅設計圖紙,面寬18米
占地:235.34平方米
高端四間五間兩層別墅設計圖紙,開間20米自建房效果圖
占地:265平方米
推薦:10套新農村自建房設計圖,2026年最新設計
閱讀次數:4825737次
100套鄉村別墅圖片大全,2026年最新設計
閱讀次數:2492203次
6款農村蓋一層平房的設計圖,10萬元就能建起來
閱讀次數:1852637次
這11個一層農村自建房別墅火爆了朋友圈!我最喜歡戶型十!你呢
閱讀次數:750268次
農村6萬元建一層小別墅圖,你敢相信嗎
閱讀次數:567686次
農村5萬塊就能自建房,6套普通房子設計圖分享,你沒看錯!
閱讀次數:419410次
8套農村漂亮三間平房圖片,非常適合在農村修建!
閱讀次數:411197次
農村自建房化糞池怎么做?附方案及施工過程
閱讀次數:391783次
農村一層三間平房設計圖,告別土氣養老房,讓人忍不住點贊
閱讀次數:350581次
新農村二層樓房圖片造價12萬,挑一套回家建房吧!
閱讀次數:349126次
