
|
這套別墅共有三層,整體設計簡單大氣,外墻采用暖黃色為主色,溫馨雅致,利用弧線和直線設計,線條優美,簡潔的外觀設計十分耐看,幾代不過時!
圖紙詳情 層數: 三層 結構形式: 磚混結構 開間: 10.8米 進深: 10.1米 占地面積: 122.06平方米 總建筑面積: 321.97平方米 建筑總高度:13.05米 主體造價: 30萬 室內設有娛樂室、活動室、多個臥室套房等,功能多樣化,整體平面布局緊湊、功能分區合理,房間尺度設計適宜,屋頂有大露臺,還有觀景亭,可以休閑納涼,晾曬衣物,避免衣物被雨淋。空間利用率高,富有時代氣息。 設計功能
一層 一層: 門廳、客廳、臥室(帶衛生間)、娛樂室、餐廳、廚房、公衛
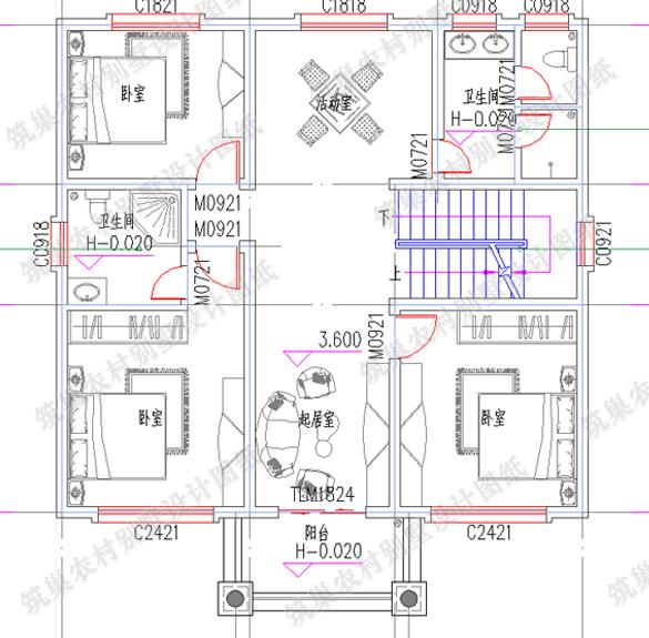
二層 二 層: 起居室(帶陽臺)、臥室(帶衛生間)、臥室×2、活動室、公衛
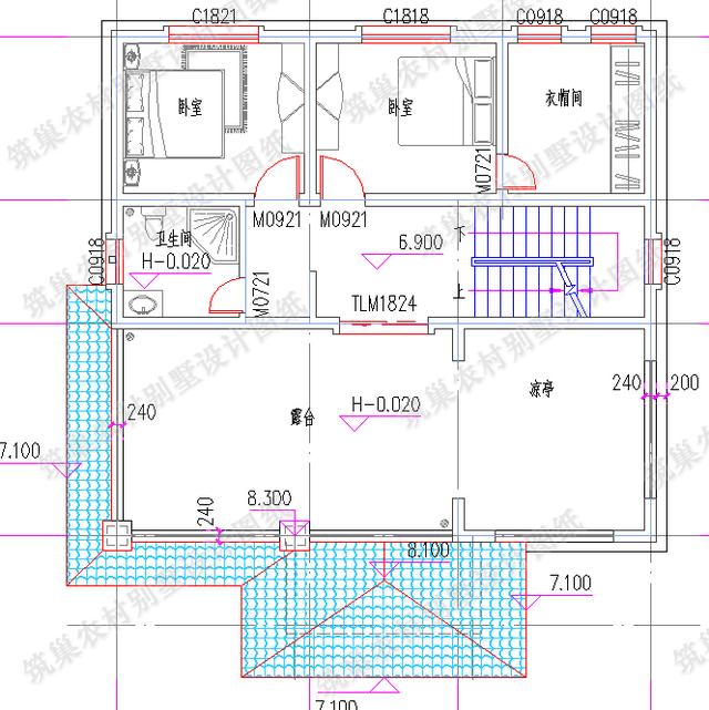
三層 三層: 臥室(帶衣帽間)、臥室、公衛、露臺 圖紙內容 建 筑 圖: 包含各層平面圖、各立面圖、剖面圖、樓梯大樣圖、門窗尺寸、各節點大樣等 結 構 圖: 包含地基、梁、柱、樓板詳細配筋及做法、節點配筋圖等 給排水圖: 包含每層給排水平面圖及大樣圖、說明等 電 氣 圖: 包含每層照明平面圖、插座平面圖、弱電平面圖及系統圖、說明等 圖紙之家-專注農村別墅/自建房設計18年,集合國內200余位經驗豐富的設計師,被評為口碑最好的農村建筑設計公司! |

新中式二層雙拼別墅農村自建房子設計圖紙,面寬19米
占地:240平方米左右,單
高顏值農村二層別墅設計圖,顏值在線造價不高,建房好選擇!
占地:216.93平方米
三層樓房設計圖紙含效果圖,外觀造型高低錯落,別致大方
占地:152.4平方米
農村三層別墅新款圖片及戶型設計圖紙大全,110平簡歐風格
占地:110平方米左右
80平方米新農村三層房屋設計圖,新農村住宅圖紙精選
占地:80平方米
90平小戶型四層房屋設計圖,農村自建別墅推薦
占地:90平方米
居家養老一層別墅設計圖,面寬20米,農村建一棟不吃虧
占地:259.7平方米
建房老師傅力薦!這塊二層簡歐設計圖,花錢少、顏值高,必火
占地:131.65平方米
復式樓房二層農村別墅圖,村里建一棟絕對人人都羨慕
占地:130.2平方米
農村三層自建房子圖紙設計方案,開間11米左右
占地:151.96平方米
占地180平方米二層農村新款樓房別墅設計圖,外觀漂亮
占地:180平方米
最好看的農村三層樓房設計圖,占地113平米,小平米大格局
占地:110平方米
農村自建房就選它!一層新中式設計,日常居住需求全搞定
占地:128.45平方米
農村二層四合院設計圖,秒殺各種洋別墅
占地:220平方米
120平米農村40萬三層別墅自建房款式,簡歐風格
占地:120平方米
新中式三層雙拼別墅設計圖及效果圖,中式大氣風格
占地:235.26平方米
帶開放式車庫二層農村自建別墅設計方案,造價僅15萬
占地:89.412平方米
14x12.5米二層農村別墅設計圖,布局完美獨立,顏值高又實用
占地:153.95平方米
一層農村房子設計圖,含外觀效果圖,自建推薦戶型
占地:200平方米
新式160平方米農村三層樓房設計圖,客廳中空
占地:160平方米
推薦:10套新農村自建房設計圖,2026年最新設計
閱讀次數:4825737次
100套鄉村別墅圖片大全,2026年最新設計
閱讀次數:2492203次
6款農村蓋一層平房的設計圖,10萬元就能建起來
閱讀次數:1852637次
這11個一層農村自建房別墅火爆了朋友圈!我最喜歡戶型十!你呢
閱讀次數:750268次
農村6萬元建一層小別墅圖,你敢相信嗎
閱讀次數:567686次
農村5萬塊就能自建房,6套普通房子設計圖分享,你沒看錯!
閱讀次數:419410次
8套農村漂亮三間平房圖片,非常適合在農村修建!
閱讀次數:411197次
農村自建房化糞池怎么做?附方案及施工過程
閱讀次數:391783次
農村一層三間平房設計圖,告別土氣養老房,讓人忍不住點贊
閱讀次數:350581次
新農村二層樓房圖片造價12萬,挑一套回家建房吧!
閱讀次數:349126次
