
|
農村建房子現在也是越來越講究,如今人們都掙錢了,都想著在自家宅基地上建一棟漂亮的房子,一般二層別墅是最多的,造價經濟實惠,還非常溫馨實用。今天給大家分享的這三款最新二層樓設計圖,外觀雖然看上去很簡單但是很漂亮,不到30萬就能拿下,要建房的伙伴們福利來啦。 第一款:農村兩層別墅設計圖,占地110平米,外觀對稱設計圖紙介紹:這款二層別墅占地110平左右,外觀對稱設計,戶型方正,外觀大氣,造型非常符合80后、90后年輕人的審美,入戶門廳設立成外飄形式,增加建筑的造型感,后門入戶形式,設有上下臺階,陽臺和屋檐細節,每一處設計得都很細膩。 占地面積:11.4m*10.32m,108.98平方米左右; 建筑層高:二層; 建筑高度:9.56米(含屋頂); 設計功能: 一層戶型:玄關、客廳、廚房、餐廳、陽光房、衛生間; 二層戶型:活動空間、臥室(帶衛生間)、臥室x2、衛生間、陽臺; ![]() ![]() ![]() 第二款:農村二層樓房設計圖,占地125平米左右,造價20來萬圖紙介紹:這款二層別墅占地125平方米,造價20來萬,整體大氣美觀又舒適,別墅多開窗,在保障采光與通風的情況下擴大了視野,使別墅整體更加具有實用性。 占地面積:12.4m*9.9m,125平方米左右; 建筑層高:二層; 建筑高度:9.45米(含屋頂); 設計功能: 一層戶型:客廳、廚房、餐廳、臥室(帶衛生間)、臥室、衛生間; 二層戶型:客廳、棋牌室、臥室(帶衛生間)、臥室、書房、陽臺; ![]() ![]() ![]() ![]() 第三款:農村二層別墅設計圖,占地140平米左右,風格簡單圖紙介紹:本戶型扎到你137平米左右,造價不到30萬,風格簡單,雖然不是很豪華,但是足夠溫馨實用。顏色搭配沉穩大氣,多少年之后也不會過時。 占地面積:12.0m*11.0m,137平方米左右; 建筑層高:二層; 建筑高度:8.6米(含屋頂); 設計功能: 一層戶型:客廳、餐廳、廚房、衛生間、主臥(帶衛生間)、娛樂室; 二層戶型:起居室、臥室(帶書房、露臺)、臥室(帶衛生間)、臥室x2、衛生間; ![]() ![]() ![]() ![]() 不知道這三款二層別墅設計圖大家最喜歡哪一款呢?歡迎下方留言評論。
圖紙之家-專注農村別墅/自建房設計18年,集合國內200余位經驗豐富的設計師,被評為口碑最好的農村建筑設計公司! |

簡單平房農村自建一層別墅設計圖,時尚大氣,造價經濟
占地:166平方米
240平方米新農村漂亮的兄弟雙拼別墅設計圖紙,單戶120平
占地:239平方米
占地70平方米的三層獨棟別墅設計圖,小戶型自建房屋效果圖
占地:70平方米左右
一層三間別墅設計圖,經濟實用 + 好看不貴,養老自住都適配
占地:119.31平方米
豪華高端三層帶地下室別墅設計圖,可帶電梯
占地:210平方米
10米×12米30萬以內農村建房三層豪華歐式別墅圖,處處顯品味
占地:120平方米
2026年獨棟三層雙拼別墅戶型圖,總占地面積300平方米左右
占地:300平方米
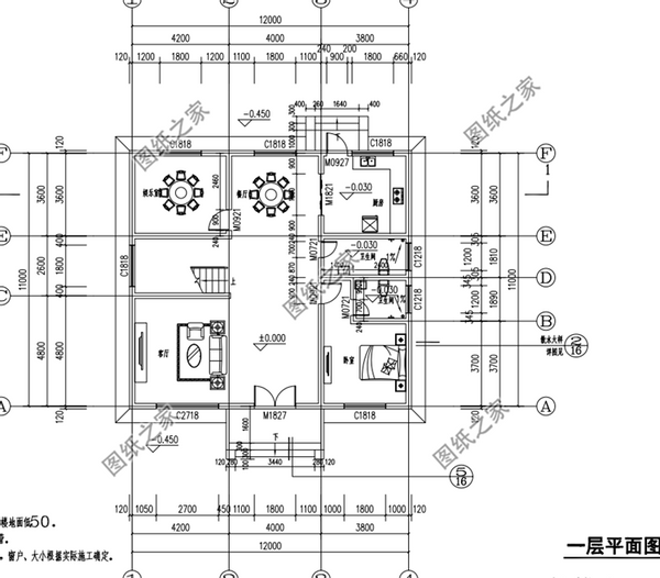
14米乘10米農村二層別墅新款,外觀對稱設計,經久耐看!
占地:140平方米
農村自建房三間設計圖,花錢少效果好12米乘9米,經濟適用性價比
占地:108.9平方米
最接農村地氣的二層農村小別墅,造價30萬左右,經濟實用
占地:170平方米
超現代風格平頂別墅設計圖,外觀時尚,80、90很喜歡
占地:112.18平方米
大平方大面積別墅設計方案圖,樓中樓客廳中空
占地:247平方米
農村18萬元二層小樓圖,占地120平面,戶型緊湊合理
占地:120平方米
雅致的鄉下二層蓋別墅設計圖紙,造價35萬左右
占地:178平方米
戳中年輕人喜好!時尚三層自建房,簡約時尚設計,住著舒適自然
占地:169.76平方米
農村自建四層百萬豪宅別墅設計圖,客廳中空
占地:170平方米
農村兄弟雙拼平房別墅設計圖,獨門獨戶,一層也能建雙拼
占地:274.18平方米
農村三層半自建房子效果圖及設計圖,戶型占地90平方米左右
占地:92.17平方米
帶屋頂平臺的一層農村小別墅圖,有閣樓有露臺
占地:152平方米
面寬8米多的三層農村別墅設計圖,小開間宅基地推薦
占地:112.82平方米
推薦:10套新農村自建房設計圖,2026年最新設計
閱讀次數:4825737次
100套鄉村別墅圖片大全,2026年最新設計
閱讀次數:2492203次
6款農村蓋一層平房的設計圖,10萬元就能建起來
閱讀次數:1852637次
這11個一層農村自建房別墅火爆了朋友圈!我最喜歡戶型十!你呢
閱讀次數:750268次
農村6萬元建一層小別墅圖,你敢相信嗎
閱讀次數:567686次
農村5萬塊就能自建房,6套普通房子設計圖分享,你沒看錯!
閱讀次數:419410次
8套農村漂亮三間平房圖片,非常適合在農村修建!
閱讀次數:411197次
農村自建房化糞池怎么做?附方案及施工過程
閱讀次數:391783次
農村一層三間平房設計圖,告別土氣養老房,讓人忍不住點贊
閱讀次數:350581次
新農村二層樓房圖片造價12萬,挑一套回家建房吧!
閱讀次數:349126次
