
|
現在,很多人自建房的觀念就是越大越好,功能越全越好,這樣想本身沒有什么問題,但是對房子的本質特點居住性有所忽略,所以,我們應該逐漸重視起來,花最少的錢辦最實在的事,這才是目前我們最應該考慮的事。本期,我們推薦一款二層帶閣樓的農村自建房,建筑占地80平米,滿足三口之家,擴展之后滿足五口之家的居住需求,這才叫生活。 外觀效果圖:
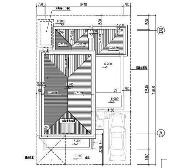
簡約式現代風格的小別墅,建筑戶型小巧,造型別致,平頂和坡頂相結合,讓建筑的立體感更強,長體型的窗戶跟現在常見的寬體和方體均不同,很有特點;建筑裝飾也非常簡單,磚色的整體外墻非常適合農村環境,搭配白色的線條體現層次感,整體裝飾清新又亮眼。建筑錯面設計,可以空出足夠的空間進行室外活動或停放車輛,圍上院墻,這就是一片自有的溫馨居所。建筑一側不開窗,適合一側有鄰居的家庭建造。 立面示意圖:
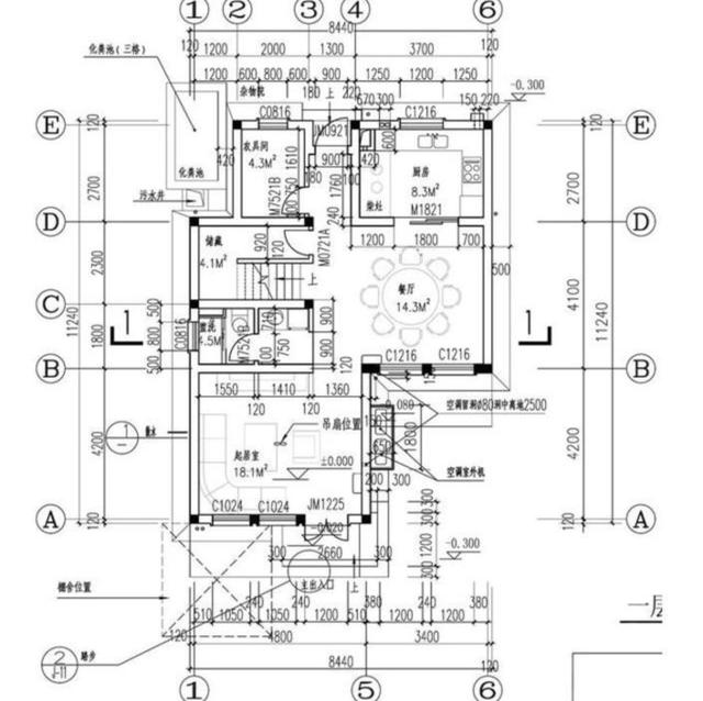
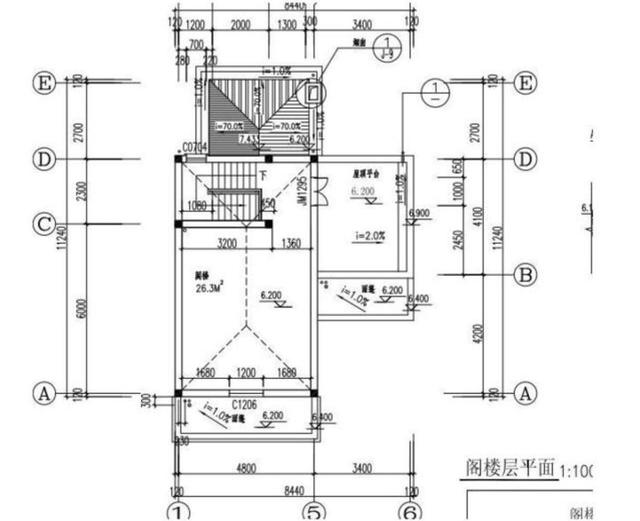
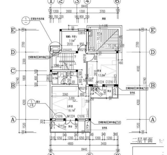
建筑采用磚混結構建成,設計尺寸:開間8.44米,進深16米(帶小院),建筑進深12.8米,建筑占地76.6平米,二層建筑面積72.57平米,閣樓面積35.9平米,自動建筑面積185平米,建筑二層平臺高度6.9米,檐口高度7.85米,總高度9.76米。 平面布局圖:
建筑入戶設客廳,進深設廚房和餐廳,餐廳可容納十多人同時就餐,廚房設煙囪加柴火灶,形成左側柴火在,右側現代灶臺的環形布局,使用更加方便,家里來再多的人也能做出足夠的美食,另設獨立衛生間、樓梯間和農具間,衛生間臨近客廳,使用方便,樓梯間做雜物室,充分利用空間,農具間儲藏物品,分類儲存保證家里干凈整潔,農具間和廚房中間開后門,直通室外,使用方便;室外設一處停車區,并預留空調室外機的位置,一處化糞池,做旱廁也有足夠的空間。 二層設兩間臥室,均為陽面設計,設陽臺,陰面設一間獨立書房,三個房間均預留空調室外機位置;閣樓空間寬敞,開設小窗戶,即使做臥室,也能保證室內有一定的采光度;室外活動平臺,滿足日常晾曬和基本活動之用。 這樣小巧又實用的戶型,足夠滿足三口之家甚至五口之家的居住需求,當然對于老人養老也是非常實用的居所,小巧實用容易打理,老人使用也比較方便。 ![]()
圖紙之家-專注農村別墅/自建房設計18年,集合國內200余位經驗豐富的設計師,被評為口碑最好的農村建筑設計公司! |

新農村三層自建房屋設計圖,含外觀圖片
占地:136平方米
110平方米二層自建小別墅設計CAD施工圖紙帶效果圖,12x13米
占地:110平方米
農村二層樓建房造型圖及全套施工圖紙,占地110平米左右,帶地下
占地:110平方米
100平方米農村二層CAD設計圖紙帶外觀圖,12X8米
占地:100平方米
新中式風格二層住宅設計圖,農村自建房不土氣
占地:144.5平方米
12x12農村三層別墅設計圖,自建房屋推薦戶型
占地:148平方米
四間兩層實用簡約的住房設計圖,毛坯24萬,農村建正合適
占地:159.48平方米
一層農村自建房別墅設計方案,左右對稱布局好
占地:154平方米
最耐看的二層別墅設計圖,15米寬12米深,方正大氣經濟美觀!
占地:180平方米
50萬左右農村豪華二層別墅設計圖 ,大廳中空,外觀精美
占地:210平方米
鄉村房屋改建三層房屋設計圖紙,農村樓房設計圖推薦
占地:90平方米
農村二層復式小別墅設計,進深12米,農村建房最受歡迎的款
占地:149.096 平方
復式客廳挑空三層別墅設計圖,帶外觀效果圖片,推薦
占地:150平方米
農村現代三層建房子設計圖及圖片,平屋頂的設計
占地:150平方米
80平農村房屋設計圖,小戶型自建房三層別墅推薦
占地:80平方米
新農村自建二層小樓圖,時尚大方,外型精美,室內布局也很贊
占地:137平方米
帶獨立堂屋的農村自建房設計,二層別墅設計方案圖
占地:109平方米左右
兩層農村自建二層樓設計圖紙,面寬12米左右
占地:131.2平方米
占地180平方米二層農村新款樓房別墅設計圖,外觀漂亮
占地:180平方米
三層現代簡約農村雙拼小別墅圖,好看精致,開間17米
占地:187平方米
推薦:10套新農村自建房設計圖,2026年最新設計
閱讀次數:4825737次
100套鄉村別墅圖片大全,2026年最新設計
閱讀次數:2492203次
6款農村蓋一層平房的設計圖,10萬元就能建起來
閱讀次數:1852637次
這11個一層農村自建房別墅火爆了朋友圈!我最喜歡戶型十!你呢
閱讀次數:750268次
農村6萬元建一層小別墅圖,你敢相信嗎
閱讀次數:567686次
農村5萬塊就能自建房,6套普通房子設計圖分享,你沒看錯!
閱讀次數:419410次
8套農村漂亮三間平房圖片,非常適合在農村修建!
閱讀次數:411197次
農村自建房化糞池怎么做?附方案及施工過程
閱讀次數:391783次
農村一層三間平房設計圖,告別土氣養老房,讓人忍不住點贊
閱讀次數:350581次
新農村二層樓房圖片造價12萬,挑一套回家建房吧!
閱讀次數:349126次
