
|
目前為止,小編給大家分享的圖紙不下五百套,從咨詢的情況來看,小編給大家做了一個總結:最適合農村建房的戶型,既要外觀漂亮大氣,施工還要簡單,農村施工的師傅能看懂,室內布局要與農村生活需求相符。 今天小編給大家分享的這款25萬占地100平米3廳6臥三層帶車庫農村小別墅施工效果圖,完全從農村建房需求考慮,一起來看看! 圖紙詳情 層數: 三層 結構形式: 磚混結構 主體造價: 25萬 開間: 11.14米 進深: 9.74米 占地面積: 100平方米 建筑面積: 300平方米
效果圖 這款戶型外觀設計比較簡單,一層外墻采用深墨綠色墻磚,二層是棕黃色墻磚,三層使用顏色對比較強的白色墻漆裝飾,屋頂深紅色坡面設計,顏色搭配由深到淺逐層遞進,南北開設窗戶,采光透氣。一層設有車庫、二三層均有陽臺,共有6個臥室,可滿足農村三代同堂生活需求。 設計功能
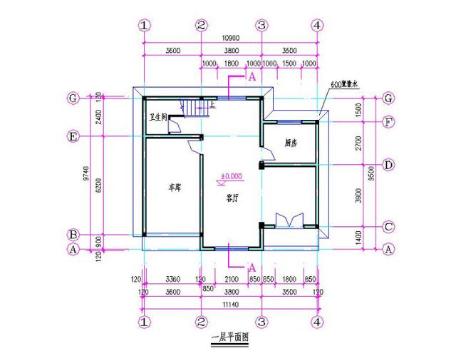
一層平面圖 一 層: 客廳/餐廳、廚房、衛生間、車庫
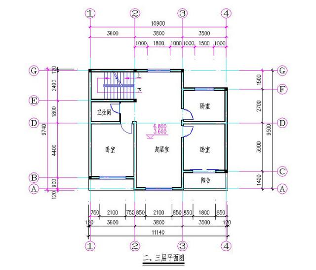
二三層平面圖 二 層: 臥室(附衛生間)、臥室(附陽臺)、臥室、起居室、衛生間 三 層: 臥室(附衛生間)、臥室(附陽臺)、臥室、起居室、衛生間 圖紙之家-專注農村別墅/自建房設計18年,集合國內200余位經驗豐富的設計師,被評為口碑最好的農村建筑設計公司! |

帶車庫三層自建別墅設計圖紙,客廳中空,外觀洋氣時尚,這款戶
占地:170平方米
一層帶架空層的農村別墅設計圖,防潮、停車、放農具全都滿足
占地:163.78平方米
兄弟倆二層雙拼別墅設計圖紙,一層共用,設計新穎
占地:180平方米
小戶型三層別墅房屋設計圖紙,占地80多平米,麻雀雖小五臟俱全
占地:80平方米
一層新中式三合院設計,建好城里大平層都不香了
占地:294.12平方米
客廳中空三層復式別墅房屋設計圖,帶外觀效果圖
占地:145平方米
美式二層別墅設計圖,含外觀效果圖,造型精美
占地:144平方米
一層農房別墅設計圖紙,140平方米,面寬15米
占地:140平方米
120平農村三層房屋設計圖,含外觀圖片
占地:120平方米
160平方米新農村三層半別墅設計圖11X16米65萬以內
占地:160平方米
農村建房的“面子天花板”!新中式簡歐結合三層別墅,進門就被
占地:225.98平方米
18米寬一層中式小院設計圖,三合院戶型布局寬敞大氣
占地:232.75平方米
2026新中式農村三層別墅圖,外觀漂亮,看一眼就愛上
占地:240平方米
農村二間二層房子設計方案圖,造型小巧精致,10米乘12米
占地:110平方米
三層兄弟雙拼別墅設計方案,外觀大氣布局實用,住的舒服
占地:197.67平方米
110平房子設計圖,經典的農村自建房屋設計圖
占地:110平方米
大開間小進深的一層別墅設計圖,進深僅8.7米,獨立餐廚照樣美觀
占地:130.32平方米
帶配房的二層農村小別墅設計圖,大方適用,耐看經濟
占地:152.28平方米
四開間二層別墅設計圖,造型精美經典舒適,火爆全村的戶型
占地:150.882平方米
新農村二層自建房設計圖帶外觀圖片,自建戶型大全
占地:160平方米
推薦:10套新農村自建房設計圖,2026年最新設計
閱讀次數:4825737次
100套鄉村別墅圖片大全,2026年最新設計
閱讀次數:2492203次
6款農村蓋一層平房的設計圖,10萬元就能建起來
閱讀次數:1852637次
這11個一層農村自建房別墅火爆了朋友圈!我最喜歡戶型十!你呢
閱讀次數:750268次
農村6萬元建一層小別墅圖,你敢相信嗎
閱讀次數:567686次
農村5萬塊就能自建房,6套普通房子設計圖分享,你沒看錯!
閱讀次數:419410次
8套農村漂亮三間平房圖片,非常適合在農村修建!
閱讀次數:411197次
農村自建房化糞池怎么做?附方案及施工過程
閱讀次數:391783次
農村一層三間平房設計圖,告別土氣養老房,讓人忍不住點贊
閱讀次數:350581次
新農村二層樓房圖片造價12萬,挑一套回家建房吧!
閱讀次數:349126次
