
|
對于在城里買房與在農村建房的選擇問題,以前很多人都選擇在城里買房,但是現在會有不少人選擇在農村自建房。不僅是因為成立的房價居高不下,還是因為農村發展得越來越好。在農村自建房,在居住空間和生活環境方面都比城市好很多。 下邊給大家分享6套農村二層別墅設計,附帶全套圖紙,美觀大方包你滿意! 第一套
正面效果圖
背面效果圖
鳥瞰圖 占地面積:16.6m*9.8m,占地120平方米左右; 建筑高度:9.48米(含屋頂); 設計功能: 一層戶型:客廳、餐廳、廚房、主臥(帶衛生間); 二層戶型:公共休閑區、臥室(帶衛生間)×3、陽臺×2; 悶頂層:悶頂層;
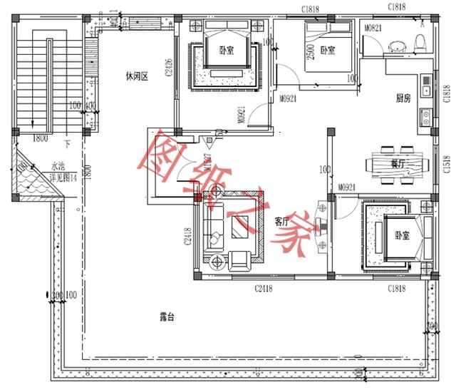
一層平面圖
二層平面圖
立面圖 第二套
正面效果圖
背面效果圖
鳥瞰圖 占地面積:16.8m*10.8m,占地180平方米左右; 建筑高度:10.4米(含屋頂); 設計功能: 一層戶型:客廳、餐廳、廚房、衛生間、臥室(衛生間)、茶室、儲藏間; 二層戶型:主臥(帶衛生間)、臥室×2、衛生間、棋牌室(帶衛生間)、露臺;
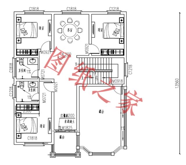
一層平面圖
二層平面圖
立面圖 第三套
正面效果圖
背面效果圖
鳥瞰圖 占地面積:10.5m*18.5m,194平方米左右(含小院); 建筑高度:10.624米(含屋頂); 設計功能: 地下戶型設計:臥室×2、儲藏間、衛生間、酒窖、 一層戶型設計:客廳、餐廳、廚房、臥室x2、衛生間、棋牌室; 二層戶型設計:主臥(帶衛生間)、臥室x2、衛生間、茶室、露臺;
地下平面圖
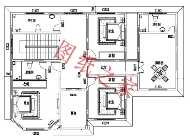
一層平面圖
二層平面圖
立面圖 第四套
正面效果圖
背面效果圖
鳥瞰圖 占地面積:16.3m*13.2m,200平方米左右; 建筑高度:10.18米(含屋頂); 設計功能: 一層戶型設計:功能自定義 二層戶型設計:客廳、餐廳、廚房、臥室×3、衛生間、休閑區、大露臺、花池;
一層平面圖
二層平面圖
立面圖 第五套
正面效果圖
背面效果圖
鳥瞰圖 占地面積:9m*17m,150平方米左右; 建筑高度:10.95米(含屋頂); 設計功能: 一層戶型:客廳、餐廳、廚房、臥室(帶衣帽間、衛生間)、衛生間; 二層戶型:客廳上空、休息區、主臥(帶衛生間,衣帽間)、臥室(帶衣帽間)、衛生間;
一層平面圖
二層平面圖
立面圖 第六套
正面效果圖
背面效果圖
鳥瞰圖 占地面積:15.0m*7.3m,110平方米左右(不含兩側的配房); 建筑高度:8.36米(含屋頂); 設計功能: 一層戶型:客廳、餐廳、臥室×2、衛生間、儲藏間; 二層戶型:客廳、臥室(帶衛生間)、臥室、茶室、書房、衛生間、儲藏間、露臺×2;
一層平面圖
二層平面圖
立面圖 這幾套別墅的設計圖,你最喜歡哪一套? 圖紙之家-專注農村別墅/自建房設計18年,集合國內200余位經驗豐富的設計師,被評為口碑最好的農村建筑設計公司! |

新中式農村自建房三層設計圖,外觀布局均滿分
占地:142.18平方米
新農村四層獨棟復式別墅設計圖,設計豪華時尚
占地:140平方米
簡單實用的二層雙拼別墅設計圖,總占地150平米左右,雙拼房屋
占地:150平方米MB
新農村私人別墅建筑設計施工圖,全套別墅設計圖紙
占地:多種戶型
農村13萬元二層小樓圖,簡單易建,造價低
占地:110平方米
L字型自建房屋設計圖,一層別墅類型,外觀效果圖漂亮
占地:188.62平方米
帶柴火房農村一層自建房設計圖,戶型布局接地氣
占地:126.29平方米
農村中式四合院房屋圖片及設計圖,白墻黛瓦的江南風格
占地:337平方米
平頂三層別墅設計方案,簡潔舒適大氣通透,12乘9米,打造理想住
占地:98.21平方米
四層豪華別墅設計圖及效果圖,高端房屋設計方案
占地:250平方米
時尚現代的二層農村別墅設計圖,年輕人建房的不二之選
占地:131.76平方米
兩層半20多萬復式農村自建房設計圖,經典不過時戶型
占地:120平方米
農村120平米三間三層樓房設計圖紙,農村理想住房設計圖
占地:120平方米
高端大氣的三層新中式合院別墅設計圖紙及外觀效果圖
占地:203.4平方米
農村養老房還是一層好,帶閣樓的一層房子設計圖
占地:135平方米
一層5間歐式平房小洋樓建筑設計圖紙,大戶型一層別墅戶型
占地:216平方米
漂亮實用三層新農村小別墅設計圖紙,占地150平米,帶露臺,從哪
占地:150平方米
面寬11米超實用的農村一層別墅設計圖,南北通透造價不高
占地:110.47平方米
面寬22米的高端三層自建房別墅設計圖,功能齊全
占地:222.47平方米
農村中式一層三合院自建房設計圖,古典大氣白墻黛瓦
占地:177.62平方米
推薦:10套新農村自建房設計圖,2026年最新設計
閱讀次數:4825737次
100套鄉村別墅圖片大全,2026年最新設計
閱讀次數:2492203次
6款農村蓋一層平房的設計圖,10萬元就能建起來
閱讀次數:1852637次
這11個一層農村自建房別墅火爆了朋友圈!我最喜歡戶型十!你呢
閱讀次數:750268次
農村6萬元建一層小別墅圖,你敢相信嗎
閱讀次數:567686次
農村5萬塊就能自建房,6套普通房子設計圖分享,你沒看錯!
閱讀次數:419410次
8套農村漂亮三間平房圖片,非常適合在農村修建!
閱讀次數:411197次
農村自建房化糞池怎么做?附方案及施工過程
閱讀次數:391783次
農村一層三間平房設計圖,告別土氣養老房,讓人忍不住點贊
閱讀次數:350581次
新農村二層樓房圖片造價12萬,挑一套回家建房吧!
閱讀次數:349126次
