
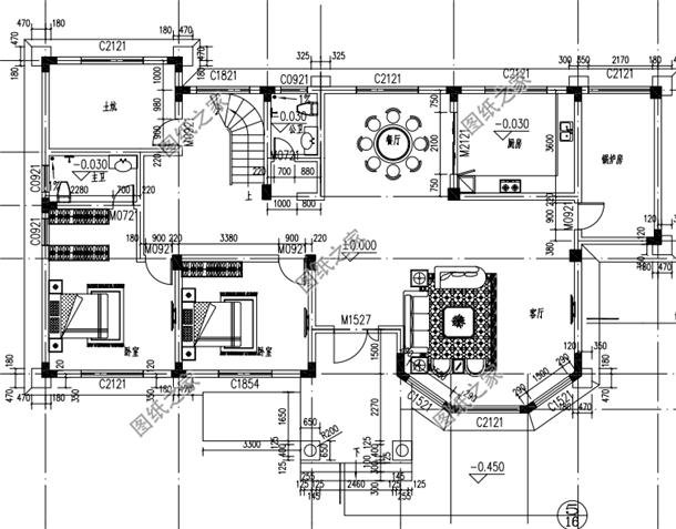
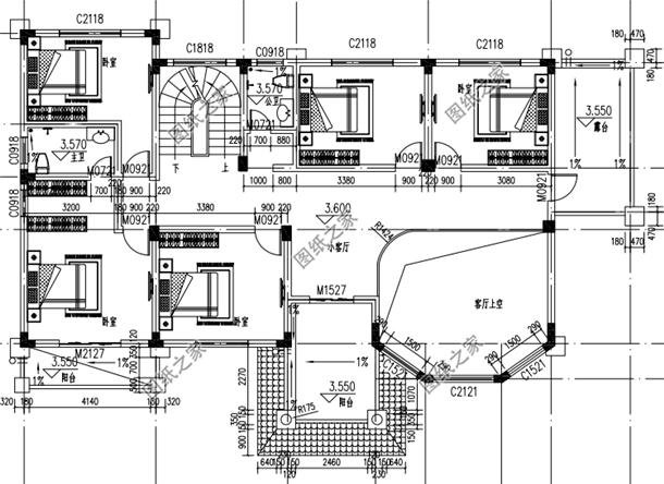
方案一:漂亮實用的新農村二層小樓圖圖紙介紹:漂亮實用的新農村二層小樓圖,屋頂面采用紅色彩釉瓷瓦,外墻面采用灰色搭配最底部面采用褐色文化石,柱面欄桿面采用珍珠白色真石漆。 ![]() 占地面積:13.5m*10.9m,130平方米左右; 建筑層高:二層; 建筑高度:10.018米(含屋頂); 設計功能: 一層戶型:客廳、餐廳、廚房、衛生間、主臥(帶衛生間)、臥室×2; 二層戶型:客廳、臥室x2、衛生間、書房、棋牌室、大露臺; ![]() ![]() 方案二:歐式兩層別墅樓房設計圖紙圖紙介紹:歐式兩層別墅樓房設計圖紙建筑施工方案帶外觀圖,外觀高端大氣豪華,復式中空客廳,內部格局非常合理,本戶型是居住生活的好選擇。 ![]() 占地面積:14.9m*11.9m,138平方米左右; 建筑層高:二層; 建筑高度:11.16米(含屋頂); 設計功能: 一層戶型:客廳、廚房、餐廳、小餐廳/雜物間、臥室(帶衛生間)、臥室、衛生間; 二層戶型:客廳上空、臥室(帶衛生間書房更衣室)、書房、臥室、衛生間、陽臺; ![]() ![]() 方案三:農村四間二層小洋樓設計圖圖紙介紹:農村四間二層小洋樓設計圖,歐式別墅外觀圖片,現代洋氣,讓這款農村別墅適合建在北方,帶土炕和鍋爐房,冬天把屋子燒的暖暖的,待在里面最舒服不過了。還有二樓的大露臺和陽臺設計,方便了日常的晾曬和乘涼小憩。 ![]() 占地面積:20.7m*10.8m,200平方米; 建筑層高:二層; 建筑高度:10.2米(含屋頂); 設計功能: 一層戶型:土炕,主臥(主衛),臥室,公衛,廚房,餐廳,客廳,鍋爐房; 二層戶型:臥室X4,公衛,主臥(主衛),露臺,陽臺,客廳,客廳上空; ![]() ![]() 以上就是農村四間宅基地蓋房設計圖,布局實用合理,住著舒適安全,喜歡就趕快收藏,以后建房不用發愁了。
圖紙之家-專注農村別墅/自建房設計18年,集合國內200余位經驗豐富的設計師,被評為口碑最好的農村建筑設計公司! |

中式徽派二層農村別墅設計圖,白墻黛瓦馬頭墻,永不過時
占地:171平方米
110平方米新農村三層別墅設計圖,含外觀效果圖
占地:109平方米
120平方米農村四層別墅施工設計圖紙及效果圖
占地:120平方米
農村自建房10萬以下兩層別墅設計圖含外觀效果圖片
占地:105平方米
田園兩層半別墅新農村房屋施工設計圖,外觀清新靚麗感情色彩豐
占地:144.12平方米
現代風格三層別墅設計圖紙和效果圖,農村自建精選
占地:129平方米
農村一層養老別墅設計圖,兩個戶型方案可選
占地:多種戶型
二層簡歐農房!經濟實惠+大氣耐看,20年后不落后
占地:120平方米
經典簡約三層農村自建房設計圖,功能實用簡單大氣,比城里鴿子
占地:144平方米
農村27萬二層自建別墅設計圖,占地140平米左右,戶型極好
占地:140平方米
150平米一層農村別墅設計圖,養老自住都很不錯,關鍵是造價也很
占地:156平方米
農村實用三層樓房圖片,占地140平米左右,客廳中空
占地:140平方米
南方北方新農村房屋設計圖紙(含效果圖),三層住宅設計圖紙
占地:164平方米
適合小面寬宅基地的兩開間別墅設計圖,8.5米乘13.5米
占地:107.66平方米
面寬13米二層鄉村自建別墅戶型圖,帶堂屋和露臺
占地:135.47平方米
高端大氣三層半別墅客廳挑空設計,豪華農村自建房圖
占地:179.52平方米
帶車庫四層別墅外觀效果圖及設計圖紙,戶型方正通透
占地:115平方米
現代二層樓房圖片造價25萬,含全套設計圖,風格獨特
占地:多戶型可選
大戶型三層別墅設計圖,高貴大氣,占地面積將近300平
占地:273.33平方米
100平方米實用二層半小別墅設計圖紙(帶閣樓層),住著安逸
占地:100平方米左右
推薦:10套新農村自建房設計圖,2026年最新設計
閱讀次數:4825737次
100套鄉村別墅圖片大全,2026年最新設計
閱讀次數:2492203次
6款農村蓋一層平房的設計圖,10萬元就能建起來
閱讀次數:1852637次
這11個一層農村自建房別墅火爆了朋友圈!我最喜歡戶型十!你呢
閱讀次數:750268次
農村6萬元建一層小別墅圖,你敢相信嗎
閱讀次數:567686次
農村5萬塊就能自建房,6套普通房子設計圖分享,你沒看錯!
閱讀次數:419410次
8套農村漂亮三間平房圖片,非常適合在農村修建!
閱讀次數:411197次
農村自建房化糞池怎么做?附方案及施工過程
閱讀次數:391783次
農村一層三間平房設計圖,告別土氣養老房,讓人忍不住點贊
閱讀次數:350581次
新農村二層樓房圖片造價12萬,挑一套回家建房吧!
閱讀次數:349126次
