
|
將別墅建在有山有水的地方,這樣不光風景好,而且空氣也比較的好,別墅作為人們的第二居住場所,也是相當重要的。
圖紙之家-專注農村別墅/自建房設計18年,集合國內200余位經驗豐富的設計師,被評為口碑最好的農村建筑設計公司! |

190平方米新農村三層(二層半)雙拼房屋設計圖紙,兄弟合建
占地:192平方米左右
新農村三層房屋住宅設計圖紙大全(含效果圖)
占地:122平方米
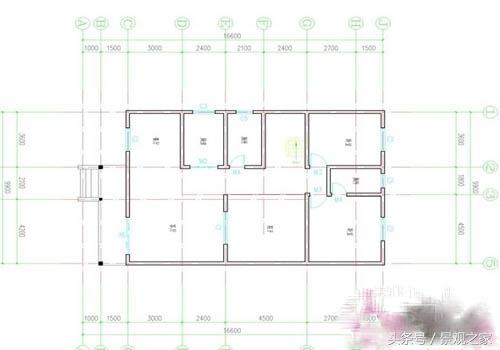
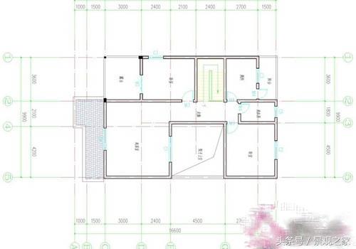
農村自建三層別墅設計圖,開間17米進深13米,外觀對稱設計
占地:187.6平方米
新中式一層別墅設計圖紙,農村自建平房戶型方案圖
占地:183.7平方
私人經濟小別墅設計圖,農村自建小洋樓100平左右戶型
占地:104平方米
農村蓋房三層自建別墅設計圖紙,11米乘12米戶型方案
占地:132.55平方米
簡約而不簡單的二層新中式鄉墅設計圖,占地150平左右
占地:150.78平方米
經濟、不張揚!簡單二層別墅設計圖,農村建房直接抄作業
占地:198.58平方米
二層農村兄弟雙拼別墅設計圖,一墻之隔互不干擾,鄰居看了都喜
占地:164.24平方米
13米開間的獨棟經濟型二層小別墅房屋設計圖,現代簡約
占地:150.39平方米
一層農村自建房設計圖,造型美觀大氣,占地150平
占地:153.415平方米
農村17萬元一層自建別墅設計圖,外觀簡潔,戶型方正
占地:163平方米
現代四合院別墅設計圖紙,二層戶型,外觀時尚漂亮
占地:287.97平方米
帶露臺陽光房二層建房別墅設計圖,13米乘12米,享受農村悠然慢
占地:143.54平方米
農村13萬元二層小樓圖,簡單易建,造價低
占地:110平方米
12×12米農村二層經濟型自建房設計圖,設計了6間臥室
占地:140平方米
偏徽派風格民居三層農村住宅設計圖,白墻黛瓦的古雅簡潔
占地:101.01平方米
田園輕奢三層帶露臺的鄉村別墅設計圖紙,11x10米
占地:106.64平方米
歐式二層別墅設計圖,漂亮實用性價比還高,13米乘10米
占地:130平方米
歐式新農村自建三層建筑施工設計圖紙及效果圖大全
占地:106平方米
推薦:10套新農村自建房設計圖,2026年最新設計
閱讀次數:4825737次
100套鄉村別墅圖片大全,2026年最新設計
閱讀次數:2492203次
6款農村蓋一層平房的設計圖,10萬元就能建起來
閱讀次數:1852637次
這11個一層農村自建房別墅火爆了朋友圈!我最喜歡戶型十!你呢
閱讀次數:750268次
農村6萬元建一層小別墅圖,你敢相信嗎
閱讀次數:567686次
農村5萬塊就能自建房,6套普通房子設計圖分享,你沒看錯!
閱讀次數:419410次
8套農村漂亮三間平房圖片,非常適合在農村修建!
閱讀次數:411197次
農村自建房化糞池怎么做?附方案及施工過程
閱讀次數:391783次
農村一層三間平房設計圖,告別土氣養老房,讓人忍不住點贊
閱讀次數:350581次
新農村二層樓房圖片造價12萬,挑一套回家建房吧!
閱讀次數:349126次
