
|
現代風格體現時代特征為主,沒有多余的裝飾,一切從實用功能出發,造型講究舒適簡約。強調外觀簡潔、明快。體現現代生活快節奏、簡約和實用的,但又富有朝氣的生活氣息今天小編就給大家帶來一款一層現代別墅設計,感興趣的朋友們一起來瞧瞧吧!是不是你心中所喜愛的款式! 圖紙介紹:現代風L型外觀效果圖這款別墅大刀闊斧地采用了現代設計風格,賦予這座別墅充滿了現代簡約風,純白的墻體搭配灰黑色的屋頂經典的色彩組合,這種配色看起來十分簡約整潔。沒有多余的外部構造給人一種干凈利落的感受,這一款屬于L型戶型,配有一個獨立小院,能豐富業主的空閑時光也是家里老人的最愛,種植花草,陶冶情操好不愜意。平屋頂的設計為住宅提供了更多的使用空間,寬敞的場地可以晾曬糧食跟衣物。 占地面積:16.67m*26m,248.78平方米左右;
正面效果圖
鳥瞰效果圖
側面效果圖
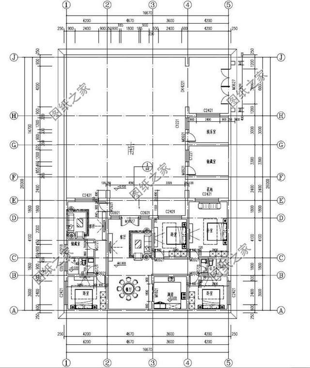
一層平面圖
一樓屋內布局:設有四室三廳兩衛足夠滿足一般農村家庭居住,設立兩間儲藏室為住宅增強了儲物功能,存放雜物糧食都可。娛樂室的設計可以根據業主的喜愛改為棋牌室、茶室、健身室豐富業主的業余時間! 以上就是今天帶給大家的全部內容了,是不是你心中所喜歡的款式,感興趣的話記得點贊關注呦! 圖紙之家-專注農村別墅/自建房設計18年,集合國內200余位經驗豐富的設計師,被評為口碑最好的農村建筑設計公司! |

帶地下室三層新農村房屋設計圖紙,外觀效果大氣
占地:220平方米
160平方農村三層別墅CAD設計圖紙,含外觀圖片效果圖
占地:156平方米
經濟小戶型二層中式四合院(三合院)設計圖紙,帶堂屋和庭院
占地:143.544平方米
中式一層仿古自建平房設計圖,灰墻青瓦,外觀古香古色
占地:168.48平方米
面寬18米二層新中式別墅圖紙設計,復式戶型,帶堂屋
占地:269.83平方米
農村一層大別墅施工圖,18米乘12米,讓生活充滿儀式感
占地:216平方米
140平方米清新別致新農村兩層房屋設計圖紙大全12x13米
占地:140平方米
120平米三層小別墅設計方案和效果圖,端莊大氣很經典
占地:120平方米
一層三間別墅設計圖,經濟實用 + 好看不貴,養老自住都適配
占地:119.31平方米
80平方米鄉村一層半帶閣樓自建別墅設計圖,帶車庫
占地:80平方米
面寬11米現代風二層小別墅,平屋頂設計,緊跟潮流時尚前衛
占地:94.43平方米
80多平米二層小型自建房設計圖,經濟舒適別具一格
占地:84.48平方米
農村三層帶電梯小別墅設計施工圖,120平方米左右12.2x10.8米
占地:123平方米
南方北方新農村房屋設計圖紙(含效果圖),三層住宅設計圖紙
占地:164平方米
新農村三層帶露臺自建房設計施工圖,農村自建別墅推薦
占地:112平方米
經典小戶型二層新農村房屋設計圖紙,客廳中空,造價20萬
占地:94平方米
新中式三層樓房設計圖,外觀精致布局也是相當的樸實
占地:140平方米
現代風格三拼別墅設計圖紙,三兄弟回村自建房戶型
占地:324平方米
中式兄弟雙拼別墅設計圖紙,類似合院造型,美爆了
占地:221.9平方米
現代二層農村別墅全套設計圖,大旋轉露臺+超大中空客廳
占地:133平方米
推薦:10套新農村自建房設計圖,2026年最新設計
閱讀次數:4825737次
100套鄉村別墅圖片大全,2026年最新設計
閱讀次數:2492203次
6款農村蓋一層平房的設計圖,10萬元就能建起來
閱讀次數:1852637次
這11個一層農村自建房別墅火爆了朋友圈!我最喜歡戶型十!你呢
閱讀次數:750268次
農村6萬元建一層小別墅圖,你敢相信嗎
閱讀次數:567686次
農村5萬塊就能自建房,6套普通房子設計圖分享,你沒看錯!
閱讀次數:419410次
8套農村漂亮三間平房圖片,非常適合在農村修建!
閱讀次數:411197次
農村自建房化糞池怎么做?附方案及施工過程
閱讀次數:391783次
農村一層三間平房設計圖,告別土氣養老房,讓人忍不住點贊
閱讀次數:350581次
新農村二層樓房圖片造價12萬,挑一套回家建房吧!
閱讀次數:349126次
