
|
第一套:
此別墅占地7.7X14.96米,坡屋頂建造。外墻以紅色和黃色為主,也有文化石的的運用。雖然左右有窗戶,但是獨棟或聯排建起來都很霸氣。 360度全景圖展示:
平面布局圖: 此戶型有個地下室的設計,設計師將車庫、健身房、儲藏室和茶水室都建在了這里;
一層除了廚房、餐廳、客廳外,還有2個臥室,陽面的臥室可以當做老人房使用,干燥舒適、冬暖夏涼,很適合居住;
二層有3個臥室、1書房、1個起居室,并配有一個露臺。
第二套:
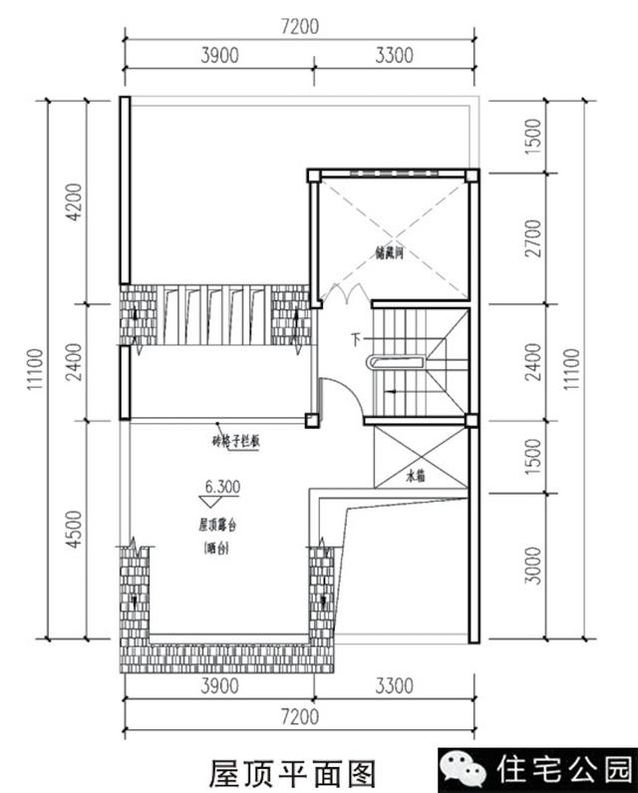
此別墅可聯排可獨棟,單戶占地7.2X11.1米,同樣為坡屋頂的建筑,屋頂上還安有太陽能熱水器。小院外面有花池,花池里的綠色植物映襯著白色的外墻,住宅充滿了生機。 平面布局圖:
別墅有3層,一層設有客廳、老人房、雜物間、廚房、餐廳,還有一個小院,小院里可以停放車輛、小型機動車、摩托車等;二層很注重居住環境的營造。這層有兩個臥室,一個主臥一個兒童房,居室外面多露臺和露臺花園設計,期中在最大的露臺上,一半做了屋頂花園,一半有個洗衣機房,做了晾衣區,居住環境非常好。
這是坡屋頂的平面圖,設計師巧妙的在上面設計了曬臺來代替平屋頂可以晾曬的功能。
這兩套小面寬的別墅,你更喜歡哪套呢?
圖紙之家-專注農村別墅/自建房設計18年,集合國內200余位經驗豐富的設計師,被評為口碑最好的農村建筑設計公司! |

南方北方新農村房屋設計圖紙(含效果圖),三層住宅設計圖紙
占地:164平方米
農村一層四間平房設計圖方案,含外觀圖片,預算10萬
占地:190平方米
農村小戶型二層房屋別墅設計圖,帶外觀效果圖
占地:95平方米
16×12米二層歐式帶車庫農村小別墅,既舒適又美觀
占地:180平方米
農村三層兄弟雙拼別墅設計圖及效果圖片,14X12米自建戶型
占地:154平方米
面寬16米三層法式別墅設計圖,設計新穎別致,建成后美不勝收
占地:162.07平方米
鄉村仿古一層別墅圖片及設計圖,經典實用,占地170平
占地:170平方米
一層農家雙拼自建房設計圖,左右對稱四平八穩
占地:219.05平方米
12×12米農村二層經濟型自建房設計圖,設計了6間臥室
占地:140平方米
140平三層自建房別墅設計圖,外觀圖大氣、美觀
占地:140平方米
160平方米經典鄉村二層房屋設計圖紙
占地:160平方米
100平復式三層別墅房屋設計圖,客廳挑高,采光好,臥室多
占地:100平方米
自建三層小洋樓設計圖紙,含效果圖,帶車庫
占地:121平方米
大戶型三層別墅設計圖,高貴大氣,占地面積將近300平
占地:273.33平方米
豪華大氣三層農村房屋設計圖,對稱的主體設計大氣恢宏
占地:240平方米
帶堂屋二層小別墅設計圖紙帶外觀圖,13.6米x9米
占地:122.4平方米
小青瓦一層中式小院三合院設計施工圖,白墻青瓦古色古香
占地:155.3平方米
歐式二層別墅設計圖,漂亮實用性價比還高,13米乘10米
占地:130平方米
160平方米左右二層自建別墅設計圖,對稱設計,23萬建好
占地:157平方米左右
旋轉樓梯挑空獨棟二層簡歐小別墅設計圖,大氣時尚
占地:189.26平方米
推薦:10套新農村自建房設計圖,2026年最新設計
閱讀次數:4825737次
100套鄉村別墅圖片大全,2026年最新設計
閱讀次數:2492203次
6款農村蓋一層平房的設計圖,10萬元就能建起來
閱讀次數:1852637次
這11個一層農村自建房別墅火爆了朋友圈!我最喜歡戶型十!你呢
閱讀次數:750268次
農村6萬元建一層小別墅圖,你敢相信嗎
閱讀次數:567686次
農村5萬塊就能自建房,6套普通房子設計圖分享,你沒看錯!
閱讀次數:419410次
8套農村漂亮三間平房圖片,非常適合在農村修建!
閱讀次數:411197次
農村自建房化糞池怎么做?附方案及施工過程
閱讀次數:391783次
農村一層三間平房設計圖,告別土氣養老房,讓人忍不住點贊
閱讀次數:350581次
新農村二層樓房圖片造價12萬,挑一套回家建房吧!
閱讀次數:349126次
