
|
農村的風景,在很多人的印象中,是讓人沉醉的,白天有藍天白云,晚上有漫天繁星,空氣里彌漫著的,是帶有泥土香味,在農村建房,每天呼吸新鮮的空氣,日出而作日落而息,生活自由自在,這正是現今很多人向往的生活,也有越來越多的人選擇回農村建房,下面給大家分享2018下半年受歡迎三層農村自建別墅設計圖大全(附全套施工圖)。 【戶型1】 圖紙詳情 層數: 三層 結構形式: 框架結構 主體造價: 65萬 開間: 15.4米 進深: 13.6米 占地面積: 246.97平方米 建筑面積: 682.4平方米
這款設計圖地上主體共有三層,還帶有地下室,可以做地下車庫,也可以做倉庫使用。戶型在設計上,利用優美的戶型轉角設計,設置了一扇弧形超大落地窗,從外面看十分漂亮,在室內也可以欣賞到室外美景。屋頂有大露臺設計,這是農村比較喜歡的一種功能設計,可以晾曬東西。 功能設計及平面圖展示
地下層平面圖 地下層:倉庫/車庫
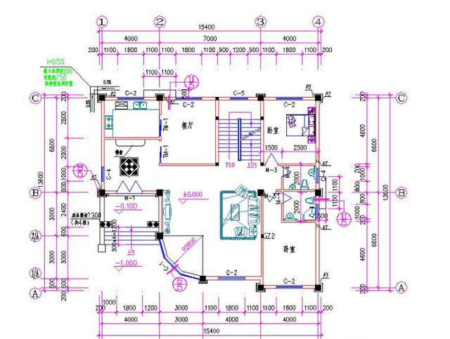
一層平面圖 一層:挑空客廳、餐廳、廚房、臥室(帶衛生間)、臥室、公衛
二層平面圖 二層:卡拉OK室、臥室×2(帶衛生間)、公衛、露臺
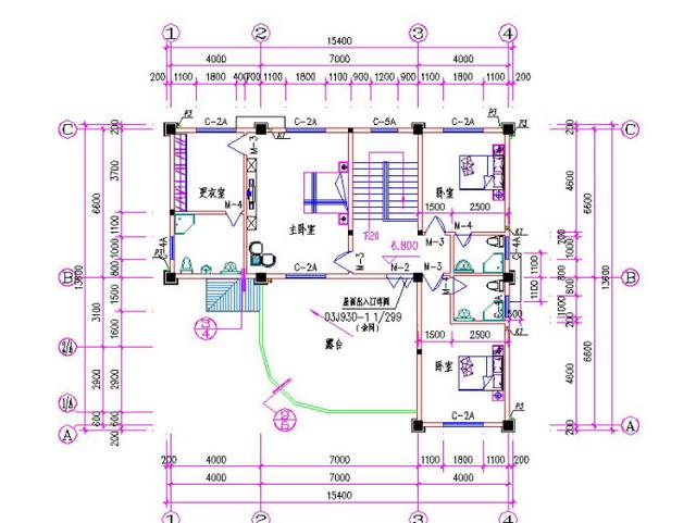
三層平面圖 三層:主臥室(帶更衣室、衛生間)、臥室×2(帶衛生間)、公衛、大露臺 【戶型2】
戶型2 層數: 三層 結構形式: 磚混結構 主體造價: 20-24萬 開間: 10.2米 進深: 9.9米(含門柱11.7米) 占地面積: 105.86平方米 總建筑面積:289.48平方米 設計功能 一層: 門廳、客廳、廚房、餐廳、臥室×2、衛生間 二 層: 客廳、陽臺、臥室×4、衛生間 三層: 露臺、臥室×3、衛生間 【戶型3】
戶型3 層數: 三層 結構形式: 磚混結構 主體造價: 20-25萬 開間: 8.5米 進深:10.8米(含門柱13米) 占地面積: 99.97平方米 總建筑面積:278.8平方米 設計功能 一層: 門廳、餐廳、廚房、衛生間、臥室(帶內衛) 二 層: 客廳、主臥(帶內衛、露臺)、臥室(帶內衛)、書房 三層: 主臥(帶衣帽間、內衛、露臺)、次臥(帶衣帽間、書房、內衛) 【戶型4】
戶型4 層數: 三層 結構形式: 框架結構 主體造價: 32-40萬 開間: 15.3米 進深: 9.8米 占地面積: 134.66平方米 總建筑面積: 357.56平方米 設計功能 一層: 堂屋、客廳、餐廳、廚房、臥室(帶內衛)、公衛 二 層: 客廳(帶陽臺)、主臥(帶內衛)、3間次臥、公衛、露臺 三層: 客廳(帶陽臺)、主臥(帶內衛)、3間次臥、公衛、露臺(本層與二層布局相同) 【戶型5】
戶型5 層數: 三層 結構形式: 框架結構 主體造價: 22-28萬 開間: 10.1米 進深: 12.18米 占地面積: 126平方米 建筑面積: 342.85平方米 設計功能 一 層: 廚房、餐廳、客廳、臥室、衛生間、車庫 二 層: 3臥室、起居室、2衛生間、陽臺、露臺 三 層: 3臥室、2衛生間、更衣室、2露臺 圖紙之家-專注農村別墅/自建房設計18年,集合國內200余位經驗豐富的設計師,被評為口碑最好的農村建筑設計公司! |

一眼就驚艷的二層新中式別墅設計圖,大氣做夢都想回家蓋棟!
占地:128.58平方米
新中式二層雙拼樓房設計圖,單戶面積100平米左右,實用美觀
占地:200平方米
五間二層別墅設計圖紙,樓梯設計的無比大氣
占地:300平方米
農村兄弟倆雙拼別墅房屋設計圖,外觀質樸
占地:195平方米
簡約大氣農村自建三層別墅設計圖,布局合理,很適合農村人自建
占地:139.471平方米
二層平頂別墅設計圖,漂亮經濟實用二層農村小別墅最新房屋設計
占地:多種戶型
125平方米新農村二層房屋施工設計CAD圖紙加效果圖
占地:125平方米
氣派的歐式風格三層房子設計圖紙,外觀圖太漂亮了
占地:132平方米
農村兩層半樓房設計圖,平面功能分區明確,布置合理
占地:180平方米
經典中式三合院設計,一層空間實用大氣,輕松實現理想家園!
占地:160.53平方米
對稱型歐式別墅設計圖,穩重實用,開間18米,適合全國農村建
占地:228.2 平方米
120平方米三層歐式別墅設計圖,進門就是旋轉樓梯
占地:119.76平方米
農村中式四合院房屋圖片及設計圖,白墻黛瓦的江南風格
占地:337平方米
四開間一層半別墅設計圖,帶閣樓設計的戶型方案
占地:190.7平方米
平頂三層別墅設計方案,簡潔舒適大氣通透,12乘9米,打造理想住
占地:98.21平方米
鄉村仿古一層別墅圖片及設計圖,經典實用,占地170平
占地:170平方米
背面不開窗二層別墅設計圖,對稱設計簡單好看,眾多建房者的選
占地:183.79平方米
復式挑空現代簡約風三層別墅設計圖,簡單時尚最受年輕人最愛
占地:149.7平方米
新式160平方米農村三層樓房設計圖,客廳中空
占地:160平方米
農村自建房10萬以下兩層別墅設計圖含外觀效果圖片
占地:105平方米
推薦:10套新農村自建房設計圖,2026年最新設計
閱讀次數:4825737次
100套鄉村別墅圖片大全,2026年最新設計
閱讀次數:2492203次
6款農村蓋一層平房的設計圖,10萬元就能建起來
閱讀次數:1852637次
這11個一層農村自建房別墅火爆了朋友圈!我最喜歡戶型十!你呢
閱讀次數:750268次
農村6萬元建一層小別墅圖,你敢相信嗎
閱讀次數:567686次
農村5萬塊就能自建房,6套普通房子設計圖分享,你沒看錯!
閱讀次數:419410次
8套農村漂亮三間平房圖片,非常適合在農村修建!
閱讀次數:411197次
農村自建房化糞池怎么做?附方案及施工過程
閱讀次數:391783次
農村一層三間平房設計圖,告別土氣養老房,讓人忍不住點贊
閱讀次數:350581次
新農村二層樓房圖片造價12萬,挑一套回家建房吧!
閱讀次數:349126次
