
|
現在農村里的年輕人越來越少了,很多年輕人都跑去城里工作,只有逢年過節才回村里。在城里掙錢之后,他們就會陸陸續續地回來,把自家的老房子翻蓋成新房,新房屋的風格時尚、美觀大氣,一家比一家好看。 今天給大家推薦6套接地氣的二層別墅設計,給有自建房需要的朋友參考。 第一套
正面效果圖
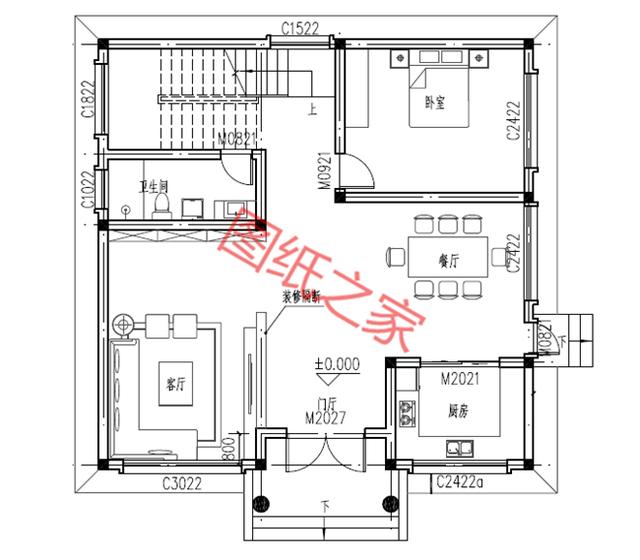
鳥瞰圖 占地面積:13.8m*12.0m,135平方米左右; 建筑高度:9.74米(含屋頂); 設計功能: 一層戶型:客廳、餐廳、廚房、臥室×2、衛生間、洗衣區; 二層戶型:起居室,臥室×3、棋牌室、衛生間、書房、露臺、陽臺;
一層平面圖
二層平面圖
立面圖 第二套
正面效果圖
背面效果圖
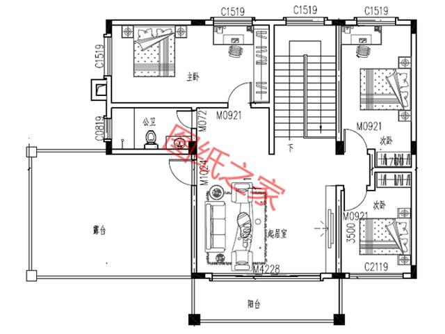
鳥瞰圖 占地面積:10.8m*11.9m,120平方米左右; 建筑高度:9.5米(含屋頂); 設計功能: 一層戶型:客廳、餐廳、廚房、臥室、衛生間; 二層戶型:客廳、主臥(帶衛生間)、臥室x2、衛生間、小露臺;
一層平面圖
二層平面圖
立面圖 第三套
正面效果圖
背面效果圖
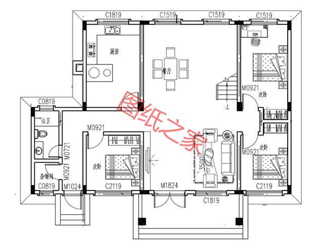
鳥瞰圖 占地面積:10.0m*11.0m,116平方米左右; 建筑高度:9.2米(含屋頂); 設計功能: 一層戶型:客廳、餐廳、廚房、衛生間、臥室×2; 二層戶型:臥室x3、兒童房(可以做棋牌室)衛生間、陽臺;
一層平面圖
二層平面圖
立面圖 第四套
正面效果圖
背面效果圖
鳥瞰圖 占地面積:15.0m*11.8m,150平方米左右; 建筑高度:9.2米(含屋頂); 設計功能: 一層戶型:客廳、餐廳、廚房、衛生間、臥室×3、雜物間; 二層戶型:起居室、臥室x3、衛生間、陽臺、大露臺;
一層平面圖
二層平面圖
立面圖 第五套
正面效果圖
背面效果圖
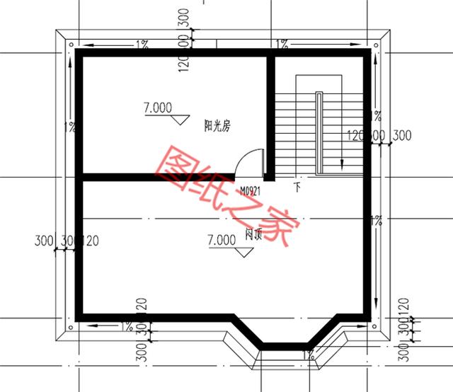
鳥瞰圖 占地面積:9.0m*9.8m,80平方米左右; 建筑層高:二層; 建筑高度:9.4米(含屋頂); 設計功能: 一層戶型:客廳、餐廳、廚房、衛生間; 二層戶型:臥室x3、衛生間、露臺; 屋頂:陽光房
一層平面圖
二層平面圖
屋頂平面圖
立面圖 第六套
正面效果圖
背面效果圖
鳥瞰圖 占地面積:10.0m*10.0m,100平方米左右; 建筑高度:9.6米(含屋頂); 設計功能: 一層戶型:客廳、餐廳、廚房、衛生間、臥室×2; 二層戶型:家庭廳、主臥(帶書房)、臥室x2、衛生間、陽臺、露臺;
一層平面圖
二層平面圖
立面圖
圖紙之家-專注農村別墅/自建房設計18年,集合國內200余位經驗豐富的設計師,被評為口碑最好的農村建筑設計公司! |

簡單農村自建二層樓房設計圖,南北通透
占地:140平方米
農村一層四間平房設計圖方案,含外觀圖片,預算10萬
占地:190平方米
一層時尚農村自建別墅方案,低至10萬的造價,適合住家養老
占地:131.04平方米
三層新農村140平方米房屋設計圖紙,全套施工圖及效果圖
占地:140平方米
對稱型歐式別墅設計圖,穩重實用,開間18米,適合全國農村建
占地:228.2 平方米
新中式三層歐式別墅設計圖,盡顯貴族風范,占地135平
占地:134.37平方米
兄弟雙拼別墅設計戶型圖及設計方案圖,帶外觀效果圖,外觀好看
占地:185平方米(單棟)
150平方米大平層別墅設計圖,時尚大氣舒適實用
占地:149.43平方米
獨棟小別墅設計圖,造價30萬左右的獨棟小別墅設計推薦
占地:150平方米
歐式獨棟二層小別墅設計圖,客廳中空,占地126平米
占地:120平方米
農村三層半自建房子效果圖及設計圖,戶型占地90平方米左右
占地:92.17平方米
14x12.5米二層農村別墅設計圖,布局完美獨立,顏值高又實用
占地:153.95平方米
造價12萬一層簡單自建房設計戶型圖,占地面積140平方米左右
占地:137.76平方米
帶小院子的鄉村一層別墅設計圖紙,120平方米
占地:多戶型
新農村歐式時尚二層別墅設計圖紙,120平方米自建房
占地:多種戶型
面寬8米多的三層農村別墅設計圖,小開間宅基地推薦
占地:112.82平方米
經濟型實用歐式一層小樓房別墅平房設計圖,11X10米
占地:103平方米
農村三層四合院別墅設計圖紙,自建房建這棟面子十足
占地:227.49平方米
面寬13米帶堂屋三層農村別墅圖,新中式大氣風格
占地:151.58平方米
帶地下室三層復式別墅設計方案,全套設計圖+效果圖
占地:168平方米
推薦:10套新農村自建房設計圖,2026年最新設計
閱讀次數:4825737次
100套鄉村別墅圖片大全,2026年最新設計
閱讀次數:2492203次
6款農村蓋一層平房的設計圖,10萬元就能建起來
閱讀次數:1852637次
這11個一層農村自建房別墅火爆了朋友圈!我最喜歡戶型十!你呢
閱讀次數:750268次
農村6萬元建一層小別墅圖,你敢相信嗎
閱讀次數:567686次
農村5萬塊就能自建房,6套普通房子設計圖分享,你沒看錯!
閱讀次數:419410次
8套農村漂亮三間平房圖片,非常適合在農村修建!
閱讀次數:411197次
農村自建房化糞池怎么做?附方案及施工過程
閱讀次數:391783次
農村一層三間平房設計圖,告別土氣養老房,讓人忍不住點贊
閱讀次數:350581次
新農村二層樓房圖片造價12萬,挑一套回家建房吧!
閱讀次數:349126次
