
|
老一輩的人蓋房子的目的無非是為了遮風擋雨,隨著經濟的發展,農村的建設也越來越好,對自住房的要求越來越多,經濟適用、美觀大方、布局合理是基本原則,當然如果多功能就更好了,今天推薦的這款歐式兩層,應該比較符合80后、90后的口味。
連綿起伏的屋頂,鋪設的是靛藍色西瓦,墻面為深色調文化石,錯落不一的屋檐,怎么樣,是不是四處都透露著設計師的巧思妙想呢?在一片千篇一律的歐美風,或者平平無奇的平頂房中,這樣帶有浪漫色彩的歐式風格,相信很多年輕人都無法拒絕。
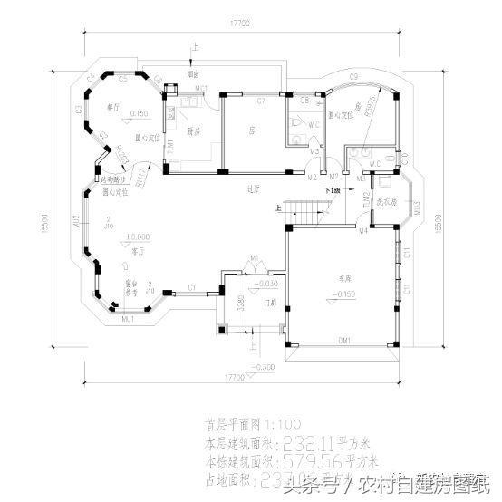
一樓設有客廳、餐廳、廚房、臥室(帶衛生間)、臥室、洗衣房、車庫、公共衛生間。車庫設在屋外,既給了愛車遮風擋雨的空間,又避免了對起居生活空間的打擾,如果家里沒有車的,可以做成雜物房。復試客廳寬敞大氣,還可以做成堂屋。很少有農村家庭會設計洗衣房,這樣的設計對女主人來說很貼心,也免于平時打掃衛生。
二樓主人房(帶書房、衣帽間、露臺)、臥室(帶衣帽間、陽臺)、臥室、露臺、客廳,高配置的主人房年輕的男女主人怎么不愛呢,既有了女主人穿衣打扮的空間,又有了男主人工作、游戲的場所,還有露臺,平時可以晾曬衣物、擺放花草,增加小兩口的生活情趣。聚會廳在中間位置,有利于一家人的感情交流。
這棟外表就不俗的歐式建筑,沒想到還有一個夾層空間,是不是很驚喜?夾層空間主要為娛樂廳和陽光房,娛樂廳可以作為影音室,平時朋友來了,在娛樂廳看看大片,在陽光房喝喝茶、聊聊天、打打牌,想著都樂不思蜀。 開間17.7米,進深15.5米,占地面積237.06平方米,建筑面積579.56平方米,主體造價25萬—30萬。 圖紙之家-專注農村別墅/自建房設計18年,集合國內200余位經驗豐富的設計師,被評為口碑最好的農村建筑設計公司! |

一層4間自建平房別墅及全套戶型圖紙,占地160平左右,簡單實用
占地:162.13平方米
帶地下室三層豪華大氣新農村房屋設計圖,占地150平米左右
占地:150平方米
面寬8米兩開間四層歐式風別墅,布局實用,小占地大精彩!
占地:100.86平方米
農村四間三層豪華別墅設計方案圖,造型輕奢雅致
占地:200平方米
農村三層雙拼別墅設計圖,帶外觀效果圖,推薦
占地:190平方米
農村帶地下室二層半自建房屋設計圖,樓中樓設計,歐式風格
占地:140平方米
歐式農村三層小別墅設計圖,占地120平米,客廳中空,空間利用率
占地:120平方米
175平大客廳三層別墅房屋設計圖,含外觀造型現代,美觀
占地:175平方米
200平米左右二層樓房設計圖,外觀看著舒服、布局住著坦然
占地:190平方米
農村宅基地建房二層別墅設計圖,適合回鄉自建!
占地:137.5平方米
農村18萬元二層小樓圖,占地120平面,戶型緊湊合理
占地:120平方米
新中式三層別墅,旋轉樓梯+挑空客廳,高級感拉滿
占地:125平方米
新農村二層雙拼小別墅設計圖,開間22米的現代房屋圖紙設計
占地:230平方米
農村二層中式戶型設計圖,造型古香古色,建好絕對是地標
占地:245.39平方米
小戶型現代新農村三層房屋設計建筑圖及效果圖
占地:108平方米
鄉下復式三層房子設計圖,帶堂屋,客廳中空,輕奢風格
占地:190平方米
二層帶車庫歐式尊貴別墅圖,客廳中空,美觀,大氣,實用
占地:300平方米
140平方米清新別致新農村兩層房屋設計圖紙大全12x13米
占地:140平方米
12.8x10米二層自建房別墅設計圖,大氣美觀實用,建造無憂
占地:128平方米
占地120平米清新脫俗簡單二層別墅設計方案,含效果圖
占地:119.01平方米
推薦:10套新農村自建房設計圖,2026年最新設計
閱讀次數:4825737次
100套鄉村別墅圖片大全,2026年最新設計
閱讀次數:2492203次
6款農村蓋一層平房的設計圖,10萬元就能建起來
閱讀次數:1852637次
這11個一層農村自建房別墅火爆了朋友圈!我最喜歡戶型十!你呢
閱讀次數:750268次
農村6萬元建一層小別墅圖,你敢相信嗎
閱讀次數:567686次
農村5萬塊就能自建房,6套普通房子設計圖分享,你沒看錯!
閱讀次數:419410次
8套農村漂亮三間平房圖片,非常適合在農村修建!
閱讀次數:411197次
農村自建房化糞池怎么做?附方案及施工過程
閱讀次數:391783次
農村一層三間平房設計圖,告別土氣養老房,讓人忍不住點贊
閱讀次數:350581次
新農村二層樓房圖片造價12萬,挑一套回家建房吧!
閱讀次數:349126次
