
|
不知道大家有沒有這種感覺,城市那么大,卻沒有自己的容身之處,常年在喧鬧的城市里打拼,到最后連一套房子的首付的付不起,則讓很多人感覺疲憊不堪。快節奏的城市生活總是給人一種感覺,只要自己少一天不努力、不工作,就會被淘汰,緊繃的弦讓人產生了焦慮感。 如果買不起城里的房子,那就趕緊回農村建一棟房子,趁著政策還允許,再晚幾年就有可能城市買不起房,農村也沒有你的容身之處。下面給大家分享4套三層自建房設計圖,每一款都帶落地窗和車庫,現代時尚! 【第一套】 圖紙詳情 層數: 三層 結構形式: 框架結構 主體造價: 45萬 開間: 18米 進深: 13米 占地面積: 223平方米 總建筑面積: 427平方米 【方案1】
戶型1 方案1配色以清新自然為主,白色和藍色搭配給人清爽的感覺,門窗套和欄桿均采用經典的黑色,與白色黑白相配,經典雅觀。 【方案2】
戶型1 采用淡黃色裝飾,搭配紅色屋頂,給人的感覺與方案1完全不同,這種配色更多的是——溫暖。 設計功能 一 層: 客廳、餐廳、老人臥室、雜物間、廚房、雙車庫、衛生間 二 層: 客廳上空、大露臺、主臥帶書房及陽臺、2個次臥室、公共衛生間 三 層: 主臥室帶書房、大臥室帶陽臺、衛公共生間、2個次臥
【第二套】 圖紙介紹 層數: 三層 結構形式: 框架結構 主體造價: 40萬 開間:12米 進深:12米 占地面積: 139.60平方米 建筑面積:388.20平方米
戶型2 戶型2設有兩扇超大落地窗,室內光線充足。落地窗對應的室內功能區域便是客廳,客廳挑空設計,寬敞明亮。屋頂有大露臺,房屋四面采用多窗設計,采光透氣。
背面效果圖 設計功能
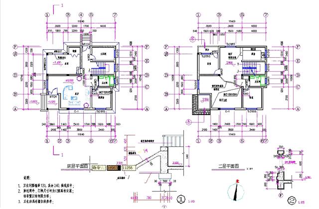
一層平面圖 一 層: 客廳、餐廳、廚房、衛生間、臥室、車庫
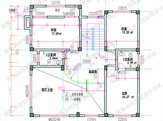
二層平面圖 二 層: 客廳上空、起居室、衛生間、主臥室(帶衛生間)、次臥室(帶陽臺)、臥室 二樓共有3個臥室,主臥室帶衛生間,一間次臥帶陽臺,尺寸適宜,十分方便。
三 層: 主臥(帶書房、帶衛生間、帶陽臺)、臥室、露臺、衛生間 【第三套】 圖紙詳情 層數: 三層 結構形式: 框架結構 主體造價: 35萬 開間: 11.64米 進深: 10.74米 占地面積: 124.5平方米 建筑面積: 352平方米
戶型3 戶型3外墻采用經典的土黃色和白色裝飾,低調自然,古樸真實,與農村周圍的風景相映襯,畫面感柔美,超大落地窗設計富有美感,帶有車庫、多露臺設計,功能應有盡有,為主人創造舒適的生活環境。 設計功能
一二層平面圖 一 層: 挑空客廳、棋牌室、工具間、衛生間、儲藏室、車庫 二 層: 臥室、臥室(附陽臺)、廚房、餐廳、衛生間 三 層: 起居室、主臥(附更衣室,衛生間,書房,陽臺)、2露臺 【第四套】 層數: 三層 結構形式: 框架結構 開間: 12.8米 進深: 12.5米 占地面積: 140㎡ 建筑面積: 279㎡ 主體造價: 30萬
效果圖 設計功能
一層平面圖 一 層: 門廳,客廳(挑空),臥室,廚房,餐廳,車庫,公共衛生間。
二層平面圖 二 層: 主臥(帶衛生間,陽臺),臥室,公共衛生間。共2間臥室,主臥室套間,給主人帶來更好的生活享受。 三 層: 2臥室,公共衛生間,露臺 圖紙之家-專注農村別墅/自建房設計18年,集合國內200余位經驗豐富的設計師,被評為口碑最好的農村建筑設計公司! |

農村四間三層豪華別墅設計方案圖,造型輕奢雅致
占地:200平方米
最好看的新款農村三層復式別墅設計圖片及設計圖,外觀高端、大
占地:160平方米
80平農村房屋設計圖,小戶型自建房三層別墅推薦
占地:80平方米
2026新中式農村三層別墅圖,外觀漂亮,看一眼就愛上
占地:240平方米
170平方米歐式三層雙拼別墅建筑設計圖紙及效果圖片
占地:172平方米
雙戶168平方米小戶型新農村雙拼樓房設計建筑圖紙帶外觀圖
占地:168平方米
農村二層小別墅自建房屋設計圖,客廳中空,占地150平米
占地:150平方米
好看實用農村2開間二層別墅設計圖,主體19萬
占地:117.36平方米
帶車庫帶露臺二層農村小別墅設計圖,宅基地大小適中,外觀造型
占地:180平方米
農村二層半兄弟共建房別墅設計圖,復式戶型帶車庫,面寬24米
占地:312平方米左右
最實用一層小別墅設計方案,造價不高顏值高,家家都喜歡!
占地:143.48平方米
農村養老房還是一層好,帶閣樓的一層房子設計圖
占地:135平方米
開間20米雙拼別墅三層設計圖,兄弟合建省時省力又省心
占地:205.8平方米
高顏值又實用的一層雙拼鄉村別墅設計圖,舒適度堪比豪宅
占地:217.3平方米
泰式風格三層小別墅設計圖,帶車庫和大露臺
占地:120平方米
高顏值農村二層別墅設計圖,顏值在線造價不高,建房好選擇!
占地:216.93平方米
140平方米新農村復式自建房子,三層別墅建筑圖紙及效果圖
占地:138平方米
帶地下室的三層歐式別墅戶型設計圖,帶地下室農村自建房
占地:139.256平方米
150平米簡歐三層農村別墅設計圖,低調又奢華
占地:151.2平方米
自建二層獨棟別墅建筑施工圖,含效果圖和全套設計圖紙
占地:198.72平方米
推薦:10套新農村自建房設計圖,2026年最新設計
閱讀次數:4825737次
100套鄉村別墅圖片大全,2026年最新設計
閱讀次數:2492203次
6款農村蓋一層平房的設計圖,10萬元就能建起來
閱讀次數:1852637次
這11個一層農村自建房別墅火爆了朋友圈!我最喜歡戶型十!你呢
閱讀次數:750268次
農村6萬元建一層小別墅圖,你敢相信嗎
閱讀次數:567686次
農村5萬塊就能自建房,6套普通房子設計圖分享,你沒看錯!
閱讀次數:419410次
8套農村漂亮三間平房圖片,非常適合在農村修建!
閱讀次數:411197次
農村自建房化糞池怎么做?附方案及施工過程
閱讀次數:391783次
農村一層三間平房設計圖,告別土氣養老房,讓人忍不住點贊
閱讀次數:350581次
新農村二層樓房圖片造價12萬,挑一套回家建房吧!
閱讀次數:349126次
