
|
現在的農村別墅遍地開花,處處結果,雖然看起來都很漂亮,但是大片大片的歐式風格建筑,看得多了總會膩的。要知道,社會高速發展,各種文化和觀念發生激烈碰撞,可不是只有歐式風格一種形式的存在。本期我們推薦兩款不一樣的農村別墅,一點兒不比歐式別墅差。 第一款:
簡約低調的地中海風格別墅,三層結構層次分明,東側入戶,西側車庫,進出方便,深咖色文化石加淺咖色真石漆的整體裝飾效果,低調而有內涵,拱形門廳加拱形窗體的設計非常時尚,正面落地大窗非常大氣;頂層設東西兩處露臺,實用性很強;建筑設計尺寸:開間15.6米,進深10.7米。
建筑設門廳,入戶設堂屋,雖然不像傳統堂屋設在建筑居中位置,但是功能照舊,同時還能起到入戶緩沖的作用,左側設復式客廳,廚房、餐廳的布局合理,空間也很寬敞,建筑西側設一間臥室,、車庫公衛和樓梯間均在此設計;二層設小客廳和四間臥室,有陽臺和公衛;三層設小客廳和三間臥室,設一處陽臺和兩處露臺。露臺既能做成陽光房的形式,也能設計雨棚或直接露天,都是非常不錯的選擇,均能滿足家人休閑娛樂、晾曬等功能。 第二款:
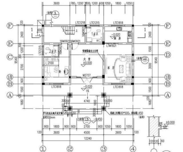
傳統和現代相結合的新式別墅,建筑基本呈東西對稱式設計,超寬超大進深的門廳設計霸氣十足,入戶兩側設門外廊,陽臺、露臺均呈錯層設計,這么大氣的設計,建筑占地還很適中:開間12米,進深9.5米,建筑門廳高度3.9米,檐口噶度10.2米,建筑總高度11.95米。建筑裝飾非常簡單,頂層才哦你個青灰色墻面磚,上兩層采用淺黃或白色墻面磚,屋頂用灰色瓦片,門廳、欄桿、屋檐用白色外墻涂料,簡單大氣又美觀。
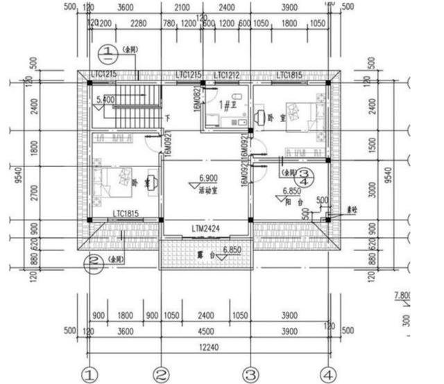
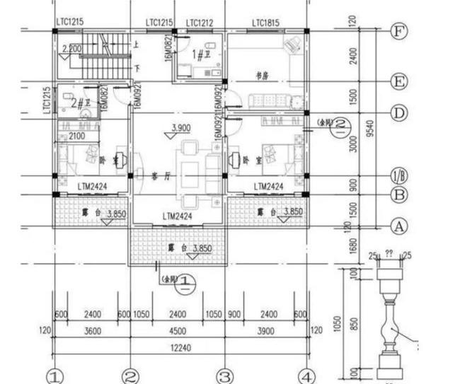
建筑設超大門廳,4.5米的寬度和4.7米的進深,加上兩邊的小走廊,做小庭院都不為過,入戶設大堂,兼餐廳功能,右側設客廳,左側設一間套房,陰面設廚房、公衛和樓梯間;二層設帶露臺的客廳和左右兩間臥室,兩間臥室均帶露臺,其中一間還自帶衛生間,設計獨立書房和衛生間;三層設帶露臺的室內活動室,設兩間臥室和一處半開放式陽臺; 兩款設計方案從造型和裝飾手法,跟常見的別墅都有很大區別,美觀大方又清新亮麗,既適合獨棟建造,也適合連體設計,而且臥室數量很多,室內室外的功能也非常齊全,農村建造再合適不過了。 ![]()
圖紙之家-專注農村別墅/自建房設計18年,集合國內200余位經驗豐富的設計師,被評為口碑最好的農村建筑設計公司! |

二層復式農村豪宅別墅設計圖,挑空客廳旋轉樓梯高級感十足
占地:215.43平方米
一層農房別墅設計圖紙,140平方米,面寬15米
占地:140平方米
2026年獨棟三層雙拼別墅戶型圖,總占地面積300平方米左右
占地:300平方米
12x10米農村建房圖紙,客廳中空,讓你后半輩子在稱贊聲中度過
占地:120平方米
小戶型經濟型三層雙拼小別墅施工設計圖紙,單戶100平內
占地:150平方米
精致農村別墅圖,150平米一層三合院設計,四臥二廳舒適宜居
占地:149.43平方米
3款簡單舒適二層別墅設計圖,低調配色,造型簡單大氣
占地:多戶型可選
高端三層帶地下室別墅房屋設計圖方案及效果圖
占地:135平方米
外觀看起來高端、奢華的二層小別墅設計圖,推薦
占地:130平方米
一層中式風格自建小院,白墻黛瓦舒適宜居,享受舒適愜意的鄉村
占地:263.94平方米
漂亮的二層中式現代別墅圖,配色非常的溫馨淡雅
占地:160平方米
鄉村三層別墅施工圖紙帶效果圖,田園別墅設計圖紙推薦
占地:178平方米
經濟實用二層農村自建房設計圖,新中式風格12x11米
占地:114平方米
平頂三層別墅設計方案,簡潔舒適大氣通透,12乘9米,打造理想住
占地:98.21平方米
最美中式農村別墅二層三間的房子圖,帶土灶房,娛樂室,大露臺
占地:180平方米
260平方米兩層帶車庫四合院房屋設計圖紙及效果圖
占地:260平方米
高端大氣三層雙拼自建房設計圖,外觀漂亮,240平左右
占地:240平方米
農村二層半雙拼別墅設計圖,客廳中空,帶大露臺
占地:270平方米
農村大戶型中式二層四合院別墅設計圖含外觀效果圖,戶型經典、
占地:464平方米
四層豪華別墅設計圖及效果圖,高端房屋設計方案
占地:250平方米
推薦:10套新農村自建房設計圖,2026年最新設計
閱讀次數:4825737次
100套鄉村別墅圖片大全,2026年最新設計
閱讀次數:2492203次
6款農村蓋一層平房的設計圖,10萬元就能建起來
閱讀次數:1852637次
這11個一層農村自建房別墅火爆了朋友圈!我最喜歡戶型十!你呢
閱讀次數:750268次
農村6萬元建一層小別墅圖,你敢相信嗎
閱讀次數:567686次
農村5萬塊就能自建房,6套普通房子設計圖分享,你沒看錯!
閱讀次數:419410次
8套農村漂亮三間平房圖片,非常適合在農村修建!
閱讀次數:411197次
農村自建房化糞池怎么做?附方案及施工過程
閱讀次數:391783次
農村一層三間平房設計圖,告別土氣養老房,讓人忍不住點贊
閱讀次數:350581次
新農村二層樓房圖片造價12萬,挑一套回家建房吧!
閱讀次數:349126次
