
|
在以前的農村,對于自建房都是草草了事,想著有個住的就夠了,哪還考慮那么多,不是找包工頭隨便畫個草圖,就是直接仿建鄰居,隨著農村的經濟發展越來越好,大家的建房標準也在升高,傳統的自建房已經漸漸被淘汰了,現在的農村抬眼望去,都是農村小別墅,不時二三個豪宅也讓人眼前一亮,看看下面兩款農村別墅,看完保證你喜歡! 農村別墅一: 基本信息 占地尺寸:11.76X12.46米 占地面積:143.02平方米 建筑面積:369.5平方米 結構類型:磚混結構 建筑層數:3層 毛坯造價:30萬左右
一層設有玄關、2臥室、客廳、廚房、餐廳、衛生間。 一進門的玄關已作隔斷,作為房屋的門面可自行設計,左邊客廳右邊臥室,左青龍右白虎,右手邊的主臥內設衛生間,顯而易見這是老人房,次臥也與公衛相鄰,十分方便,廚房與餐廳同屬一空間,功能分區合理,設計后門符合農村習性。
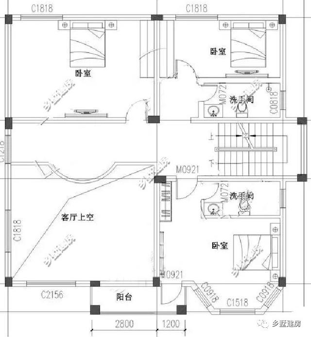
二層設有4臥室、2書房、衣帽間、2衛生間、2陽臺。 二層的設計與一層分離開來,二層以臥室為主,兩間主臥一間內設書房,另一間不僅有書房還設有獨立衛生間、陽臺與衣帽間,可謂功能性齊全,衛生間干濕分離,方便打掃。
三層設有2臥室、衛生間、露臺。 三層一般都是年輕一輩住的多,主臥有空間設衣帽間等,而次臥可作為客房或是雜物間都可,一個大的露臺功能性很強,又可晾曬又可娛樂。
農村別墅二: 基本信息 占地尺寸:11.4X11.8米 占地面積:146平方米 建筑面積:381平方米 結構類型:框架結構 毛坯造價:38萬左右
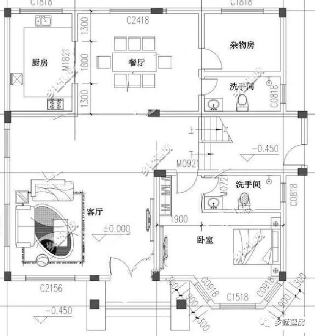
一層設有客廳、臥室、廚房、餐廳、雜物間、2洗手間。 這間別墅的可塑性很強,如果不想要玄關過渡空間這樣即可,但如果想要可把客廳換個方位,電視放在廚房那邊,改造起來也是分分鐘的事,廚房與餐廳依然相鄰,主臥內設衛生間,獨立雜物間對于農村來說,必不可少。
二層設有3臥室、2洗手間、陽臺。 挑空客廳的設計時尚又大氣,一間臥室內設衛生間和陽臺,另一間空間極大,可自行設計,加衛生間或書房、衣帽間都可。
三層設有3臥室、露臺、衛生間。 三層一般在農村都是作為客房,一間公衛即可,方便還好打掃,一個大露臺是城里人遙不可及的夢,想怎么設計怎么設計!
圖紙之家-專注農村別墅/自建房設計18年,集合國內200余位經驗豐富的設計師,被評為口碑最好的農村建筑設計公司! |

農村7字形漂亮房子設計圖及外觀效果圖
占地:189.3平方米
一層4間自建平房別墅及全套戶型圖紙,占地160平左右,簡單實用
占地:162.13平方米
240平農村二層自建別墅設計圖紙,帶你體驗家的溫馨
占地:240平方米
鄉村三層別墅施工圖紙帶效果圖,田園別墅設計圖紙推薦
占地:178平方米
帶地下室三層豪華大氣新農村房屋設計圖,占地150平米左右
占地:150平方米
美式田園二層別墅設計方案圖,全套設計圖+效果圖
占地:235平方米
帶架空層的兩層別墅設計圖,通透又明亮,建在農村絕對有面子
占地:106.79平方米
共用中堂雙拼兄弟三層別墅設計圖,簡歐式風格
占地:230平方米
帶車庫徽派風格三層別墅房屋設計圖,新農村住宅設計推薦
占地:140平方米
高端大氣三層半別墅客廳挑空設計,豪華農村自建房圖
占地:179.52平方米
新中式120平米農村20萬元二層小樓圖,外觀柔和而雅致
占地:120平方米
農村七字型一層別墅圖,獨立廚房設計,鄉村建房優選戶型
占地:159.76平方米
130平方米農村兩層別墅圖紙及效果圖12X11米
占地:133平方米
100平方米自建三層半別墅設計圖紙,帶地下車庫
占地:100平方米
小型雙拼一層平房設計圖,外觀古樸
占地:100平方米
150平米一層7字型別墅設計方案,功能齊全舒適簡約,設計感十足
占地:154.48平方米
13X13米新農村中式風三層別墅設計方案,內部布局緊湊溫馨
占地:168.43平方米
帶地下室一層別墅設計方案,功能布局齊全實用
占地:256.5平方米
小戶型農村三層房屋設計圖,占地120平米,布局非常合理,外表典
占地:120平方米
140平方米新農村三層房屋設計圖,磚混結構帶地下室
占地:138平方米左右
推薦:10套新農村自建房設計圖,2026年最新設計
閱讀次數:4825737次
100套鄉村別墅圖片大全,2026年最新設計
閱讀次數:2492203次
6款農村蓋一層平房的設計圖,10萬元就能建起來
閱讀次數:1852637次
這11個一層農村自建房別墅火爆了朋友圈!我最喜歡戶型十!你呢
閱讀次數:750268次
農村6萬元建一層小別墅圖,你敢相信嗎
閱讀次數:567686次
農村5萬塊就能自建房,6套普通房子設計圖分享,你沒看錯!
閱讀次數:419410次
8套農村漂亮三間平房圖片,非常適合在農村修建!
閱讀次數:411197次
農村自建房化糞池怎么做?附方案及施工過程
閱讀次數:391783次
農村一層三間平房設計圖,告別土氣養老房,讓人忍不住點贊
閱讀次數:350581次
新農村二層樓房圖片造價12萬,挑一套回家建房吧!
閱讀次數:349126次
