
|
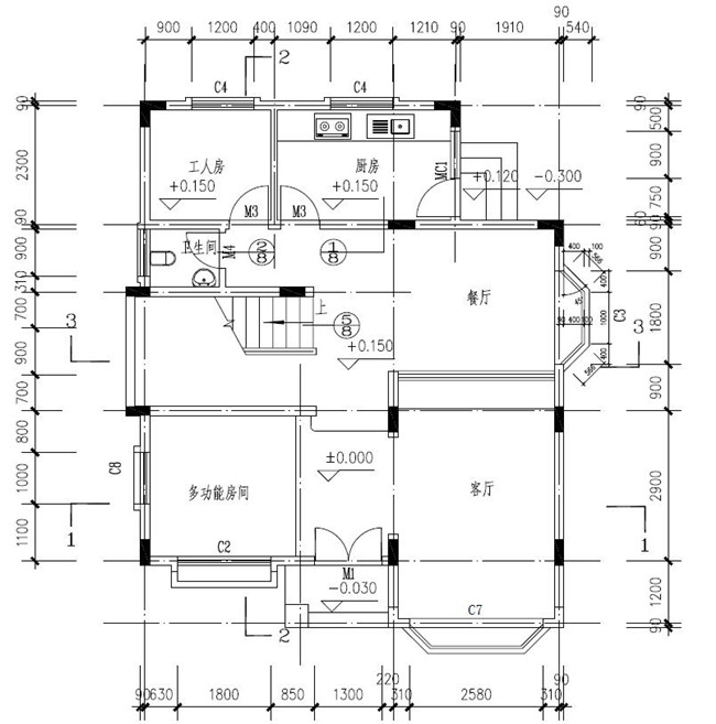
在農村自建房,小戶型的別墅越來越受農村朋友喜歡,人們不再互相攀比,只追求豪華、高端、有面子的別墅,為了讓別人的羨慕,浪費不必要的錢。而且畢竟宅基地大小有限,農村批地越來越小,現在人們更加注重生活的享受,舒適夠住,再留一些空間給小院,小院中種點綠色植物,讓整棟別墅充滿生機。 小編,這次給大家精選了幾套80平到90平的農村房屋設計圖,二層、三層、四層的都有,經濟、實用,夠住是這次的主題。 第一套:小戶型經典新農村房屋住宅設計圖,帶外觀效果圖 占地面積:8.44m*9.54m(不含院子),80平方米左右; 設計功能: 一層房屋戶型:客廳、廚房、餐廳、儲藏間、臥室、衛生間;
二層房屋戶型:小客廳、臥室x3、衛生間、陽臺;
第二套:80平方米新農村二層房屋設計圖紙 占地面積:11.2m*7.0m,80平方米左右; 設計功能: 一層戶型:客廳、餐廳、廚房、衛生間、臥室; 二層戶型:臥室(帶露臺)x2、衛生間;
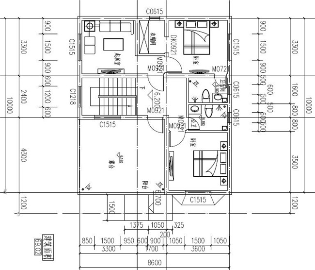
第三套:小平方二層新農村住宅設計圖,小戶型,造價低 開間:11.04米,進深:8.54米, 占地面積:89.96平方米, 建筑面積:185.92平方米;
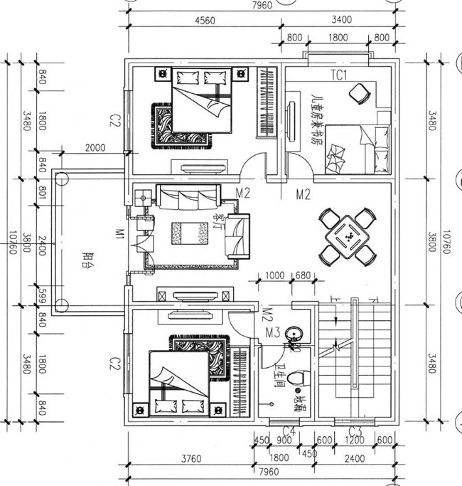
第四套:90平方米農村二層房屋設計圖紙 建筑占地面積為:10.7m*7.9m=90平方米; 預算造價:13萬 建筑高度:10.5m(含屋頂);坡屋頂; 設計功能: 一層:門廊、客廳、臥室兩間、衛生間、餐廳;
二層:陽臺、客廳、兒童房/書房、臥室兩間、衛生間、棋牌室;
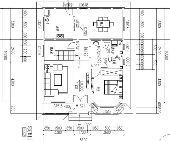
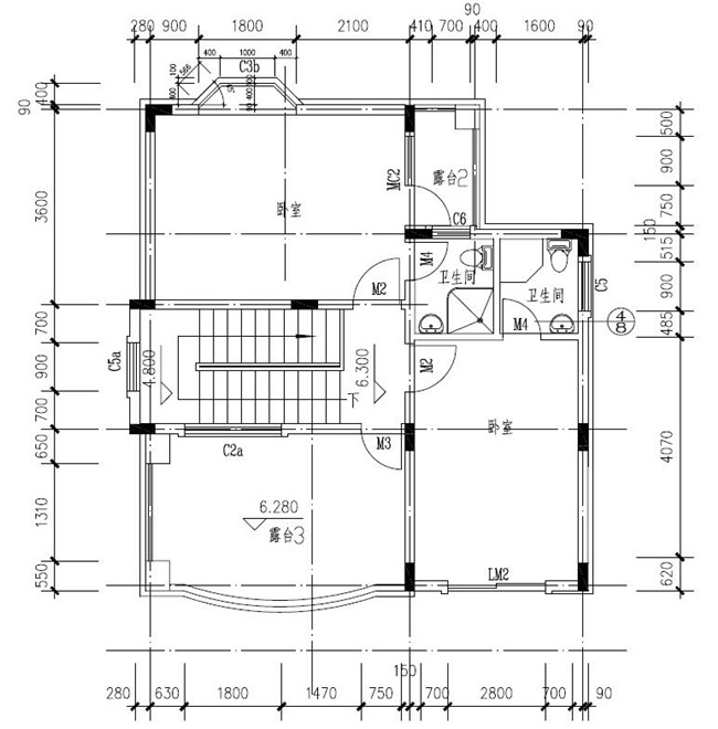
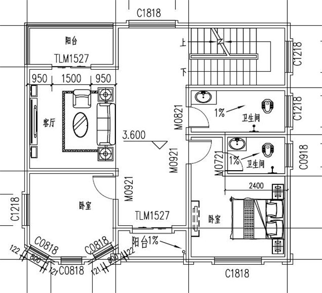
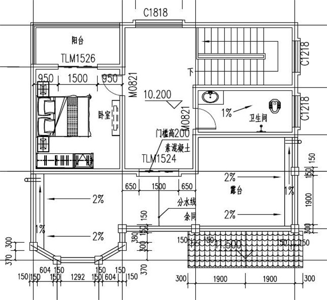
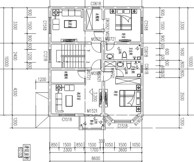
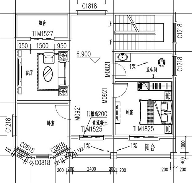
第五套:80到90平米自建樓房設計圖,小戶型經典設計 占地面積:8.60m*10.00m,86平方米左右; 設計功能: 一 層:客廳、廚房、餐廳、臥室、衛生間、洗衣房、儲藏間; 二 層:起居室(客廳)、書房(小起居室)、臥室(帶衛生間和衣帽間)、臥室(帶衛生間)、陽臺;
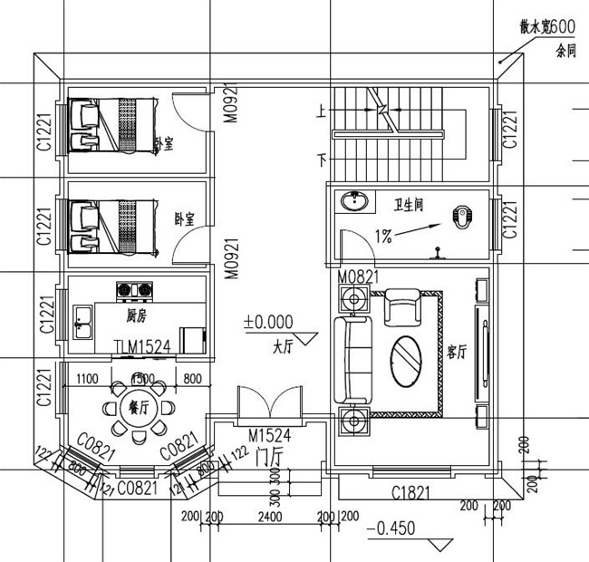
三 層:起居室、臥室(帶衛生間和衣帽間)、臥室、衛生間、露臺、陽臺;
第六套:90平方米三層小別墅設計圖紙,帶效果圖 建筑層數:三層 占地尺寸:面寬8.3米x進深12.2米 占地面積:90.7平方
造價預算:24萬
第七套:90平小戶型四層房屋設計圖,農村自建別墅推薦 占地面積:10.0m*9.0m,90平方米左右; 建筑層高:四層; 建筑高度:15.62米(含屋頂); 設計功能: 一層戶型展示:大廳、客廳、廚房、餐廳、衛生間、小臥室x2(可以合并為一個大臥室); 二層戶型展示:客廳、主臥(帶衛生間)、臥室、衛生間、陽臺x2; 三層戶型展示:客廳、臥室x2、衛生間、陽臺x3;
四層戶型展示:臥室、衛生間、大露臺、陽臺;
由于篇幅有限,只能展示著幾套,查看更多點擊網站導航,還可以找我們設計師按自己的想法定制,畢竟蓋房是大事,該花心思好好規劃下。 圖紙之家-專注農村別墅/自建房設計18年,集合國內200余位經驗豐富的設計師,被評為口碑最好的農村建筑設計公司! |

農村15萬元二層小樓圖,經濟實用小別墅設計圖
占地:105平方米
鄉村房屋改建三層房屋設計圖紙,農村樓房設計圖推薦
占地:90平方米
三層現代別墅設計圖紙,全套私人別墅圖紙(含外觀效果圖)
占地:170.38平方米
二層復式小別墅設計圖,樓中樓結構,外觀漂亮,簡單
占地:120平方米
私人二層農村小樓設計圖,外觀靚麗,富有現代氣息
占地:160平方米
帶地下室二層雙拼別墅設計圖,兄弟和睦又省錢,全家人都滿意!
占地:308平方米
農村最好看18萬左右兩層小樓圖,外觀、造型簡潔大方
占地:120平方米
三十萬農村別墅設計圖帶外觀圖片,30萬造價別墅展示
占地:125平方米
10米×12米30萬以內農村建房三層豪華歐式別墅圖,處處顯品味
占地:120平方米
三層新農村住宅房屋設計圖,溫馨美觀的戶型
占地:180平方米
農村一層半房屋設計圖,帶外觀效果圖,外觀時尚
占地:155平方米
160平方米三層帶大露臺的復式別墅設計圖紙
占地:155平方米
120平方三層房子設計圖,漂亮實用農村自建小別墅設計圖
占地:120平方米
新款農村三層雙拼聯體別墅戶型圖,客廳中空,單戶120平米左右
占地:240平方米
農村200平一層別墅房屋設計圖,外觀圖片時尚、漂亮
占地:200平方米
現代風格精致兩層農村自建房住宅設計圖,帶儲藏室
占地:163平方米
歐式二層小別墅設計圖紙(含外觀效果圖)
占地:141平方米
帶小院子的鄉村一層別墅設計圖紙,120平方米
占地:多戶型
雙拼小別墅設計圖紙(含效果圖),二層別墅設計方案精選
占地:130平方米
L字型自建房屋設計圖,一層別墅類型,外觀效果圖漂亮
占地:188.62平方米
推薦:10套新農村自建房設計圖,2026年最新設計
閱讀次數:4825737次
100套鄉村別墅圖片大全,2026年最新設計
閱讀次數:2492203次
6款農村蓋一層平房的設計圖,10萬元就能建起來
閱讀次數:1852637次
這11個一層農村自建房別墅火爆了朋友圈!我最喜歡戶型十!你呢
閱讀次數:750268次
農村6萬元建一層小別墅圖,你敢相信嗎
閱讀次數:567686次
農村5萬塊就能自建房,6套普通房子設計圖分享,你沒看錯!
閱讀次數:419410次
8套農村漂亮三間平房圖片,非常適合在農村修建!
閱讀次數:411197次
農村自建房化糞池怎么做?附方案及施工過程
閱讀次數:391783次
農村一層三間平房設計圖,告別土氣養老房,讓人忍不住點贊
閱讀次數:350581次
新農村二層樓房圖片造價12萬,挑一套回家建房吧!
閱讀次數:349126次
