
|
隨著人們生活質量逐步提高,對自建房的要求也越來越高,以前注重建筑的實用性,現在則要求實用性和美觀性的有機統一,尤其是現在最流行的三層結構自建房,經典大氣又豪華的款式不在少數,當然其中實用性的款式也有不少,本期,我們推薦兩款大氣的三層結構自建房,帶露臺設計,尤其是第二款,外觀豪華度不用多說,建成后絕對是村里獨一無二的。 第一款:
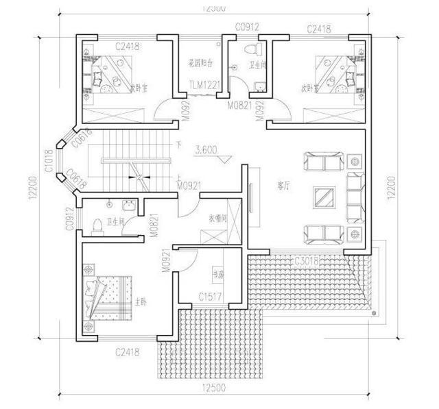
比較經典的三層結構別墅,拱形門廳和三角門廳頂的時尚設計,大氣又穩重,一側落地大窗,一側超寬體窗型,再加上方形和拱形的不同設計效果,真題效果非常精致,另設八角形的建筑結構和大露臺,建筑裝飾采用常見的文化石和真石漆的搭配效果,咖色文化石和淺黃色真石漆也都是常見的戶型顏色,白色的窗套、屋檐和建筑分層,經典又大氣;建筑設計尺寸:開間12.5米,進深12.2米,建筑占地146平米,總建筑面積349.1平米。
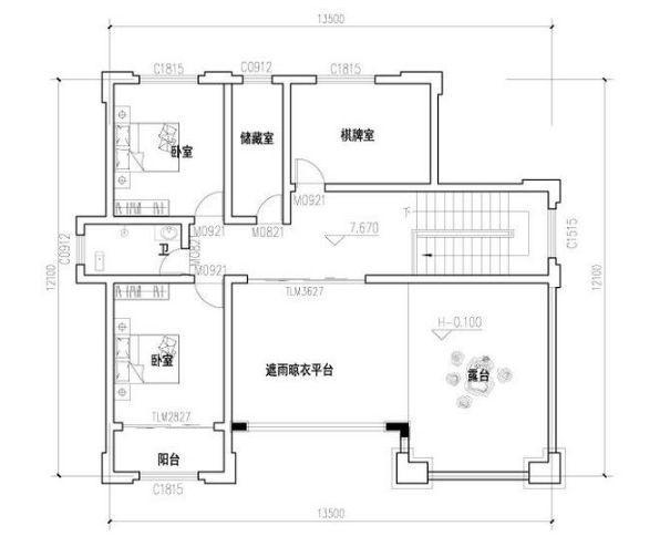
建筑入戶設玄關,右側設生活區,直線布局客廳、餐廳和廚房,餐廳空間寬敞,帶柴火灶和后門,玄關右側設生活區,設兩間臥室、公衛和樓梯間,一間臥室套房式設計,一間臥室緊鄰公衛,使用起來更加方便,另設獨立儲藏室;二層設客廳和三間臥室,陽面主臥帶衣帽間、書房和衛生間,兩次臥中間設公衛,并設公共陽臺;三層設一間大套房,設豪華浴室、衣帽間和大書房,設獨立洗衣房,洗衣房自帶晾曬用露臺,另設豪華大露臺,滿足不同功能的屋外需求。 第二款:
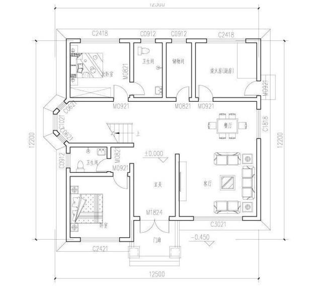
非常豪華的三層大別墅,建筑整體外形的豪華型一眼便知,建筑居中入戶,超寬的拱形門廳非常霸氣,標準的拱形落地大窗非常霸氣,雙側落地大窗的設計凸顯實力,建筑設封閉式陽臺、涼亭、小露臺和大露臺,加上梁托和墻面雕花,建筑造型和外觀裝飾的線條感厚重有力,整體淺灰色的效果豪華不失低調,這樣的造型一經出現,必定在村里造成轟動。建筑設計尺寸:開間14.4米,進深12.1米,建筑占地185平米,總建筑面積442平米。
建筑入戶設大堂屋,豪華別墅加堂屋的功能,非常接地氣,右側設復式客廳和樓梯間,直接看到建筑豪華的一面,廚房、餐廳布局合理,餐廳開后門,后門門廳的設計依然大氣十足;堂屋左側設兩間臥室,兩臥室中間由公衛區分,陽面臥室帶封閉式陽臺,次臥和餐廳之間設儲藏室;二層設公共休閑區和三間臥室,陽面主臥帶衛生間和封閉式陽臺,兩次臥之間設公衛,正面和背面各設一處室外小露臺;三層左側設兩間臥室,預留一間棋牌室和一間儲藏室,室外設超大避雨涼亭和大露臺,涼亭和露臺相連,更加實用。 兩款設計方案,第一款經典常見,第二款低調奢華,雖然都不及千平米建筑面積的大豪宅,但這在三層結構別墅中已經算豪華款式的,建筑造價自然也在百萬以上,所以對改善普通家庭的住在狀況非常有幫助。
圖紙之家-專注農村別墅/自建房設計18年,集合國內200余位經驗豐富的設計師,被評為口碑最好的農村建筑設計公司! |

農村小別墅一層設計圖紙,全套施工圖兩款戶型可選
占地:多種戶型可選
最耐看的二層別墅設計圖,15米寬12米深,方正大氣經濟美觀!
占地:180平方米
農村二層樓簡單大氣的樓房設計圖紙,帶車庫,帶露臺
占地:150平方米
110平方米農村三層復式房屋施工圖,通透時尚,低調又奢華
占地:107.98平方米
150平米左右歐式三層鄉村別墅設計圖,客廳中空
占地:150平方米
高端大氣三層半別墅客廳挑空設計,豪華農村自建房圖
占地:179.52平方米
面寬不到10米的小戶型自建房戶型圖,全套設計圖紙可施工
占地:123.2平方米左右
面寬18米二層新中式別墅圖紙設計,復式戶型,帶堂屋
占地:269.83平方米
現代風格三層別墅設計圖紙和效果圖,農村自建精選
占地:129平方米
農村二層半房子設計圖 ,占地110平米和160多平兩個戶型圖
占地:多種戶型
歐式二層農村別墅設計圖,140平方米戶型方正的好方案
占地:142.51平方米
150平二層別墅房屋設計圖,現代風格,造型精致
占地:150平方米
時尚四開間二層農村別墅,經典大氣,引領建房新潮流!
占地:159.6平方米
兩戶250平方米農村豪華歐式三層兄弟雙拼別墅設計圖
占地:251平方米
120平方米三層歐式別墅設計圖,進門就是旋轉樓梯
占地:119.76平方米
新款現代一層小別墅設計圖,農村自建平房推薦戶型
占地:多戶型可選
小戶型現代新農村三層房屋設計建筑圖及效果圖
占地:108平方米
簡歐風格別墅設計圖帶外觀效果圖,三層140平米戶型方案
占地:140平方米
一層田園風坡屋頂平房設計圖,造型漂亮時尚
占地:134.9平方米
小型四合院二層別墅設計圖方案,對稱設計,頂層大露臺
占地:114平方米
推薦:10套新農村自建房設計圖,2026年最新設計
100套鄉村別墅圖片大全,2026年最新設計
閱讀次數:2492203次
6款農村蓋一層平房的設計圖,10萬元就能建起來
閱讀次數:1852637次
這11個一層農村自建房別墅火爆了朋友圈!我最喜歡戶型十!你呢
閱讀次數:750268次
農村6萬元建一層小別墅圖,你敢相信嗎
閱讀次數:567686次
農村5萬塊就能自建房,6套普通房子設計圖分享,你沒看錯!
閱讀次數:419410次
8套農村漂亮三間平房圖片,非常適合在農村修建!
閱讀次數:411197次
農村自建房化糞池怎么做?附方案及施工過程
閱讀次數:391783次
農村一層三間平房設計圖,告別土氣養老房,讓人忍不住點贊
閱讀次數:350581次
新農村二層樓房圖片造價12萬,挑一套回家建房吧!
閱讀次數:349126次
