
|
徽派別墅在南方特別受歡迎。它以其獨特的魅力征服了所有人。它不僅具有中國傳統住宅的內涵,而且還具有南方水鄉的魅力。它就像一幅豐富多彩的山水畫,受到許多人的贊揚和喜愛。經過時代的變遷,古老的徽派建筑加入了流行語言,使徽派別墅再次出現在公眾的視野中,散發出昔日耀眼的光芒。本期小編整理了五幅經典徽派住宅設計圖紙,大氣內斂,充滿中國風格。對徽派建筑感興趣的朋友不能錯過~! 別墅圖一展示:占地面積:11.44m*11.5m,123.36平方米左右;
別墅效果圖
一層平面圖
二層平面圖 二層戶型:客廳上空、起居室、、臥室(帶衛生間)、臥室x2、衛生間、陽臺; 別墅圖二展示:占地面積:13.8m*11.1m,135.47平方米左右; 建筑層高:二層; 建筑高度:8.788米(含屋頂);
別墅效果圖 設計功能:
一層戶型圖 一層戶型:堂屋、客廳、餐廳、廚房、臥室x2、衛生間;
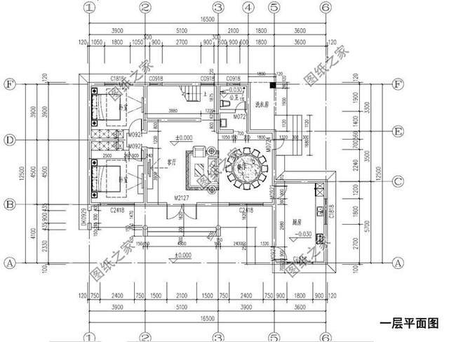
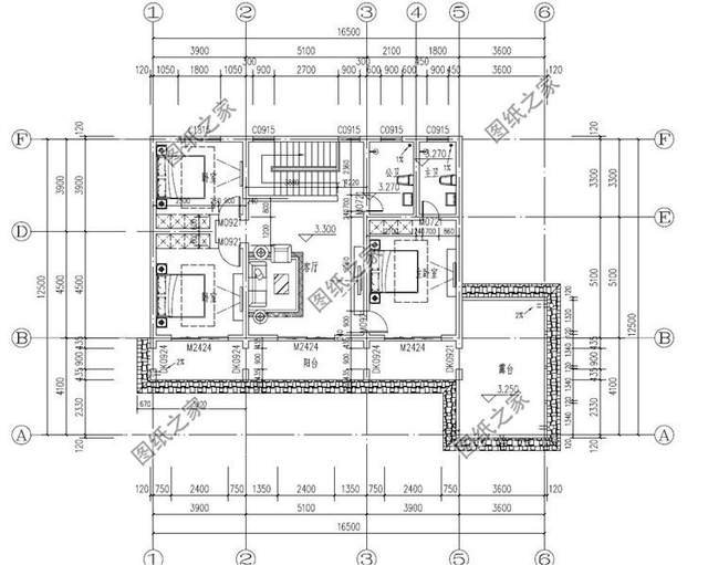
二層戶型圖 二層戶型:客廳、書房、臥室x3、衛生間、露臺; 別墅圖三展示:占地面積:16.5m*12.5m,129.88平方米左右;
正面效果圖
鳥瞰效果圖
側面效果圖
一層平面圖 一層戶型:客廳、廚房、餐廳、臥室x2、洗衣房、衛生間;
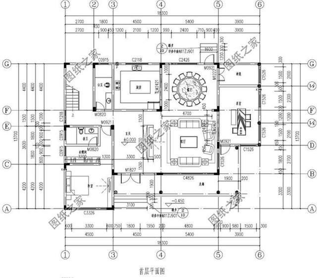
二層平面圖 二層戶型:客廳、臥室(帶衛生間)、臥室x2、衛生間、露臺、陽臺; 別墅圖四展示:占地面積:18.3m*13.7m,227平方米左右;
正面效果圖
鳥瞰效果圖
側面效果圖
一層平面圖
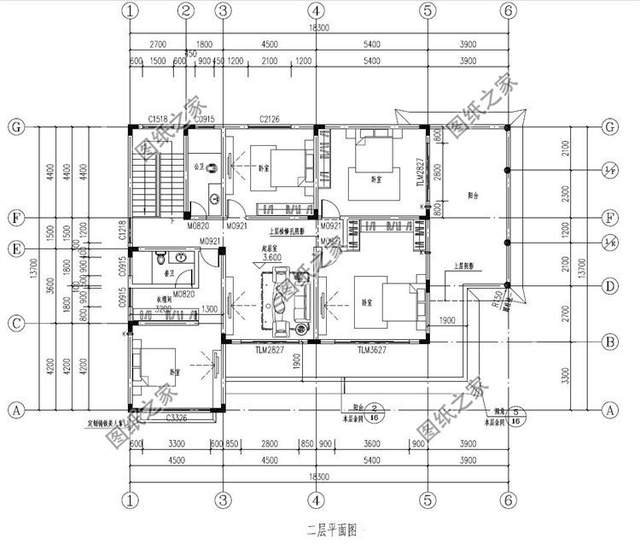
二層平面圖 二層戶型:起居室、臥室(帶衣帽間、衛生間)、臥室x3、衛生間、陽臺; 別墅圖五展示:占地面積:15.56m*13.01m,171平方米左右;
別墅效果圖
一層戶型圖
二層戶型圖 二層戶型:臥室(帶衛生間)、起居室、書房、臥室x2、衛生間、露臺、陽臺 圖紙之家-專注農村別墅/自建房設計18年,集合國內200余位經驗豐富的設計師,被評為口碑最好的農村建筑設計公司! |

100平方米新農村住宅二層小別墅設計CAD圖紙及效果圖,10x10米
占地:96平方米
精致時尚一層雙拼別墅設計圖,造價實惠,起居互不打擾
占地:369.54平方米
二開間小戶型設計三層農村自建房方案,經濟型適合小宅基地建房
占地:107.02平方米
帶地下室+挑空客廳,農村三層洋樓別墅誰家圖在
占地:97.74平方米
新農村復試兩層半樓房設計圖,帶大露臺,簡單經濟實用大氣
占地:190平方米
經典四合院別墅設計圖,復式挑空客廳讓四合院更高端
占地:175平方米左右
二層美式自建別墅設計圖,全套施工圖+外觀效果圖
占地:145平方米
80平方米鄉村一層半帶閣樓自建別墅設計圖,帶車庫
占地:80平方米
豪華二層別墅設計圖紙及別墅圖片,旋轉樓梯,內設佛堂,大大落
占地:260平方米
三層新農村別墅設計圖片及全套圖紙,外形對稱,帶露臺,這個戶
占地:160平方米
鄉村一層平房設計圖,面寬13米平面圖及造型圖
占地:170平方米
16×12米二層歐式帶車庫農村小別墅,既舒適又美觀
占地:180平方米
15萬左右新中式二層別墅設計圖平面圖,占地110平米左右
占地:110平方米
一層半帶閣樓別墅設計圖,悠閑舒適,養老度假皆可
占地:161.94平方米
農村兩層半樓房設計圖,平面功能分區明確,布置合理
占地:180平方米
堂屋共用五間雙拼別墅設計圖,適合二兄弟的二層別墅
占地:292.5平方米左右
二層復式農村別墅設計圖,進深12米,戶型堪稱完美
占地:193.2平方米
二層半農村小別墅設計方案圖,南方設計圖精選
占地:82平方米
二開間二層別墅設計圖,面寬9米,不可多得的好選擇!
占地:93.24平方米
獨棟經濟型二層小別墅房屋設計圖,含全套施工圖效果圖
占地:多種戶型
推薦:10套新農村自建房設計圖,2026年最新設計
閱讀次數:4825737次
100套鄉村別墅圖片大全,2026年最新設計
閱讀次數:2492203次
6款農村蓋一層平房的設計圖,10萬元就能建起來
閱讀次數:1852637次
這11個一層農村自建房別墅火爆了朋友圈!我最喜歡戶型十!你呢
閱讀次數:750268次
農村6萬元建一層小別墅圖,你敢相信嗎
閱讀次數:567686次
農村5萬塊就能自建房,6套普通房子設計圖分享,你沒看錯!
閱讀次數:419410次
8套農村漂亮三間平房圖片,非常適合在農村修建!
閱讀次數:411197次
農村自建房化糞池怎么做?附方案及施工過程
閱讀次數:391783次
農村一層三間平房設計圖,告別土氣養老房,讓人忍不住點贊
閱讀次數:350581次
新農村二層樓房圖片造價12萬,挑一套回家建房吧!
閱讀次數:349126次
