
|
當下農村自建房,最讓人頭疼的是戶型選擇,想要自家的別墅好看又實用,選擇一套漂亮的圖紙很重要。不僅要考慮到室內布局,還應考慮到通風采光和外觀。今天就給大家分享10套現代感十足的農村別墅設計,來看看你最喜歡哪套? 第一套:
占地尺寸:14.1m*9.3m 占地面積:131.13㎡ 建筑面積:262.3㎡ 共設:4室 2廳 1廚 3衛 1車庫 1露臺 平面布局如下:
第二套:
占地尺寸:15.2m*16.2m 占地面積:246.24㎡ 建筑面積:278㎡ 共設:4室 3廳 1廚 4衛 1車位 3露臺 1陽臺 平面布局如下:
第三套:
占地尺寸:8m*11.6m 占地面積:92.8㎡ 建筑面積:167.6㎡ 共設:4室 2廳 4衛 1露臺 平面布局如下:
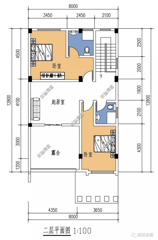
第四套:
占地尺寸:7m*9.6m 占地面積:67.2㎡ 建筑面積:134.4㎡ 共設:3室 2廳 1廚 2衛 1陽臺 平面布局如下:
第五套:
占地尺寸:8.025*11.33m 占地面積:91㎡ 建筑面積:182㎡ 共設:4室 2廳 1廚 3衛 1陽臺 1露臺 平面布局如下:
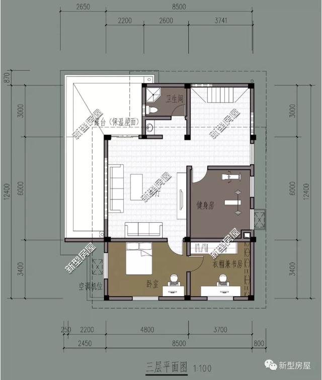
第六套:
占地尺寸:9.7m*12.4m 占地面積:120.3㎡ 建筑面積:361㎡ 共設:6室 4廳 1廚 3衛 1涼亭 1代銷店 1休閑室 1健身房 1露臺 平面布局如下:
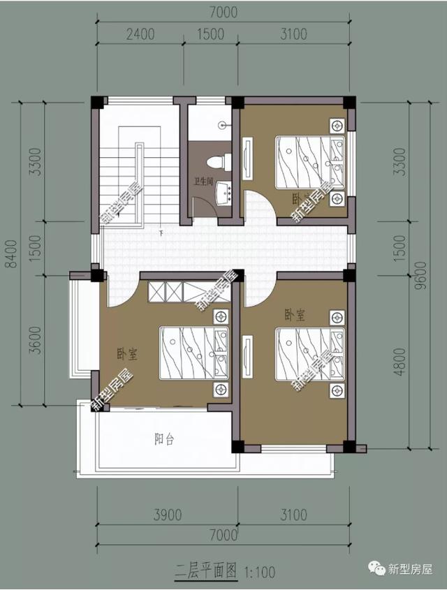
第七套:
占地尺寸:10m*10m 占地面積:100㎡ 建筑面積:213.32㎡ 共設:6室 1廳 1廚 2衛 1起居室 2陽臺 1平臺 平面布局如下:
第八套:
占地尺寸:10.7m*10.5m 占地面積:112.35㎡ 建筑面積:200.7㎡ 共設:5室 2廳 1廚 2衛 1雜物間 1露臺 平面布局如下:
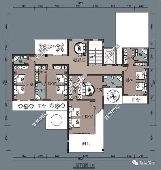
第九套:
占地尺寸:24.3m*15.3m 占地面積:371.8㎡ 建筑面積:1115㎡ 共設:7室 3廳 1廚 9衛 1棋牌室 1洗衣房 1農居房 1沖洗房 1儲藏間 1書房 1佛堂 4露臺 4陽臺 平面布局如下:
第十套:
占地尺寸:12.4m*12.3m 占地面積:152.5㎡ 建筑面積:200㎡ 共設:6室 2廳 1廚 5衛 1閑居室 3書房 2陽臺 1露臺 平面布局如下:
你最喜歡哪套戶型? 圖紙之家-專注農村別墅/自建房設計18年,集合國內200余位經驗豐富的設計師,被評為口碑最好的農村建筑設計公司! |

鄉下建房一層戶型圖及全套圖紙,養老房,還是一層好
占地:210平方米
農村25萬別墅款式二層自建房設計圖,外觀圖時尚
占地:115平方米
小開間三層新中式小別墅設計圖,外觀圖優雅大氣,讓人心動!
占地:103.18平方米
14x12.5米二層農村別墅設計圖,布局完美獨立,顏值高又實用
占地:153.95平方米
10萬內2層小洋樓設計圖,平屋頂,戶型設計合理
占地:90平方米
現代風格建房圖紙二層別墅設計方案,外觀百看不厭
占地:多戶型可選
農村40萬房子圖片外觀設計效果圖,帶地下室,外觀時尚大氣
占地:110平方米
新式160平方米農村三層樓房設計圖,客廳中空
占地:160平方米
現代風平屋頂一層自建房設計,經濟時尚
占地:147.17平方米
農村七字型一層別墅圖,獨立廚房設計,鄉村建房優選戶型
占地:159.76平方米
精致時尚一層雙拼別墅設計圖,造價實惠,起居互不打擾
占地:369.54平方米
時尚現代的二層農村別墅設計圖,年輕人建房的不二之選
占地:131.76平方米
鄉村最美四合院設計圖及外觀效果圖片,國人的理想住宅
占地:280.62平方米
架空層的一層三合院別墅設計圖紙,這樣設計太贊了
占地:172.06平方米
小戶型三層現代風別墅設計圖,可別再說農村不適合現代風了
占地:92.34平方米
一層新中式三合院設計,建好城里大平層都不香了
占地:294.12平方米
230平方米新農村二層自建別墅設計圖紙帶外觀圖,20X11米
占地:227平方米
三層新農村住宅設計圖及效果圖,三層樓房設計圖展示
占地:140平方米
16米乘12米農村二層別墅設計圖,布局舒適寬敞、客廳挑空
占地:188.18平方米
占地130平方米二層鄉村別墅自建房圖紙設計圖,效果圖好看
占地:131.658平方米
推薦:10套新農村自建房設計圖,2026年最新設計
閱讀次數:4825737次
100套鄉村別墅圖片大全,2026年最新設計
閱讀次數:2492203次
6款農村蓋一層平房的設計圖,10萬元就能建起來
閱讀次數:1852637次
這11個一層農村自建房別墅火爆了朋友圈!我最喜歡戶型十!你呢
閱讀次數:750268次
農村6萬元建一層小別墅圖,你敢相信嗎
閱讀次數:567686次
農村5萬塊就能自建房,6套普通房子設計圖分享,你沒看錯!
閱讀次數:419410次
8套農村漂亮三間平房圖片,非常適合在農村修建!
閱讀次數:411197次
農村自建房化糞池怎么做?附方案及施工過程
閱讀次數:391783次
農村一層三間平房設計圖,告別土氣養老房,讓人忍不住點贊
閱讀次數:350581次
新農村二層樓房圖片造價12萬,挑一套回家建房吧!
閱讀次數:349126次
