
|
現在還有不少人覺得農村的生活水平不如城市,但是隨著基礎設施的完善,農村的生活水平完全不必城里差,而且居住環境更好、生活壓力也低。如果所在的村子交通方便,生活更是比城里省吃儉用要好很多。 下邊給大家推薦6套農村二層別墅,溫馨舒適又大氣,有這么一棟別墅誰還去城里買房啊! 第一套
正面效果圖
鳥瞰圖
背面效果圖 占地面積:9.34m*11.24m,105平方米左右; 建筑層高:二層; 建筑高度:8.1米(含屋頂); 設計功能: 一層戶型:客廳、餐廳、廚房、衛生間、臥室、儲物間; 二層戶型:客廳、臥室x2、書房、衛生間;
一層平面圖
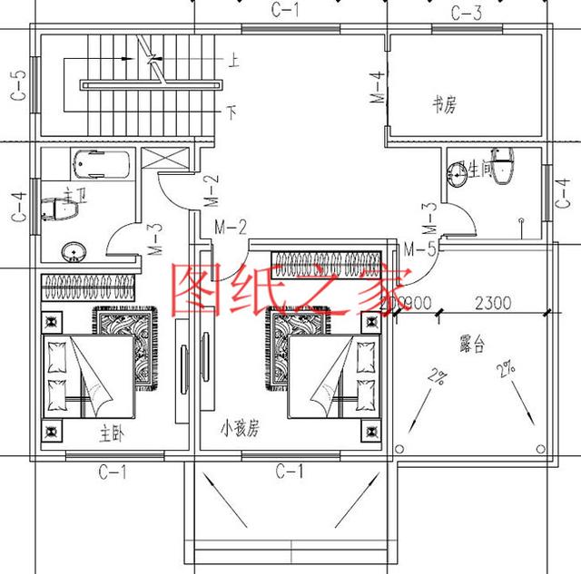
二層平面圖 第二套
正面效果圖
鳥瞰圖
背面效果圖 占地面積:13.0m*12.2m,155平方米左右; 建筑層高:二層; 建筑高度:10.34米(含屋頂); 設計功能: 一層戶型:大堂、客廳、餐廳、廚房、臥室x2、衛生間; 二層戶型:客廳、主臥(帶衣帽間和衛生間)、臥室x2、衛生間、大露臺、陽臺;
一層平面圖
二層平面圖 第三套
正面效果圖
鳥瞰圖 占地面積:17.4m*14.4m,一層建筑面積235平方米左右; 建筑高度:9.00米(含屋頂); 設計功能: 一層戶型:玄關、客廳、餐廳、廚房、主臥(帶衛生間)、臥室x2、衛生間、儲藏間(樓梯下,或洗衣房); 二層戶型:起居室、棋牌室、主臥套房(帶衛生間和書房)、臥室x4、衛生間、陽臺;
一層平面圖
二層平面圖 第四套
別墅效果圖 占地面積:10.9m*9.1m,占地面積105平方米左右; 建筑高度:9.5米(含屋頂); 設計功能: 一層戶型:客廳、餐廳、廚房、活動室、老人房、衛生間、配房(可以不建造); 二層戶型:主臥(帶衛生間)、臥室、書房、衛生間、大露臺;
一層平面圖
二層平面圖 第五套
別墅效果圖 占地面積:14.4m*10.6m,一層建筑面積160平方米左右; 建筑高度:9.90米(含屋頂); 設計功能: 地下戶型層:功能自定義; 一層戶型:門廳、客廳、臥室x3、廚房、餐廳、衛生間; 二層戶型:客廳、臥室x4、衛生間、露臺、陽臺;【衛生間旁的臥室建議做成棋牌室、娛樂室等】 屋頂戶型:大露臺;
地下平面圖
一層平面圖
二層平面圖
屋頂平面圖 第六套
別墅效果圖 占地面積:13.8m*14.4m,198平方米左右; 建筑高度:9.64米(含屋頂); 設計功能: 一層戶型:客廳、門廳、設備房、工人房、洗衣房、廚房、早餐室、客臥、儲藏間、衛生間X2、車庫; 二層戶型:主臥(帶衛生間、更衣室)、臥室x2、衛生間、起居室、露臺;
一層平面圖
二層平面圖 這幾套別墅的設計圖,你最喜歡哪一套? 圖紙之家-專注農村別墅/自建房設計18年,集合國內200余位經驗豐富的設計師,被評為口碑最好的農村建筑設計公司! |

戳中年輕人喜好!時尚三層自建房,簡約時尚設計,住著舒適自然
占地:169.76平方米
占地120平米清新脫俗簡單二層別墅設計方案,含效果圖
占地:119.01平方米
開間9到10米簡約別墅設計圖紙帶效果圖,全套別墅設計方案
占地:122平方米
農村中式一層三合院自建房設計圖,古典大氣白墻黛瓦
占地:177.62平方米
農村三層雙拼別墅設計圖,帶外觀效果圖,推薦
占地:190平方米
農村中式一層合院別墅設計圖,帶小院子規劃設計
占地:202平方米左右
經典中式三合院設計,一層空間實用大氣,輕松實現理想家園!
占地:160.53平方米
120平農村三層自建房屋設計圖,旋轉樓梯復式別墅戶型方案
占地:119.23平方米
農村帶閣樓一層房屋設計施工圖,13X9米
占地:102平方米
農村二層帶車庫四合院別墅設計圖,新中式外觀圖片,戶型實用方
占地:247平方米
帶框架層的四層別墅設計圖,框架層功能布局很多,很實用
占地:169.09平方米
50萬左右農村豪華二層別墅設計圖 ,大廳中空,外觀精美
占地:210平方米
占地百平農村三層戶型方案,簡約實用,獨具特色,理想新居等你
占地:105.61平方米
鄉村典型自建房中式二層四合院別墅設計圖,左右對稱設計
占地:430平方米
120平方兩層房子設計圖及圖片,外觀大方好看,內部結構合理
占地:120平方米
鄉村房屋改建三層房屋設計圖紙,農村樓房設計圖推薦
占地:90平方米
田園輕奢三層帶露臺的鄉村別墅設計圖紙,11x10米
占地:106.64平方米
最新設計的三層農村別墅圖紙,帶車庫,帶露臺,占地150平米左右
占地:150平方米
二層別墅設計圖紙及效果圖,占地200平米,外觀精致優雅,小有情
占地:200平方米
帶閣樓兩層半雙拼別墅房屋設計圖,帶外觀效果圖
占地:240平方米
推薦:10套新農村自建房設計圖,2026年最新設計
閱讀次數:4825737次
100套鄉村別墅圖片大全,2026年最新設計
閱讀次數:2492203次
6款農村蓋一層平房的設計圖,10萬元就能建起來
閱讀次數:1852637次
這11個一層農村自建房別墅火爆了朋友圈!我最喜歡戶型十!你呢
閱讀次數:750268次
農村6萬元建一層小別墅圖,你敢相信嗎
閱讀次數:567686次
農村5萬塊就能自建房,6套普通房子設計圖分享,你沒看錯!
閱讀次數:419410次
8套農村漂亮三間平房圖片,非常適合在農村修建!
閱讀次數:411197次
農村自建房化糞池怎么做?附方案及施工過程
閱讀次數:391783次
農村一層三間平房設計圖,告別土氣養老房,讓人忍不住點贊
閱讀次數:350581次
新農村二層樓房圖片造價12萬,挑一套回家建房吧!
閱讀次數:349126次
