
|
今天分享給大家的是10套農村自建房別墅戶型,兩層,三層都有,中式西式全含,您可以挑一套您喜歡的,作為您自建房的設計基礎。您也可以對這些戶型提出意見,大家評論最實用的一套,我們會將戶型根據大家意見調整,細化,并配上3d效果圖,立面圖及平面圖,如新農村實用自建房雙拼戶型 24米X11米 戶型效果平面圖。
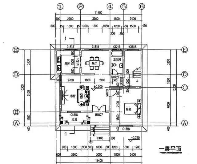
戶型一 長寬:11.4×10.3米; 建筑面積:208平方米;
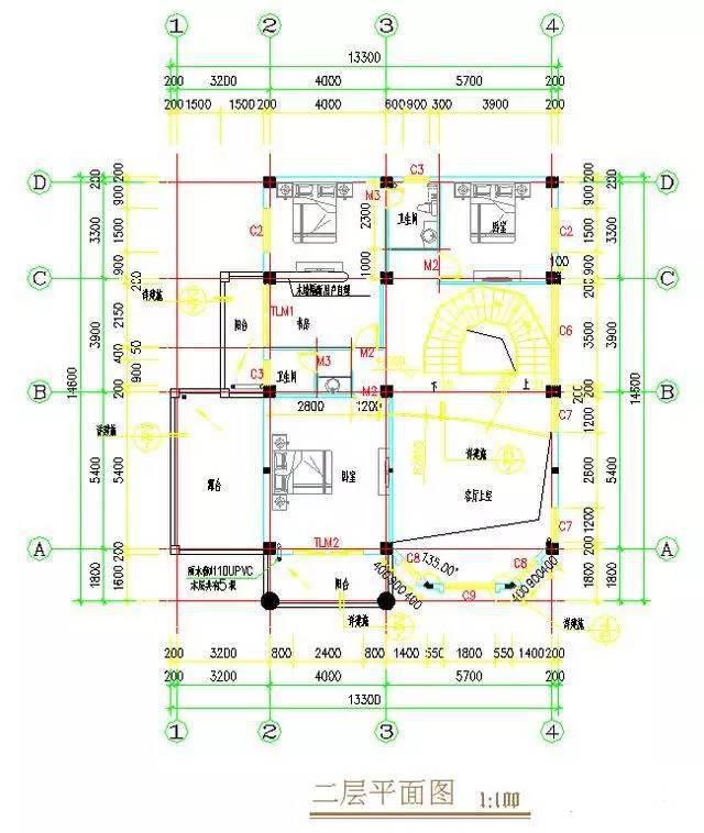
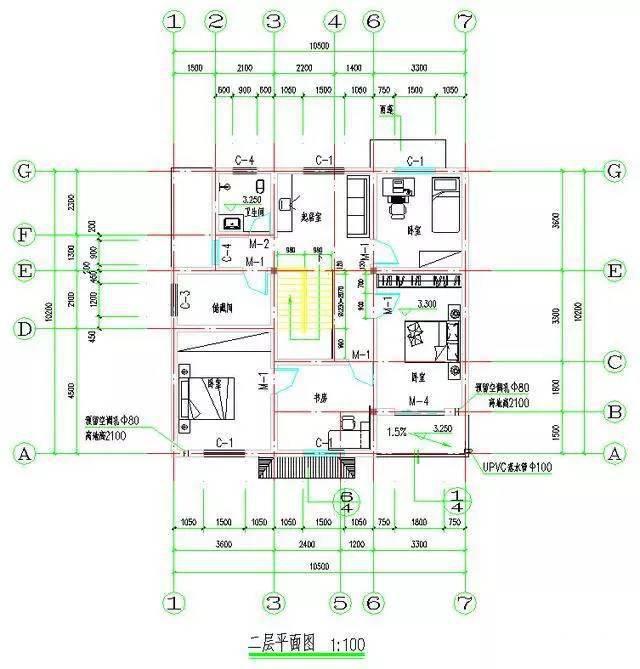
戶型二 長寬:13.32×13.72米; 建筑面積:316平方米;
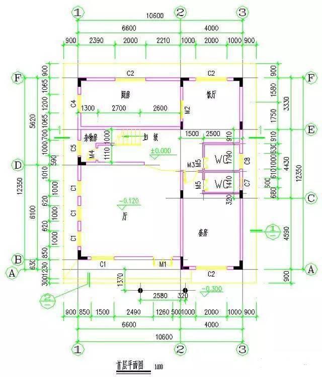
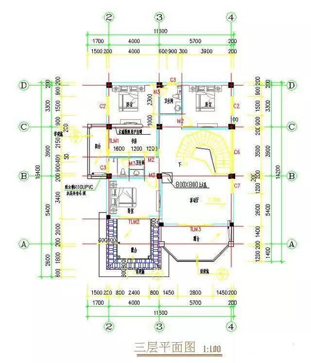
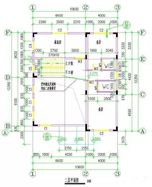
戶型三 長寬:10.66×12.35米; 建筑面積:323平方米;
戶型四 長寬:12×14.6米; 建筑面積:324平方米;
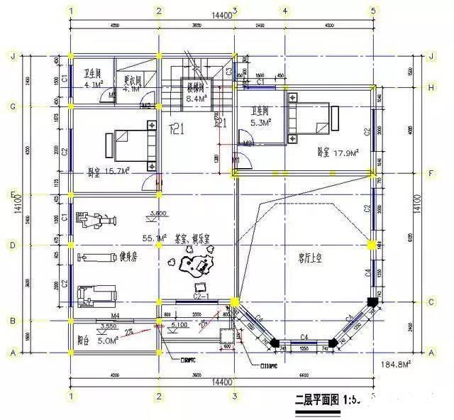
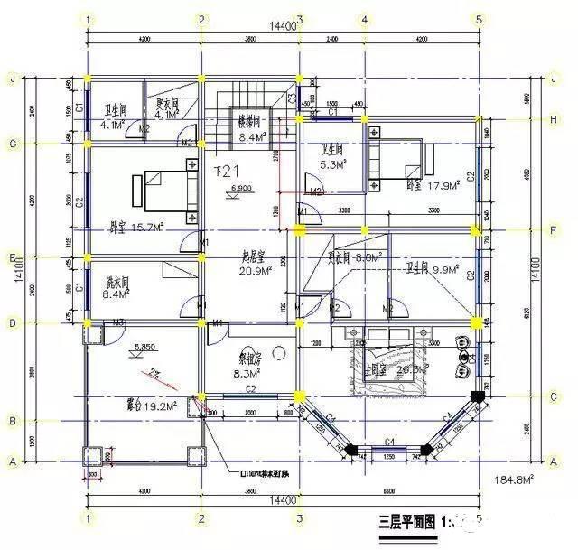
戶型五 長寬:14.4×14.1米; 建筑面積:560平方米;
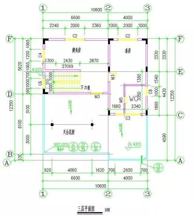
戶型六 長寬:14.4×13.6米; 建筑面積:268平方米;
戶型七 長寬:13.3×14.6米; 建筑面積:366平方米;
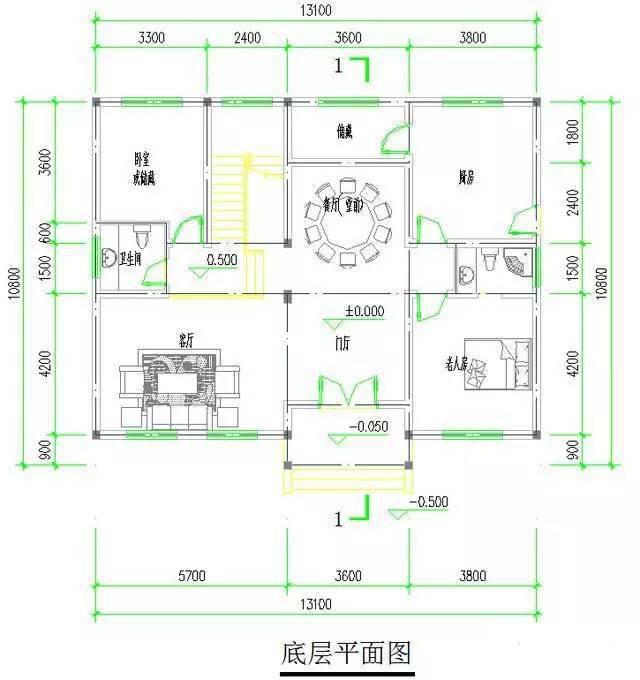
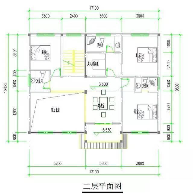
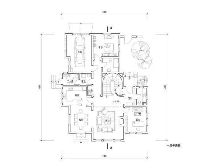
戶型八 長寬:13.1×10.8米; 建筑面積:492平方米;
戶型九 長寬:10.5×10.2米; 建筑面積:265平方米;
戶型十 長寬:10.8×12米; 建筑面積:460平方米;
圖紙之家-專注農村別墅/自建房設計18年,集合國內200余位經驗豐富的設計師,被評為口碑最好的農村建筑設計公司! |

漂亮的農村三層小樓房設計圖,簡單大氣,帶車庫
占地:150平方米
35萬左右的農村小別墅設計圖及效果圖,新中式風格
占地:137平方米
三十萬農村別墅設計圖帶外觀圖片,30萬造價別墅展示
占地:125平方米
農村一層中式三合院太香了!白墻黛瓦,有院有景超宜居
占地:364.72平方米
帶車庫的三層房屋方案設計圖,帶堂屋全套圖紙
占地:163.8平方米
經濟型實用歐式一層小樓房別墅平房設計圖,11X10米
占地:103平方米
一層農村自建房別墅設計方案,左右對稱布局好
占地:154平方米
兩層三間農村房屋設計圖,新農村住宅方案推薦
占地:155平方米
最新歐式三層別墅設計圖紙,超漂亮,預算30到40萬
占地:160平方米
2026二層農村新款別墅戶型圖,占地不到110平米
占地:110平方米
新中式高端三層雙拼自建房別墅設計圖,豪華霸氣的外觀
占地:256.02平方米左
農村自建房10萬以下兩層別墅設計圖含外觀效果圖片
占地:105平方米
小占地的農村別墅設計圖,占地僅72平米,參考造價不到15萬
占地:多戶型可選
20多萬的造價一層三合院農村自建房效果圖
占地:225.048平方米
歐式漂亮農村三層自建房設計圖紙,兩個戶型方案可選
占地:多戶型可選
170平方米農村二層小別墅設計圖及效果圖
占地:170平方米
新中式農村三層房屋效果圖及施工圖,140平方米左右
占地:140平方米
180平方米新農村雙拼戶型別墅房屋設計圖紙帶外觀圖17X11米
占地:180平方米
150平農村三層歐式別墅設計圖紙,盡顯豪華與精致,讓人羨慕不已
占地:147.62平方米
面寬不到8米的農村二層半別墅建筑圖紙及效果圖
占地:96平方米左右
推薦:10套新農村自建房設計圖,2026年最新設計
閱讀次數:4825737次
100套鄉村別墅圖片大全,2026年最新設計
閱讀次數:2492203次
6款農村蓋一層平房的設計圖,10萬元就能建起來
閱讀次數:1852637次
這11個一層農村自建房別墅火爆了朋友圈!我最喜歡戶型十!你呢
閱讀次數:750268次
農村6萬元建一層小別墅圖,你敢相信嗎
閱讀次數:567686次
農村5萬塊就能自建房,6套普通房子設計圖分享,你沒看錯!
閱讀次數:419410次
8套農村漂亮三間平房圖片,非常適合在農村修建!
閱讀次數:411197次
農村自建房化糞池怎么做?附方案及施工過程
閱讀次數:391783次
農村一層三間平房設計圖,告別土氣養老房,讓人忍不住點贊
閱讀次數:350581次
新農村二層樓房圖片造價12萬,挑一套回家建房吧!
閱讀次數:349126次
