
|
隨著城市房價的越來越高,在城市買房的人也變得越來越少,農村近些年的發展越來越好,所以更多的人都愿意回到農村自建房,但是在城市買房,只用選擇價格合適,戶型適合的套間就可以了,在農村建房卻要從零開始,無論是造型還是功能的設計對于缺乏專業知識的人來說都不是一件簡單的事,以前農村住房普普通通,只是簡單的一個方盒子就可以了,而現在農村住房的款式逐漸多樣化,我們當然也要建一棟精致的小別墅,下面我就給大家推薦兩款農村別墅圖紙,精致典雅的小別墅你不想建一棟嗎? 款式一:
第一款是一棟二層現代風格的別墅,別墅一層的外墻采用的是灰褐色裝飾,這樣的顏色不易弄臟,而且能夠更好的融入農村的周邊環境中,二層是亮眼的黃色,使得別墅更為引人注目,紅色的坡屋頂也使別墅充滿生機,也象征了居住者對生活的向往與期盼,門樓的設計也十分有氣勢,大面積的開窗更是保證了室內能夠獲得更加充足的采光與通風。
一層進門處設有入戶平臺,作為室內外的緩沖空間,進門后是一個過廳作為緩沖區域,左側是一間客廳,作為接待客人以及日常活動場所,右側有兩間臥室與一間衛生間,一間可以作為老人房,方便腿腳不便的老人居住,還有一間可以作為客房,再往內是相鄰的餐廳與廚房,兩者相鄰更方便日常就餐。
二層有三間臥室且彼此之間不相鄰,還有一間衛生間與一間書房,書房可以作為小孩學習以及大人辦公的場所,中間的區域可以作為室內活動空間,二層還有一個小陽臺。 款式二:
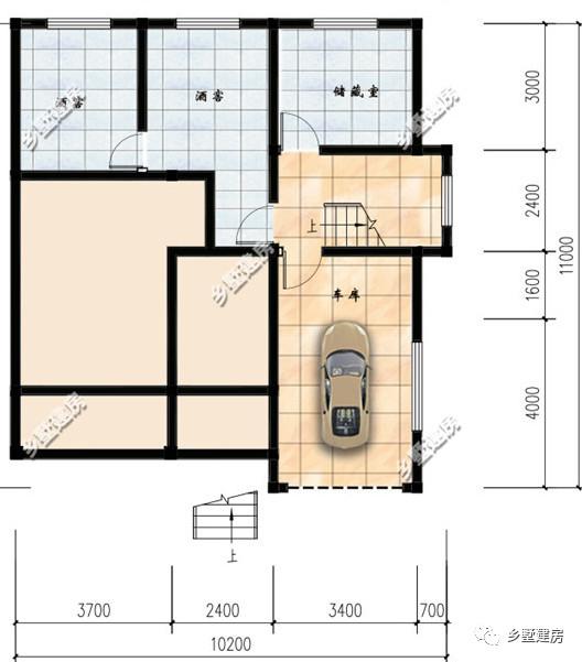
第二款是一棟三層別墅,負一層是地下室,別墅帶有車庫,能夠滿足農村有車家庭的需求,別墅款式也比較新穎,帶有時尚的氣息,進門處有臺階,可以保證室內抬高,避免室內潮濕。
負一層有車庫,酒窖以及儲藏室。
一層室外有一條長廊,進門后是一個過廳已經一間客廳,還有一間老人房與一間客房,再往內是餐廳與廚房,還有一間公用的衛生間。
二層有四間臥室,兩間衛生間,主臥帶有衣帽間與單獨的維護僧伽,還有一個室外陽臺,二層還有一個小的室內活動空間。 上面這兩款別墅怎么樣?看上了就趕緊回村建一棟吧! 圖紙之家-專注農村別墅/自建房設計18年,集合國內200余位經驗豐富的設計師,被評為口碑最好的農村建筑設計公司! |

闊氣高端的三層別墅設計圖,亮得恰到好處,永遠也住不膩
占地:160平方米
120多平米三層農村別墅設計圖,把實用做到極致,造價適中
占地:126.85平方米
農村三層私人住宅設計圖紙及效果圖,帶車庫,帶露臺
占地:150平方米
大氣自建三層雙拼別墅戶型圖方案,完美的戶型就是它
占地:287平方米
200平方米農村二層中式四合院設計圖,含外觀圖片
占地:200平方米
農村中式一層三合院自建房設計圖,古典大氣白墻黛瓦
占地:177.62平方米
平屋頂二層自建房帶商鋪別墅設計圖紙及外觀圖
占地:225平方米
小型四合院二層別墅設計圖方案,對稱設計,頂層大露臺
占地:114平方米
農村四間一層房屋設計圖,160平方米,用來養老正合適!
占地:160平方米
預算20萬左右三層別墅設計圖紙,新農村自建房推薦
占地:118平方米
二層小別墅外觀圖片,別墅圖紙,外觀時尚,布局簡單實用,挑空
占地:230平方米
豪華三層歐式雙拼別墅設計圖紙,雙拼歐式別墅如何設計看這款
占地:258.294平方米
四間兩層別墅房屋設計圖,外觀效果圖好看
占地:235平方米
簡單實用的四層農村自建房屋設計圖,占地100平米左右
占地:100平方米
造型新穎漂亮的農村二層現代風別墅設計圖,老少皆宜的外觀
占地:144.54平方米
120平方米農村一層平房別墅設計圖紙,含外觀效果圖
占地:125平方米
歐式新農村三層復式樓自建房別墅圖紙,旋轉樓梯設計
占地:128平方米
110平方米農村兩層別墅設計效果圖及圖紙,12X12米
占地:110平方米
簡單農村二層自建房子設計圖,主體18萬就能建好,太心動了!
占地:124.53
新農村三層別墅設計圖紙及效果圖,全套cad建筑圖
占地:119平方米
推薦:10套新農村自建房設計圖,2026年最新設計
閱讀次數:4825737次
100套鄉村別墅圖片大全,2026年最新設計
閱讀次數:2492203次
6款農村蓋一層平房的設計圖,10萬元就能建起來
閱讀次數:1852637次
這11個一層農村自建房別墅火爆了朋友圈!我最喜歡戶型十!你呢
閱讀次數:750268次
農村6萬元建一層小別墅圖,你敢相信嗎
閱讀次數:567686次
農村5萬塊就能自建房,6套普通房子設計圖分享,你沒看錯!
閱讀次數:419410次
8套農村漂亮三間平房圖片,非常適合在農村修建!
閱讀次數:411197次
農村自建房化糞池怎么做?附方案及施工過程
閱讀次數:391783次
農村一層三間平房設計圖,告別土氣養老房,讓人忍不住點贊
閱讀次數:350581次
新農村二層樓房圖片造價12萬,挑一套回家建房吧!
閱讀次數:349126次
