
|
在房價依舊讓人膽顫的北京,動輒百萬千萬的戶型,對于當代年輕人來說,的確是座望不到頭的高山,就連許多北京當地人都覺得頭皮發麻。
所以,越來越多年輕人,選擇在北京老家自建一套別墅。本案設計,既是位于北京平谷的一處新中式別墅,占地184㎡,建筑面積達到366㎡,于寸土寸金的北京城來說,的確算是居住及養老的好地方。
△自建新中式別墅 總平面示意圖 該宅基地,東側和北側均是鄰居住宅,西側則是村內道路,南側情況較為復雜,是村路和鄰居住宅。在建設前期,業主就要求在立面上要依照新中式風格來設計,最終本案項目確定為南北朝向的二層新中式別墅。
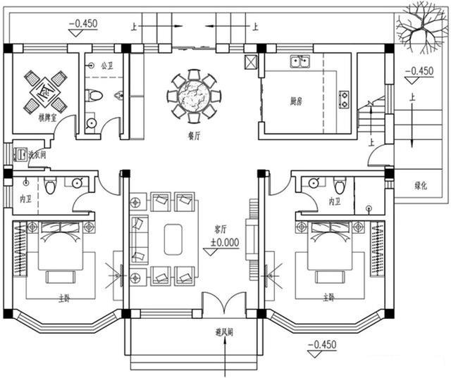
△自建新中式別墅 一層平面圖 本案新中式別墅,采用了三開間的形式來布局,空間劃分較為分明簡潔。一層空間的東南北側,均設置了入戶門,于庭院進行了布局上的溝通和鏈接,日常出入極為方便。 客廳和餐廳南北通透,兩件臥室被設置在了東南和西南角,極大保證了室內的采光效果。
△自建新中式別墅 二層平面圖 二層南側布局與一層布局保持了一致,而北側則設置了兩間客臥和書房,加強了空間的居住功能性。由于北側相鄰鄰居住房,無法開窗,所以采用天窗設計,來解決北側臥室的采光問題。
△自建新中式別墅 鳥瞰圖 本案新中式別墅設計,在風格上為新中式,整體里面造型以對稱設計,來呼應三開間的格局形式,整棟別墅顯得層次分明,庭院之中,以玻璃頂+木柵格的形式,來提高庭院的景觀性。
△自建新中式別墅 鳥瞰圖
△自建新中式別墅 鳥瞰圖 屋頂以青瓦來凸顯新中式風格,并配合八角窗的凹凸變化進行了改造,使得屋面并無太多檐脊裝飾,素雅簡約之中,依舊中式之韻滿滿。
△自建新中式別墅 西南側效果圖 整體別墅以黑灰色調為主,搭配大面積的開窗設計,讓別墅氛圍趨向素雅古樸,而門廳部分采用了灰瓦門檐設計,融入了更多的中式傳統元素。
△自建新中式別墅 鳥瞰圖
△自建新中式別墅 鳥瞰圖 本案別墅在庭院設計上,加入了多種景觀設計,并且在入戶門中,加入了影壁元素。且西側休閑區和東側景觀區,設計師加入了大量的植物景觀和水景,山光水色一體,庭院之間,落闊大方,更顯自然氣息。
△自建新中式別墅 東立面圖
△自建新中式別墅 西立面圖
△自建新中式別墅 南立面圖
△自建新中式別墅 北立面圖 現場施工目前本案項目,已經進入了施工階段,已經正式開工,并且一層墻體階段已經開始進行。
△自建新中式別墅 基礎開挖、墊層澆筑
△自建新中式別墅 基礎鋼筋綁扎、支模
△自建新中式別墅 基礎鋼筋、模板驗收
△自建新中式別墅 地基基礎完工 圖紙之家-專注農村別墅/自建房設計18年,集合國內200余位經驗豐富的設計師,被評為口碑最好的農村建筑設計公司! |

別致漂亮二層別墅設計圖紙,占地160平米左右,精致的外觀,讓人
占地:160平方米
造價40萬內三層別墅房屋設計方案,設計圖+外觀效果圖
占地:150平方米
新農村三層帶露臺自建房設計施工圖,農村自建別墅推薦
占地:112平方米
90平小戶型四層房屋設計圖,農村自建別墅推薦
占地:90平方米
18米寬一層中式小院設計圖,三合院戶型布局寬敞大氣
占地:232.75平方米
鄉村二層簡歐小戶型別墅圖設計,占地90平方米左右
占地:92.12平方米
現代風格二層別墅設計圖,外觀時尚、大氣
占地:153平方米
農村實用型一層半樓房圖片效果圖,占地140平米左右
占地:140平方米
預算20萬的農村三層房屋設計圖方案,帶外觀效果圖
占地:115平方米
12x12農村三層別墅設計圖,自建房屋推薦戶型
占地:148平方米
170平方米新農村現代樓中樓三層別墅設計施工圖紙及效果圖
占地:170平方米
高端三層新中式農村別墅設計圖,仿合院布局,外觀霸氣
占地:133.64平方米
12x13米豪華三層農村別墅設計圖,宅基地上的貴族人生
占地:156平方米
經典三層小別墅設計圖紙(效果圖+全套cad建筑圖),新農村自建
占地:120平方米
240平方米新農村四合院兩層樓房施工設計圖紙帶外觀圖
占地:234平方米
210平左右三層(兩層半)雙拼新農村別墅設計圖紙及外觀效果圖
占地:206.712平方米
雙拼二層大別墅設計圖,大面寬小進深,讓兄弟永遠不分家
占地:207.15平方米
適合農村建造的二層房屋設計圖紙及效果圖,帶悶頂層,占地15
占地:150平方米
經典三層歐式造型別墅圖紙,功能房豐富,挑空客廳
占地:180平方米
三層農村小別墅設計圖,一層帶商鋪,占地110平米,經濟實用
占地:110平方米
推薦:10套新農村自建房設計圖,2026年最新設計
閱讀次數:4825737次
100套鄉村別墅圖片大全,2026年最新設計
閱讀次數:2492203次
6款農村蓋一層平房的設計圖,10萬元就能建起來
閱讀次數:1852637次
這11個一層農村自建房別墅火爆了朋友圈!我最喜歡戶型十!你呢
閱讀次數:750268次
農村6萬元建一層小別墅圖,你敢相信嗎
閱讀次數:567686次
農村5萬塊就能自建房,6套普通房子設計圖分享,你沒看錯!
閱讀次數:419410次
8套農村漂亮三間平房圖片,非常適合在農村修建!
閱讀次數:411197次
農村自建房化糞池怎么做?附方案及施工過程
閱讀次數:391783次
農村一層三間平房設計圖,告別土氣養老房,讓人忍不住點贊
閱讀次數:350581次
新農村二層樓房圖片造價12萬,挑一套回家建房吧!
閱讀次數:349126次
