
|
雙拼別墅,逐漸成為近年來建房的新寵,在外觀上它左右對稱,四平八穩,貼合我國的傳統審美,在使用屬性上,適合家中兄弟二人建造,既相互關照又相互獨立,是和諧大家庭的最優選擇之一。
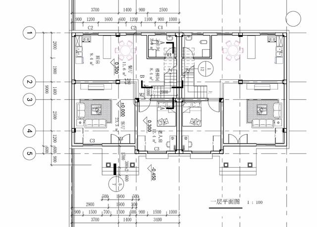
農村別墅基本信息 ? 占地尺寸:17米x11.6米 ? 占地面積:157.2平方米 ? 建筑面積:365平方米 ? 建筑結構:磚混結構
兄弟一起建房子不僅節省時間,節省造價,而且兄弟住的近,增近感情,家里有什么事也能相互照應,獨門入戶的形式,也能夠很好的保護家庭隱私避免糾紛。
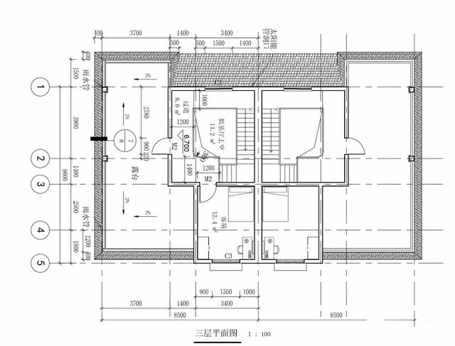
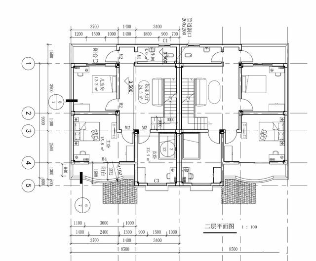
圖紙屬性開間:17米 結構形式: 磚混結構 主體造價: 32-38萬 進深: 11.6米 占地面積: 157.2平方米 建筑面積: 365平方米 圖紙內容建筑圖:建筑設計說明、工程做法、一層平面圖、二層平面圖、閣樓平面圖、屋頂平面圖、正立面圖、背立面圖、左立面圖、右立面圖、1-1剖面圖、樓梯大樣圖、門頭詳圖、節點大樣圖、門窗大樣圖、門窗表 結 構 圖:結構設計總說明、基礎平面布置圖、基礎大樣圖、一層平面配筋圖、閣樓層平面配筋圖、屋頂層平面配筋圖、一層梁平面配筋圖、閣樓層梁平面配筋圖、屋頂層梁平面配筋圖、樓梯配筋圖、節點大樣圖 給排水圖:給排水設計說明及圖例、一層給排水平面圖、二層給排水平面圖、閣樓層給排水平面圖、屋頂給排水平面圖、給排水系統圖、衛生間大樣圖 電氣圖:電氣設計說明、電氣設備材料表、等電位聯結做法、配電系統圖、弱電系統圖、配電干線系統圖、一層照明平面圖、二層照明平面圖、閣樓層照明平面圖、一層插座平面圖、二層插座平面圖、一層弱電平面圖、二層弱電平面圖、接地平面圖、屋頂防雷平面圖 設計功能一 層:老人房,客廳,廚房,餐廳 二 層:2臥室,兒童房 陽臺三 樓 層:客服,露臺 圖紙之家-專注農村別墅/自建房設計18年,集合國內200余位經驗豐富的設計師,被評為口碑最好的農村建筑設計公司! |

多臥室復式二層別墅房屋設計圖,含外觀效果圖
占地:175平方米
一層帶閣樓的自建別墅設計圖,省錢又實用
占地:166平方米
帶車庫三間復式三層樓房設計圖,外觀精致、大方
占地:150平方米
鄉村仿古一層別墅圖片及設計圖,經典實用,占地170平
占地:170平方米
復式別墅新農村二層房屋設計圖紙,屋頂錯落有致
占地:多戶型可選
15萬左右新中式二層別墅設計圖平面圖,占地110平米左右
占地:110平方米
一層中式仿古三合院設計圖,實用又大氣,百年不過時
占地:366.67平方米
14×12米二層自建房蓋別墅設計圖,簡單對稱也很漂亮
占地:157.868平方米
10×12米三層別墅戶型,挑空大客廳設計,圈粉無數的爆款方案
占地:120平方米
150平農村三層歐式別墅設計圖紙,盡顯豪華與精致,讓人羨慕不已
占地:147.62平方米
110平方米新農村三層房屋設計圖,含外觀效果圖
占地:110平方米
一層農村自建房設計圖,造型美觀大氣,占地150平
占地:153.415平方米
農村一層四開間自建別墅,美麗住宅如詩如畫里15米乘10米
占地:142平方米
125平自建房設計圖二層戶型,建房選這款準沒錯
占地:124.04平方米
大氣豪華四層別墅設計圖紙,占地180平米左右
占地:180平方米
農村20萬左右三層住房設計圖,小宅基地首選
占地:95平方米
后面帶小院的農村房屋設計圖,適合鄉村自建
占地:300平方米
經典三層農村房屋設計圖紙,占地100平米左右,外觀典雅精致,內
占地:100平方米
二層半別墅設計圖,占地150平米,帶露臺,地中海風格,內部布局
占地:150平方米
80平農村房屋設計圖,小戶型自建房三層別墅推薦
占地:80平方米
推薦:10套新農村自建房設計圖,2026年最新設計
閱讀次數:4825737次
100套鄉村別墅圖片大全,2026年最新設計
閱讀次數:2492203次
6款農村蓋一層平房的設計圖,10萬元就能建起來
閱讀次數:1852637次
這11個一層農村自建房別墅火爆了朋友圈!我最喜歡戶型十!你呢
閱讀次數:750268次
農村6萬元建一層小別墅圖,你敢相信嗎
閱讀次數:567686次
農村5萬塊就能自建房,6套普通房子設計圖分享,你沒看錯!
閱讀次數:419410次
8套農村漂亮三間平房圖片,非常適合在農村修建!
閱讀次數:411197次
農村自建房化糞池怎么做?附方案及施工過程
閱讀次數:391783次
農村一層三間平房設計圖,告別土氣養老房,讓人忍不住點贊
閱讀次數:350581次
新農村二層樓房圖片造價12萬,挑一套回家建房吧!
閱讀次數:349126次
