項目名稱:江西上饒新中式別墅
建筑面積:222㎡
基地面積:171㎡
建筑尺寸:10.9m×10.8m
占地面積:83.2㎡
戶型概況:4室2廳4衛1廚1書房1儲物間1娛樂1車庫
建筑結構:框架結構
工程造價:34萬元(不包含室內裝修費用)
項目概況
現場照片
該項目基地面積較小,周圍情況較為復雜。
建筑西、北兩側均為鄉村道路,道路較為狹窄。業主南側院墻緊貼鄰居家住宅,鄰居家住宅為12米左右的三層建筑。基地東側與鄰居家住宅相隔2米左右的過道。
總平面示意圖
建筑南側因鄰居家住宅過高,且距離業主家過近,導致場地限制對設計影響較大。
圖紙設計
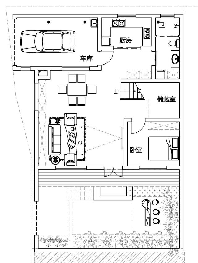
一層平面圖
因為當地風俗,東側不能開窗。因此在一層設計時,輔助空間均靠東側。對采光和通風有一定要求的臥室和客廳均布置在南側。
因為鄉村道路狹窄的限制,為保證業主家的車能順利入庫,車庫只能布置在西北角。
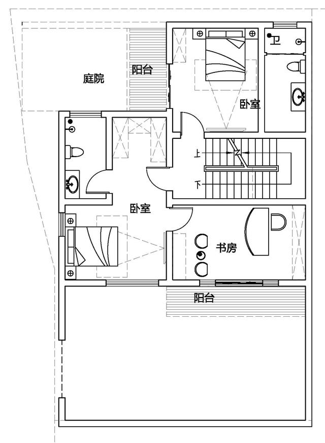
二層平面圖
南側緊鄰鄰居家的空間設計成庭院,讓南側的書房和臥室可以開窗采光。東北側臥室利用西北角的陽臺進行采光。平面的合理布局完美解決了東側無法開窗的問題。
三層平面圖
三層大面積空間作為露臺和娛樂室使用。東南側通風和采光較好的位置布置臥室。
平面設計以滿足業主使用需求為前提,盡可能地豐富了房間功能的多樣性。
造型設計
建筑整體是新中式風格。二層陽臺位置的灰瓦檐在一定程度上遮擋住了來自鄰居住宅方向的視線,讓房間的私密性得以保證。
三層露臺位置根據業主要求布置成石墻的形式。造型上與屋頂相配,做成有折線的斜墻,讓建筑在西側看來,有遞進的層次感。
三層樓梯間上方位置增加了天窗,解決了室內的采光問題。考慮到項目位于南方,屋頂設計成有較好排水能力的坡屋頂。
西北側效果圖
西南側效果圖
將車庫空間進行一定的綠化,使的這個位置不僅能作為停車使用,還能作為庭院為整體建筑提供一定的景觀。
庭院效果圖
庭院通過拱門分為兩個部分。院墻上的一些水墨畫與竹墻、綠地賦予庭院含蓄的中式美。
庭院效果圖
陽臺效果圖
二層陽臺選擇玻璃欄桿,能更好地將室外陽光讓到室內。玻璃欄桿的現代風格與灰瓦的傳統中式風格在狹小的空間內激烈碰撞。這樣的設計讓建筑整體更為豐滿。
露臺效果圖
北立面圖
南立面圖
西立面圖







































