
|
農村別墅和自建房的區別就在于“設計”二字,今天農村小別墅就以下面這套別墅為例,此套自建房戶型宅基地面積為10米X12米,總建筑面積為350平方米。5房間,5衛生間,2車位,適合幾代同堂大家庭。戶型設計非常合理,可以稱為最贊自建房戶型第一名。 農村別墅基本信息 ? 占地尺寸:10米*12米 ? 占地面積:120平方 ? 建筑面積:350平方米 ? 建筑結構:磚混結構 ?主體造價:26-30萬
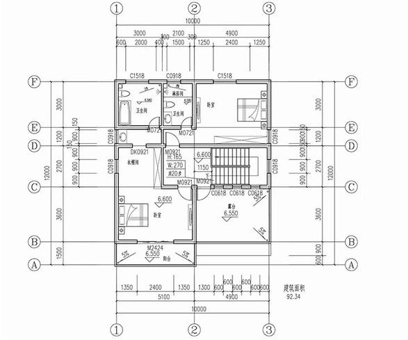
設計功能: 一層設雙車庫、客廳、餐廳、半開放式廚房、衛生間、洗衣間、客臥,客臥獨立開門,避免客人居住尷尬。(此戶型入口有三個,第一個是主入戶門,進門是客廳;第二個入戶門在車庫,進門是餐廳,方便停車的人進出室內外;第三個入戶門在廚房,方便油煙排放,也貫穿南北。此外一層還有臥室、衛生間和洗衣房。
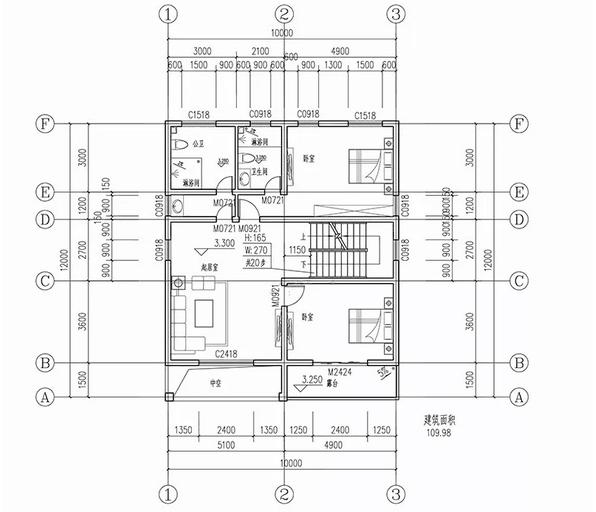
二層:二樓主臥自帶衣帽間,洗手間,以及陽臺。其余為一間臥室,一個客廳。(二層兩個臥室、一個起居室,兩臥室都有可以擺放盆栽、觀賞自然美景的陽臺。西側的為主臥,有獨立的休閑區域、衣帽間和衛生間、洗浴室,獨立性強,私密性好。
二層:二樓主臥自帶衣帽間,洗手間,以及陽臺。其余為一間臥室,一個客廳。(二層兩個臥室、一個起居室,兩臥室都有可以擺放盆栽、觀賞自然美景的陽臺。西側的為主臥,有獨立的休閑區域、衣帽間和衛生間、洗浴室,獨立性強,私密性好。
圖紙屬性開間: 10米 結構形式: 砌體 主體造價: 26-30萬 進深:12米 占地面積: 120平方米 建筑面積: 350平方米 圖紙內容建筑圖:建筑設計封面、圖紙目錄、建筑設計說明、一層平面圖、門窗表、二層平面圖、三層平面圖、屋頂平面圖、1-3軸立面圖、3-1軸立面圖、A-F軸立面圖、F-A軸立面圖 結構圖:結構設計總說明(一)、結構設計總說明(二)、結構設計總說明(三)、結構設計總說明(四)、基礎平面圖、柱平面布置圖、一層梁施工圖、二層梁施工圖、三層梁配筋圖、屋頂梁施工圖、一層板施工圖、二層板施工圖、三層板配筋圖、屋頂板施工圖、樓梯詳圖給排水圖:給排水設計說明及圖例、一層給排水平面圖、二層給排水平面圖、三層給排水平面圖、屋頂給排水平面圖、衛生間大樣圖、給排水系統圖 電 氣 圖:電氣設計說明、電氣設備材料表、等電位聯結做法、配電系統圖、弱電系統圖、配電干線系統圖、一層照明平面圖、二層照明平面圖、三層照明平面圖、一層插座平面圖、二層插座平面圖、三層插座平面圖、一層弱電平面圖、二層弱電平面圖、三層弱電平面圖、接地平面圖、屋頂防雷平面圖 設計功能一 層:客廳、休閑亭、儲藏間、廚房、衛生間、淋浴間、衛生間、傭人房、餐廳 二 層:起居室、臥室、臥室(含衛生間)、衛生間; 三 層:臥室(含衛生間、衣帽間、陽臺)、臥室(含衛生間)、露臺。 圖紙之家-專注農村別墅/自建房設計18年,集合國內200余位經驗豐富的設計師,被評為口碑最好的農村建筑設計公司! |

最實用一層小別墅設計方案,造價不高顏值高,家家都喜歡!
占地:143.48平方米
二層新中式別墅設計施工圖,廚房在配房,占地140平米
占地:141平方米
私人二層中式四合院別墅建筑設計圖,新農村經濟實用戶型
占地:145平方米
帶車庫二層別墅設計圖及效果圖,帶車庫的農村二層樓房推薦
占地:123平方米
時尚大方的農村二層自建房屋設計圖紙,占地120平米左右
占地:120平米
經典農村二層小別墅設計圖紙帶露臺(含外觀效果圖)
占地:110平方米
農村25萬元二層小樓圖,經典大氣建成20年不過時
占地:150平方米
一層中式三合院農村自建別墅圖,面寬18米帶堂屋設計
占地:165.72平方米
面寬13米帶堂屋三層農村別墅圖,新中式大氣風格
占地:151.58平方米
二層農村自建小別墅設計圖,歐式風格,占地160平方米
占地:160平方米
新農村兄弟合建三層雙拼房屋設計方案圖,開間18米有全套圖紙
占地:237.21平方米
三間二層最好看別墅設計圖,簡單實用美到爆炸,農村建房新潮流
占地:121.51平方米
蓋別墅圖紙新農村簡歐二層房屋設計圖,12米×12米左右
占地:128平方米左右
極簡大氣二層別墅設計圖,15米面寬,簡約大氣,年輕人的最愛!
占地:150平方米
帶地下室獨棟三層高端別墅房圖紙設計圖,復式客廳旋轉樓梯
占地:146.145平方米
新農村自建二層小樓圖,時尚大方,外型精美,室內布局也很贊
占地:137平方米
二層氣質現代小洋樓設計圖,堪比城市別墅,全村最美沒商量
占地:121.07
小面寬的農村簡單四層2建平屋頂別墅設計圖,農村自建房首選
占地:109.29平方米
160平方米經典鄉村二層房屋設計圖紙
占地:160平方米
農村120平方房子設計圖,三層房屋設計圖精選
占地:120平方米
推薦:10套新農村自建房設計圖,2026年最新設計
閱讀次數:4825737次
100套鄉村別墅圖片大全,2026年最新設計
閱讀次數:2492203次
6款農村蓋一層平房的設計圖,10萬元就能建起來
閱讀次數:1852637次
這11個一層農村自建房別墅火爆了朋友圈!我最喜歡戶型十!你呢
閱讀次數:750268次
農村6萬元建一層小別墅圖,你敢相信嗎
閱讀次數:567686次
農村5萬塊就能自建房,6套普通房子設計圖分享,你沒看錯!
閱讀次數:419410次
8套農村漂亮三間平房圖片,非常適合在農村修建!
閱讀次數:411197次
農村自建房化糞池怎么做?附方案及施工過程
閱讀次數:391783次
農村一層三間平房設計圖,告別土氣養老房,讓人忍不住點贊
閱讀次數:350581次
新農村二層樓房圖片造價12萬,挑一套回家建房吧!
閱讀次數:349126次
