
|
隨著生活水平的發展,農村百姓們的生活質量和審美觀念比以前有了很大的提高。現在農村建房不像以前,依葫蘆畫瓢或者整齊劃一沒有造型,而是家家戶戶都是建小別墅。但是老百姓們的積蓄來之不易,給大家推薦8套不超過40萬的戶型。 第一套:占地10m×11.6m 參考造價:25-30萬 兩層簡歐式別墅,中規中矩,造價實惠。
一層平面圖:
二層平面圖:
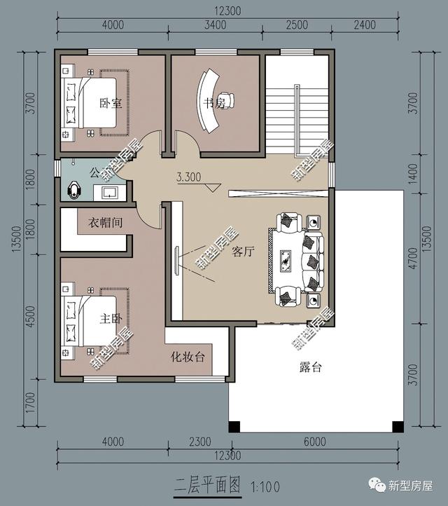
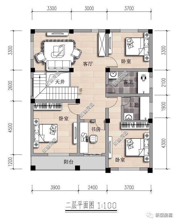
第2套:占地12m×10.6m 參考造價:主體40萬 三層歐式帶露臺及挑空客廳落地窗,非常流行的造型。
一層平面圖:
二層平面圖:
三層平面圖:
第3套:占地12.6m×11m 參考造價:主體30萬 二層歐式小別墅,與眾不同的是中間的尖屋頂給人鋒利的造型和神秘的外裝色彩。
一層平面圖:
二層平面圖:
第4套:占地9.6m×11.4m 參考造價:主體25萬 二層經典歐式小別墅,二層帶露臺。如果不知道選什么造型建它準沒錯。
一層平面圖:
二層平面圖:
第5套:占地15m×20m 參考造價:主體40萬
一層平面:
二層平面:
第6套:占地12.8m×12.5m 參考造價:主體30萬 兩層中式樓房,大露臺保證了活動空間。
一層平面圖:
二層平面圖:
第7套:占地10.2m×13.1m 參考造價:主體25-30萬 兩層精致小別墅,打造屬于自己的精致生活。
一層平面圖:
二層平面圖:
第8套:占地12.3m×13.5m 參考造價:主體25-30萬 兩層東南亞風格小別墅,車庫和大露臺的設計不僅沒有破壞了造型,更增加了美觀。
一層平面圖:
二層平面圖: ![]() 圖紙之家-專注農村別墅/自建房設計18年,集合國內200余位經驗豐富的設計師,被評為口碑最好的農村建筑設計公司! |

經典四合院別墅設計圖,復式挑空客廳讓四合院更高端
占地:175平方米左右
帶庭院的農村一層別墅圖紙設計,外觀時尚好看
占地:多戶型可選
12.8乘10米一層平房別墅設計圖,四室二廳南北通透
占地:128.85平方米
兩戶190平方米新農村雙拼別墅全套設計方案及效果圖
占地:191平方米
地中海風格二層別墅房屋設計圖,帶外觀效果圖
占地:150平方米
簡單時尚二層住宅設計圖紙,簡單的設計,不平凡的視覺感受
占地:110平方米
農村一層平房別墅設計圖紙,130平米左右,主體十幾萬
占地:130平方米左右
160平方米二層小別墅設計圖紙及效果圖大全,12X13米
占地:162平方米
農村平屋頂中式合院設計圖,帶車庫帶庭院
占地:210平方米
140平方米新農村三層房屋設計圖,磚混結構帶地下室
占地:138平方米左右
建房老師傅力薦!這塊二層簡歐設計圖,花錢少、顏值高,必火
占地:131.65平方米
豪華二層別墅設計圖紙及效果圖,帶車庫,歐式別墅方案
占地:170平方米
徽派3層農村小別墅設計圖,廣東新農村住宅設計圖集
占地:110平方米
農村自建二層樓房設計圖及效果圖,二層房屋圖推薦
占地:105平方米
開間13米左右新農村2層自建房別墅戶型設計圖,簡潔實用
占地:170平方米
實用農村10萬一層小別墅戶型圖及圖紙,全套施工圖
占地:多種面積
兄弟雙拼四間三層別墅設計圖,農村自建推薦戶型方案
占地:260平方米
農村10萬元一層小別墅平房設計圖大全,含效果圖
占地:120平方米
村里三層新中式風自建別墅圖,對稱設計,氣派好看
占地:135.3平方米
五開間一層農村平房設計圖,200平米大戶型,五間臥房足夠用了
占地:200.7平方米
推薦:10套新農村自建房設計圖,2026年最新設計
閱讀次數:4825737次
100套鄉村別墅圖片大全,2026年最新設計
閱讀次數:2492203次
6款農村蓋一層平房的設計圖,10萬元就能建起來
閱讀次數:1852637次
這11個一層農村自建房別墅火爆了朋友圈!我最喜歡戶型十!你呢
閱讀次數:750268次
農村6萬元建一層小別墅圖,你敢相信嗎
閱讀次數:567686次
農村5萬塊就能自建房,6套普通房子設計圖分享,你沒看錯!
閱讀次數:419410次
8套農村漂亮三間平房圖片,非常適合在農村修建!
閱讀次數:411197次
農村自建房化糞池怎么做?附方案及施工過程
閱讀次數:391783次
農村一層三間平房設計圖,告別土氣養老房,讓人忍不住點贊
閱讀次數:350581次
新農村二層樓房圖片造價12萬,挑一套回家建房吧!
閱讀次數:349126次
