
|
農村人大都熱情好客,對他們來說,建房一定要有接待客人的地方,甚至逢年過節的還要留客人住幾天,所以家里的房間一定要多。這種情況下,一層的平房就不太實用,三層房間太多又太浪費,二層別墅就是最合適的選擇了。今天給大家介紹5套大戶型二層別墅,占地140平方米,造價只要20萬左右,經濟又實用,非常受大家的歡迎! 第一套
正面效果圖
鳥瞰效果圖
背面效果圖 占地面積:14.0m*10.0m,140平方米左右; 建筑層高:二層; 建筑高度:9.48米(含屋頂); 設計功能: 一層別墅戶型:門廳、客廳、廚房、餐廳、衛生間、臥室x2、儲藏間; 二層別墅戶型:起居室、臥室x2、書房、衛生間、大露臺;
一層平面圖
二層平面圖 第二套
正面效果圖
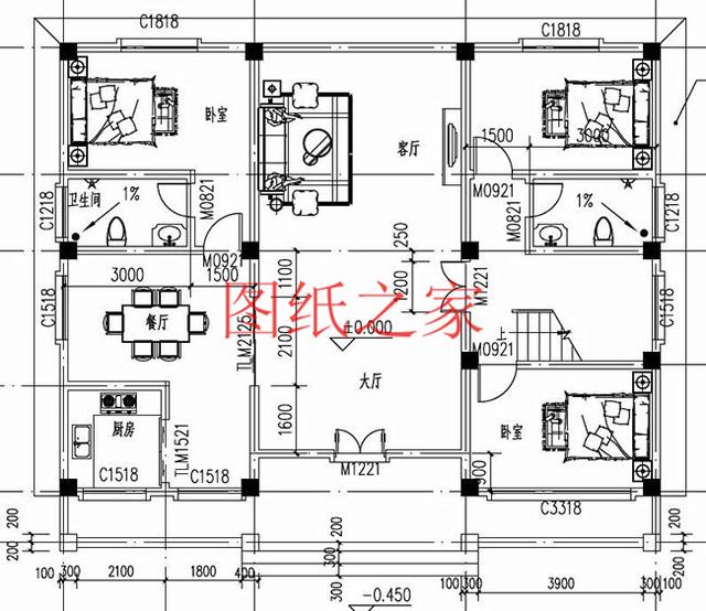
背面效果圖 占地面積:12.8m*11.1m,142平方米左右; 建筑層高:二層; 建筑高度:8.70米(含屋頂); 設計功能: 一層別墅戶型:客廳、餐廳、廚房、儲藏間、主臥(帶衛生間)、臥室、衛生間; 二層別墅戶型:起居室、臥室x4、衛生間x3、小露臺;
一層平面圖
二層平面圖 第三套
正面效果圖
鳥瞰效果圖 占地面積:13.4m*11.0m,145平方米左右; 建筑層高:二層; 建筑高度:9.34米(含屋頂); 設計功能: 一層別墅戶型:玄關、客廳、餐廳、廚房、臥室x2、衛生間、洗衣間(可改主衛); 二層別墅戶型:客廳、主臥(帶書房、衛生間、陽臺)、臥室x2、衛生間、大露臺;
一層平面圖
二層平面圖 第四套
別墅效果圖 占地面積:12.0m*12.0m,144平方米左右; 建筑層高:二層; 建筑高度:8.2米(含屋頂); 設計功能: 一層別墅戶型:客廳、廚房、餐廳、臥室x2、衛生間、書房; 二層別墅戶型:客廳上空、主臥(帶衛生間、書房)、臥室(帶衛生間)、臥室、露臺x2;
一層平面圖
二層平面圖 第五套
別墅效果圖 占地面積:14.0m*11.7m,一層建筑面積146平方米左右; 建筑層高:二層(帶悶頂層); 建筑高度:8.57米(含屋頂); 設計功能: 一層別墅戶型:大廳、客廳、廚房、餐廳、主臥(帶衛生間)、臥室x2、衛生間; 二層別墅戶型:大廳、起居室、主臥(帶衛生間)、臥室x3、衛生間; 悶頂層:功能自定義;
一層平面圖
二層平面圖
悶頂平面圖
圖紙之家-專注農村別墅/自建房設計18年,集合國內200余位經驗豐富的設計師,被評為口碑最好的農村建筑設計公司! |

最新農村三層樓房設計圖紙,客廳中空,采用暖黃色為主色
占地:160平方米
農村三室二廳一層小平房設計圖,簡單實用型
占地:113.4平方米
不帶廚房餐廳的二層別墅設計圖,農村建房很多人都這樣做
占地:124平方米左右
新中式農村三層四合院別墅設計圖,四合院風格的別墅圖
占地:177平方米
私人二層農村小樓設計圖,外觀靚麗,富有現代氣息
占地:160平方米
現代三層農村民房設計圖及圖片,外觀高端、大氣
占地:196平方米
120平農村三層自建房屋設計圖,旋轉樓梯復式別墅戶型方案
占地:119.23平方米
2026新款農村15萬元二層小樓圖,占地90平米左右
占地:多種戶型
農村60萬別墅款式設計圖及外觀效果圖,客廳中空
占地:150平方米
帶堂屋設計一層5間平房新農村自建別墅效果圖全套施工圖
占地:198.41平方米
17X12米三層雙拼別墅自建房設計圖,歐式風格,戶型方正
占地:190平方米
農村二層半兄弟共建房別墅設計圖,復式戶型帶車庫,面寬24米
占地:312平方米左右
100平方米新農村住宅二層小別墅設計CAD圖紙及效果圖,10x10米
占地:96平方米
農村五開間大平層設計圖,主體15萬就能建。
占地:182.43平方米
高端大氣三層半別墅客廳挑空設計,豪華農村自建房圖
占地:179.52平方米
二層農村小別墅設計圖,造價經濟實惠,參考價30萬以內
占地:140平方米
80-90平米二層經典小別墅房屋設計圖,左右對稱外觀
占地:88.46平方米
農村實用三層樓房外觀圖片+全套施工設計圖
占地:106平方米
造價40萬三層大氣自建房設計圖紙,鄉村別墅建造圖
占地:159.609平方
農村二層帶車庫四合院別墅設計圖,新中式外觀圖片,戶型實用方
占地:247平方米
推薦:10套新農村自建房設計圖,2026年最新設計
閱讀次數:4825737次
100套鄉村別墅圖片大全,2026年最新設計
閱讀次數:2492203次
6款農村蓋一層平房的設計圖,10萬元就能建起來
閱讀次數:1852637次
這11個一層農村自建房別墅火爆了朋友圈!我最喜歡戶型十!你呢
閱讀次數:750268次
農村6萬元建一層小別墅圖,你敢相信嗎
閱讀次數:567686次
農村5萬塊就能自建房,6套普通房子設計圖分享,你沒看錯!
閱讀次數:419410次
8套農村漂亮三間平房圖片,非常適合在農村修建!
閱讀次數:411197次
農村自建房化糞池怎么做?附方案及施工過程
閱讀次數:391783次
農村一層三間平房設計圖,告別土氣養老房,讓人忍不住點贊
閱讀次數:350581次
新農村二層樓房圖片造價12萬,挑一套回家建房吧!
閱讀次數:349126次
