
|
在農村建房子,那些老舊的戶型已經不再滿足現代人的需求了,老百姓們蓋的房子越來越洋氣漂亮,以前是么舒適方便怎么建,現在生活水平提升了,除了要滿足日常生活需求之外,外觀也要跟上時代,至少保證二三十年不過時。 今天小編給大家分享3套10×10米農村三層自建房設計圖,每一款都是經典戶型,為什么選擇建造戶型1最多?下面咱們一起來看看這3套圖紙詳情介紹。 【戶型1】 圖紙詳情 層數: 二層 結構形式: 磚混結構 主體造價: 17萬 開間: 10米 進深: 10米 占地面積: 100平方米 建筑面積: 174.44平方米
戶型1 戶型1一層室內采用錯層設計,空間存在一定高差,層次分明,客廳挑空設計,現代時尚。外觀結構設計漂亮大氣,有多扇超大落地窗,二樓露臺高低錯落,屋頂坡面設計,配色簡單大氣。 建成效果圖
建成效果圖 這是本套圖紙的建成效果圖展示,嶄新華麗的造型讓人覺得有些不真實,業主采用黃色為主色,黃色的文化石,黃色的墻漆,打造一個金燦燦的房子,給人一種豪氣的感覺。 設計功能
一層平面圖 一 層: 客廳(挑空)、廚房、餐廳、臥室×2、公衛
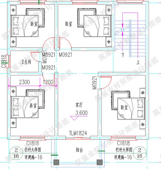
二層平面圖 二 層: 過道(帶陽臺)、臥室×2、小臥室(帶陽臺)、公衛
夾層平面圖 夾 層: 露臺花園衛 【戶型2】 戶型基本信息 層數: 二層 結構形式: 磚混結構 主體造價: 15-20萬 開間: 10米 進深: 10米 占地面積: 96平方米 總建筑面積: 175平方米
戶型2 戶型2外墻配色給人溫暖的感覺,黃色、橙色為主色,鮮艷明朗,屋頂有觀景涼亭,可作為日常休閑空間,打牌下棋都是享受。有拱形門廊、超大落地窗,設有車庫、屋頂花園,戶型實用美觀!
功能設計及室內平面圖展示
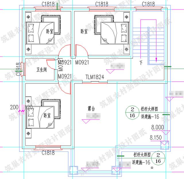
一 層: 廚房、餐廳、客廳、公共衛生間、主臥室、次臥室
二 層: 過道帶露臺、公共衛生間、主臥室、次臥室、小臥室(帶陽臺)
錯層: 露臺花園 【戶型3】 圖紙詳情 層數: 三層 結構形式: 磚混結構 開間: 10.2米 進深: 9.9米(含門柱11.7米) 占地面積: 105.86平方米 總建筑面積:289.48平方米 主體造價: 28萬
戶型3 戶型3整體設計規整大氣,外墻采用淺黃色真石漆裝飾,墻面轉角結合處使用灰色點綴,有L型大露臺,陽臺,門廊高聳大氣,室內臥室較多,共設有9間臥室,適合大家庭建造。
設計功能
一層平面圖 一層: 門廳、客廳、廚房、餐廳、臥室×2、衛生間
二層平面圖 二 層: 客廳、陽臺、臥室×4、衛生間
三層平面圖 三層: 露臺、臥室×3、衛生間 圖紙之家-專注農村別墅/自建房設計18年,集合國內200余位經驗豐富的設計師,被評為口碑最好的農村建筑設計公司! |

經典三層雙拼房屋設計圖,帶效果圖,戶型好,單戶面積120
占地:240平方米
農村最好看兩層小樓圖及全套CAD施工圖紙,新中式風格,簡潔大氣
占地:150平方米
農村四層雙拼別墅房屋設計圖,造型現代、大氣
占地:220平方米
帶架空層的兩層別墅設計圖,通透又明亮,建在農村絕對有面子
占地:106.79平方米
帶架空層的三層農村別墅設計火了!雨季不怕返潮
占地:147.15平方米
簡單時尚二層住宅設計圖紙,簡單的設計,不平凡的視覺感受
占地:110平方米
農村27萬二層自建別墅設計圖,占地140平米左右,戶型極好
占地:140平方米
歐式小別墅設計圖紙帶效果圖,二層歐式小別墅設計方案展示
占地:166平方米
別致漂亮二層別墅設計圖紙,占地160平米左右,精致的外觀,讓人
占地:160平方米
實用型農村120平米二層樓房設計圖,小巧美觀實用
占地:120平方米
氣派的帶旋轉樓梯三層別墅房屋設計圖,戶型很好
占地:150平方米
二層復式農村別墅設計圖,進深12米,戶型堪稱完美
占地:193.2平方米
一層中式七字型房屋設計圖,帶院子經典設計,耐看不過時
占地:163.18平方米
200平米二層自建房別墅設計圖,外觀漂亮布局實用
占地:207.09平方米
雙拼豪華高端三層別墅設計圖,外觀效果圖大氣
占地:300平方米
大氣新中式三層雙拼別墅設計圖及外觀,總面寬20米多
占地:205.76平方米
一層農房別墅設計圖紙,140平方米,面寬15米
占地:140平方米
170平方米雙拼別墅戶型建筑設計圖紙及外觀效果圖,復式單戶85平
占地:170平方米
農村15萬元一層半小樓圖,最新的戶型設計
占地:182.31平方米
農村四間房屋設計圖經典戶型,這樣設計美觀、實用
占地:169平方米
推薦:10套新農村自建房設計圖,2026年最新設計
閱讀次數:4825737次
100套鄉村別墅圖片大全,2026年最新設計
閱讀次數:2492203次
6款農村蓋一層平房的設計圖,10萬元就能建起來
閱讀次數:1852637次
這11個一層農村自建房別墅火爆了朋友圈!我最喜歡戶型十!你呢
閱讀次數:750268次
農村6萬元建一層小別墅圖,你敢相信嗎
閱讀次數:567686次
農村5萬塊就能自建房,6套普通房子設計圖分享,你沒看錯!
閱讀次數:419410次
8套農村漂亮三間平房圖片,非常適合在農村修建!
閱讀次數:411197次
農村自建房化糞池怎么做?附方案及施工過程
閱讀次數:391783次
農村一層三間平房設計圖,告別土氣養老房,讓人忍不住點贊
閱讀次數:350581次
新農村二層樓房圖片造價12萬,挑一套回家建房吧!
閱讀次數:349126次
