
|
帶走廊的戶型優雅別致,給人一種洋氣的時尚感,這是現在很多農村建房特別喜歡的一種設計,下面給大家分享3套預算30萬帶走廊農村房屋設計圖,每一款都有自己獨特的風格,一起來看圖紙詳情介紹! 【戶型1】 層數:二層 結構形式:磚混結構 主體造價: 23萬 開間:13.2米 進深:10.5米 占地面積:143平方米 總建筑面積:265平方米
戶型1 戶型1設有長廊,二樓還有大露臺及陽臺,室內設有農村比較流行的堂屋,方便擺放神位,與農村建房實際契合。外觀清新別致,南北采光。 功能設計
一層平面圖 一 層:堂屋、客廳(帶餐廳)、廚房、臥室×2、衛生間
二層平面圖 二 層:小廳(帶陽臺)、臥室×3、儲物間、衛生間、露臺 【戶型2】 戶型簡介 層數: 三層 結構形式: 磚混結構 主體造價: 30萬 開間: 12.24米 進深: 12.22米 占地面積: 120平方米 建筑面積: 328平方米
戶型2 戶型2設計相對復雜一些,輕奢時尚,左側的八面體結構獨特美觀,屋頂的觀景涼亭休閑時尚,,一層有門廊圍繞,優雅別致。外觀色彩搭配清新淡雅,戶型采用多窗戶設計,室內采光通風。 功能設計及平面圖展示:
一層平面圖
一 層: 堂屋、客廳、老人房(附衛生間)、客房、廚房餐廳、公衛
二層平面圖
二 層: 客廳、主臥(附書房、衛生間)、2臥室、公衛
三層平面圖
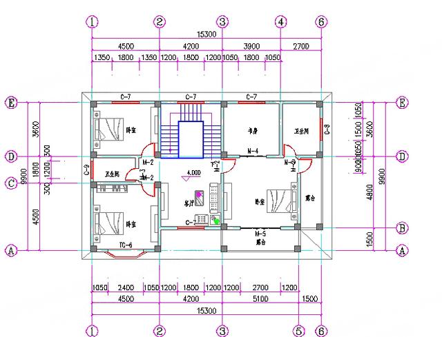
三 層: 主臥(附書房、衛浴室)、娛樂室、露臺 【戶型3】 圖紙詳情 層數: 二層結構形式: 框架結構主體造價: 25萬 開間: 15.3米進深: 9.9米占地面積: 133.15平方米建筑面積: 266.3平方米
戶型3 戶型3設計時尚大方,一樓采用階梯式入戶,設有回廊,讓戶主擁有休閑活動場地,二樓有兩個小露臺設計,是與大自然親近的好地方,還能晾曬東西。 設計功能
一層平面圖 一 層:2臥室(附衛生間)、客廳、廚房、餐廳、門廳
二層平面圖 二 層:主臥(附露臺、衛生間)、2臥室(附衛生間)、客廳、書房 圖紙之家-專注農村別墅/自建房設計18年,集合國內200余位經驗豐富的設計師,被評為口碑最好的農村建筑設計公司! |

155平方米自建二層CAD房屋設計圖紙及效果圖,13X12米
占地:156平方米
人氣頗高的三層新中式別墅方案,五種戶型,五種尺寸
占地:120-165平方米
新中式一層別墅設計圖紙,農村自建平房戶型方案圖
占地:183.7平方
豪華二層別墅設計圖紙及效果圖,帶車庫,歐式別墅方案
占地:170平方米
農村最好看兩層小樓圖及全套CAD施工圖紙,新中式風格,簡潔大氣
占地:150平方米
造價25萬農村二層小別墅設計圖,外觀效果圖美觀、精致
占地:165平方米
2026最新款獨棟中西雙餐廳三層別墅設計圖,精巧實用好看不貴
占地:226.12平方米
農村2開間三層經濟別墅設計圖,9.6米面寬,實用布局
占地:127.68平方米
農村二層住宅設計圖,大窗戶客廳,一起享受大面積采光的溫暖
占地:220平方米
135平復式別墅房屋設計圖,外觀時尚、漂亮
占地:135平方米
高端四間五間兩層別墅設計圖紙,開間20米自建房效果圖
占地:265平方米
簡歐風格二層別墅設計圖,經典不過時大氣時尚,漂亮的不像話!
占地:205.68平方米
150平農村二層復式別墅房屋設計方案圖,帶外觀效果圖片
占地:150平方米
新農村中式二層樓房設計圖紙及效果圖,125,150,170三個戶型可行
占地:多種戶型
帶車庫農村二層雙拼別墅設計圖,外觀現代
占地:235平方米
8.5×12米四層歐式房屋設計圖紙,占地100平,落地窗中嵌入了雕花
占地:100平方米
105平方米新農村三層別墅設計圖,全套CAD建筑圖+效果圖
占地:105平方米
農村七字型一層別墅圖,獨立廚房設計,鄉村建房優選戶型
占地:159.76平方米
農村三層樓房設計圖紙及效果圖,經典自建圖紙
占地:201平方米
2026年最新款四間二層別墅設計圖,15米乘13米
占地:171.01平方米
推薦:10套新農村自建房設計圖,2026年最新設計
閱讀次數:4825737次
100套鄉村別墅圖片大全,2026年最新設計
閱讀次數:2492203次
6款農村蓋一層平房的設計圖,10萬元就能建起來
閱讀次數:1852637次
這11個一層農村自建房別墅火爆了朋友圈!我最喜歡戶型十!你呢
閱讀次數:750268次
農村6萬元建一層小別墅圖,你敢相信嗎
閱讀次數:567686次
農村5萬塊就能自建房,6套普通房子設計圖分享,你沒看錯!
閱讀次數:419410次
8套農村漂亮三間平房圖片,非常適合在農村修建!
閱讀次數:411197次
農村自建房化糞池怎么做?附方案及施工過程
閱讀次數:391783次
農村一層三間平房設計圖,告別土氣養老房,讓人忍不住點贊
閱讀次數:350581次
新農村二層樓房圖片造價12萬,挑一套回家建房吧!
閱讀次數:349126次
