
|
農村人向往著城里的生活,是農村人的愿望,有句老話說人往高處走水往低處流,這是不變的真理,現在讓炒房的炒的農村人和市里人幾乎都面臨著同樣的問題,就是買不起,就是交了首付,生活壓力就會很大,比如吃穿必須節省,老人也要跟著省吃儉用,幾乎是全家當房奴,買了房子不敢生二胎,負擔不起啊!拿著首付的錢在農村老家蓋棟別墅也是不錯的,下面這套四層別墅大氣美觀,帶有大露臺,方便實用。 戶型基本信息 開間:11.6米,進深15.7米,一層占地面積:165平方米,總建筑面積:556.98平方米,建筑總高度:16.036米。結構形式:框架結構。
本戶型是沉穩大氣型的,面積大,西面及南面都有落地窗,采光通透,多陽臺及大露臺的設計,滿足了多人休閑娛樂,適合大家庭的住戶。 平面圖展示:
一層平面圖 一層: 客廳、臥室(附帶衛生間)、棋牌室、廚房、餐廳、衛生間、車庫
二層平面圖 二層: 客廳上空(挑空)、起居室、臥室(附帶衛生間,陽臺)、2臥室、書房(附陽臺)、衛生間
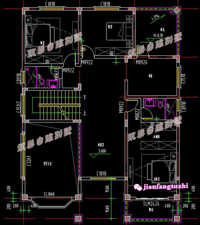
三層平面圖 三層: 影音室(附帶陽臺)、前臥室(附帶衛生間)、2次臥室、書房(附帶陽臺)、衛生間
四層平面圖 四層: 左后側臥室(附帶衛生間)、臥室、娛樂間(附帶露臺)、公共衛生間、露臺。 圖紙之家-專注農村別墅/自建房設計18年,集合國內200余位經驗豐富的設計師,被評為口碑最好的農村建筑設計公司! |

農村四層樓房設計圖,復式結構、客廳中空,外觀效果圖+全套圖
占地:130平方米
漂亮實用三層自建別墅設計圖紙,超高的性價比
占地:160平方米
豪華高端三層帶地下室別墅設計圖,可帶電梯
占地:210平方米
三層兄弟雙拼別墅設計圖,外觀大氣漂亮,顏色搭配協調,一層為
占地:270平方米
新農村三層房屋cad建筑設計圖紙,磚混結構
占地:138平方米
田園風格別墅設計圖及外觀圖片,樓中樓結構
占地:140平方米
二層復式農村豪宅別墅設計圖,挑空客廳旋轉樓梯高級感十足
占地:215.43平方米
農村最漂亮平頂三層別墅設計圖,10.5乘11.5米
占地:119.35平方米
80-90平米二層經典小別墅房屋設計圖,左右對稱外觀
占地:88.46平方米
經典小戶型新農村房屋住宅設計圖,10萬左右
占地:80平方米
經濟、不張揚!簡單二層別墅設計圖,農村建房直接抄作業
占地:198.58平方米
180平方米新農村雙拼戶型別墅房屋設計圖紙帶外觀圖17X11米
占地:180平方米
新農村二層小別墅全套設計圖紙(含外觀效果圖)
占地:85.6平方米
105平方米新農村三層別墅設計圖,全套CAD建筑圖+效果圖
占地:105平方米
二層農村兄弟雙拼別墅設計圖,一墻之隔互不干擾,鄰居看了都喜
占地:164.24平方米
高端三層豪宅別墅設計方案圖,帶地下室,過悠然愜意生活
占地:127.06平方米
170平方米歐式三層雙拼別墅建筑設計圖紙及效果圖片
占地:172平方米
戶型簡單實用的三層農村房屋設計圖紙,復式結構,大面積開窗,
占地:170平方米
農村帶車庫兩層歐式農村別墅設計圖紙,占地220平方米左右
占地:221平方米
農村10萬元一層小別墅平房設計圖大全,含效果圖
占地:120平方米
推薦:10套新農村自建房設計圖,2026年最新設計
閱讀次數:4825737次
100套鄉村別墅圖片大全,2026年最新設計
閱讀次數:2492203次
6款農村蓋一層平房的設計圖,10萬元就能建起來
閱讀次數:1852637次
這11個一層農村自建房別墅火爆了朋友圈!我最喜歡戶型十!你呢
閱讀次數:750268次
農村6萬元建一層小別墅圖,你敢相信嗎
閱讀次數:567686次
農村5萬塊就能自建房,6套普通房子設計圖分享,你沒看錯!
閱讀次數:419410次
8套農村漂亮三間平房圖片,非常適合在農村修建!
閱讀次數:411197次
農村自建房化糞池怎么做?附方案及施工過程
閱讀次數:391783次
農村一層三間平房設計圖,告別土氣養老房,讓人忍不住點贊
閱讀次數:350581次
新農村二層樓房圖片造價12萬,挑一套回家建房吧!
閱讀次數:349126次
