
|
自建房選擇平屋頂還是坡屋頂?這就需要看自家的需求了,有的家庭需要屋頂露臺來晾曬、賞金、做屋頂花園,因此會選擇平屋頂的戶型,有的家庭則不需要,這時候就會選擇坡屋頂了,下面給大家分享2款25萬以內130平米二層自建房,平屋頂PK坡屋頂,哪個更漂亮? 【戶型1】 圖紙詳情 戶型1開間進深12×10米,首層占地面積129平方米,總建筑面積253.16平方米,采用磚混結構,主體造價大概25萬。
戶型1 這套戶型采用平屋頂設計,外觀使用灰白色搭配,簡單大氣,一樓設有走廊,二樓有陽臺和露臺,帶給住戶充足的活動空間,看多了歐式風格的奢華,這種簡單穩重的中式風格更讓人回味無窮,這種設計風格不論年輕人和老人都會喜歡。 設計功能:
一層平面圖 一層:堂屋、客廳、餐廳、廚房、臥室(帶內衛)、臥室、雜物房、衛生間。
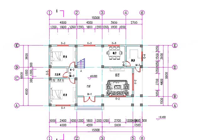
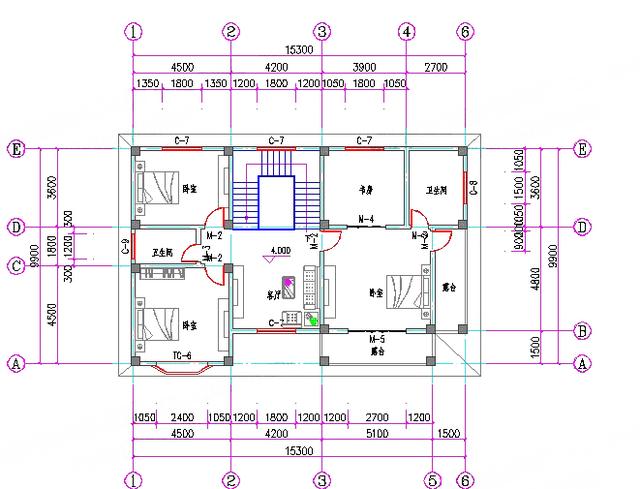
二層平面圖 二層:客廳、臥室(帶內衛)、臥室x3、陽臺、衛生間。 【戶型2】 圖紙詳情 層數: 二層結構形式: 框架結構主體造價: 25萬 開間: 15.3米進深: 9.9米占地面積: 133.15平方米建筑面積: 266.3平方米
效果圖 戶型2在設計上與戶型1差別比較大,采用坡屋頂設計,屋頂的線條優美漂亮,外墻采用暗紅色和淺黃色搭配,邊線使用比較明亮的白色,有L型回廊設計,二樓也有小露臺,主臥室豪華套房,帶有書房、衛生間以及雙露臺,讓主人盡享舒適生活。 設計功能
一層平面圖 一 層:2臥室(附衛生間)、客廳、廚房、餐廳、門廳
二層平面圖 二 層:主臥(附露臺、衛生間)、2臥室(附衛生間)、客廳、書房 圖紙之家-專注農村別墅/自建房設計18年,集合國內200余位經驗豐富的設計師,被評為口碑最好的農村建筑設計公司! |

鄉村房屋改建三層房屋設計圖紙,農村樓房設計圖推薦
占地:90平方米
二層門面房自建小樓設計圖紙及效果圖,占地150平
占地:151.83平方米
農村四間三層豪華別墅設計方案圖,造型輕奢雅致
占地:200平方米
農村10萬元一層小別墅設計圖,農村一層自建房屋設計圖
占地:多種戶型
三層兄弟雙拼別墅設計方案,外觀大氣布局實用,住的舒服
占地:197.67平方米
三層新農村140平方米房屋設計圖紙,全套施工圖及效果圖
占地:140平方米
帶車庫現代三層房屋別墅設計圖,占地110平米左右,功能齊全
占地:110平米
10套農村經典二層樓房設計圖紙,多戶型,多尺寸,總有一款適合
占地:多種
簡單大氣的農村二層樓設計圖,二層歐式農村別墅設計圖
占地:180平方米
2款現代風格農村兩層別墅設計圖,時尚漂亮
占地:多戶型可選
新古典中式風格別墅設計圖,全套施工圖+效果圖
占地:188平方米
適合兄弟自建的二層雙拼別墅設計方案,帶效果圖
占地:180平方米
一層中式七字型房屋設計圖,帶院子經典設計,耐看不過時
占地:163.18平方米
小青瓦一層中式小院三合院設計施工圖,白墻青瓦古色古香
占地:155.3平方米
面寬13米二層新農村別墅自建房設計圖,功能實用,外觀大氣
占地:168.96平方米
10×12米三層別墅戶型,挑空大客廳設計,圈粉無數的爆款方案
占地:120平方米
簡單大方四間二層小樓房設計圖,帶車庫,帶大露臺
占地:180平方米
歐式三層樓中樓別墅設計圖紙帶車庫(含外觀效果圖)
占地:130平方米
新農村四合院別墅圖片及戶型方案圖,全套圖紙可施工
占地:154平方米左右
130平方米現代簡約農村兩層樓房施工設計圖紙帶外觀圖
占地:126平方米
推薦:10套新農村自建房設計圖,2026年最新設計
閱讀次數:4825737次
100套鄉村別墅圖片大全,2026年最新設計
閱讀次數:2492203次
6款農村蓋一層平房的設計圖,10萬元就能建起來
閱讀次數:1852637次
這11個一層農村自建房別墅火爆了朋友圈!我最喜歡戶型十!你呢
閱讀次數:750268次
農村6萬元建一層小別墅圖,你敢相信嗎
閱讀次數:567686次
農村5萬塊就能自建房,6套普通房子設計圖分享,你沒看錯!
閱讀次數:419410次
8套農村漂亮三間平房圖片,非常適合在農村修建!
閱讀次數:411197次
農村自建房化糞池怎么做?附方案及施工過程
閱讀次數:391783次
農村一層三間平房設計圖,告別土氣養老房,讓人忍不住點贊
閱讀次數:350581次
新農村二層樓房圖片造價12萬,挑一套回家建房吧!
閱讀次數:349126次
