
|
如今老百姓的生活水平越來越好,腰包也漸漸鼓了起來,在建房方面想法也是越來越多了,每一個家庭蓋的房子都有自己的特點,讓人印象深刻。不過在建房方面,小編覺得還是要外觀和布局相結合,徒有其表并非好的戶型,應考慮居住的舒適度和實用性,下面給大家分享一款35萬3廳8臥10×14米帶車庫+喝茶室農村三層自建房,多露臺設計!戶型實用大氣,一起來看看。 圖紙詳情 層數: 三層結構形式: 磚混結構主體造價: 35萬 開間: 10.4米進深: 13.7米占地面積: 125.10平方米建筑面積: 410.45平方米
效果圖 這套戶型設計外立面視覺效果豐富,采用經典的土黃色、白色和灰色裝飾,色彩低調優雅,周邊環境優美,房子四周開設窗戶,采光透氣,室內共設有8間臥室,可滿足大家庭的居住需求,三四代同堂都沒問題。 設計功能
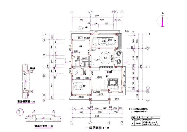
一層平面圖 一 層:車庫、客廳、臥室(帶衛生間)、廚房、餐廳、衛生間
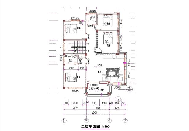
二層平面圖 二 層:客廳、主臥(帶衛生間)、3個臥室、一個衛生間 三 層:喝茶室、主臥(帶衛生間)、2個臥室、衛生間、書房 圖紙之家-專注農村別墅/自建房設計18年,集合國內200余位經驗豐富的設計師,被評為口碑最好的農村建筑設計公司! |

歐式小別墅設計圖紙帶效果圖,二層歐式小別墅設計方案展示
占地:166平方米
時尚一層別墅圖,一層這樣蓋房最漂亮
占地:160平方米
三層現代別墅設計圖紙,全套私人別墅圖紙(含外觀效果圖)
占地:170.38平方米
8×12米農村三層別墅自建房設計圖,小開間精選方案
占地:103平方米
帶閣樓的二層半別墅設計圖和效果圖,外飾簡單但不失奢華
占地:210平方米
農村7字形漂亮房子設計圖及外觀效果圖
占地:189.3平方米
110平左右三間兩層農村別墅房屋設計圖,含外觀效果圖
占地:107平方米
農村三層兄弟雙拼別墅設計圖及效果圖片,14X12米自建戶型
占地:154平方米
私人二層歐式別墅建筑設計圖(效果圖+全套別墅設計方案)
占地:144平方米
時尚耐看現代二層農村別墅設計圖,14米×11米,年輕人建房的不二
占地:138.125平方米
120平方米農村四層別墅設計圖,含全套施工圖
占地:120平方米
經典三層小別墅設計圖紙(效果圖+全套cad建筑圖),新農村自建
占地:120平方米
預算10萬的簡單二層半別墅房屋設計圖,外觀簡單,造價低
占地:90平方米
帶堂屋新農村三層房屋別墅設計圖紙,帶外觀效果圖
占地:214平方米
125平方米三層新農村房屋建筑施工設計圖帶外觀圖
占地:126平方米
中式復古四層別墅房屋設計圖紙,含外觀效果圖
占地:90平方米
大氣農村三層歐式雙拼別墅全套施工圖紙,帶堂屋設計,外觀圖片
占地:196.056平方米
110平方米農村三層復式房屋施工圖,通透時尚,低調又奢華
占地:107.98平方米
農村兩間三層房屋設計圖,含外觀圖片
占地:120平方米
大面寬一層別墅設計圖紙,新中式風格兩款戶型
占地:多戶型可選
推薦:10套新農村自建房設計圖,2026年最新設計
閱讀次數:4825737次
100套鄉村別墅圖片大全,2026年最新設計
閱讀次數:2492203次
6款農村蓋一層平房的設計圖,10萬元就能建起來
閱讀次數:1852637次
這11個一層農村自建房別墅火爆了朋友圈!我最喜歡戶型十!你呢
閱讀次數:750268次
農村6萬元建一層小別墅圖,你敢相信嗎
閱讀次數:567686次
農村5萬塊就能自建房,6套普通房子設計圖分享,你沒看錯!
閱讀次數:419410次
8套農村漂亮三間平房圖片,非常適合在農村修建!
閱讀次數:411197次
農村自建房化糞池怎么做?附方案及施工過程
閱讀次數:391783次
農村一層三間平房設計圖,告別土氣養老房,讓人忍不住點贊
閱讀次數:350581次
新農村二層樓房圖片造價12萬,挑一套回家建房吧!
閱讀次數:349126次
