
|
房子最原始的價值就是用來居住,住起來不舒服那么它就失去了房子本質的價值屬性。但是隨著農村建設越來越好,現代人對自建房的外觀也有了一定要求,不再僅僅是遮風擋雨即可,需要更加的美觀漂亮。今天推薦的這3款自建房,不僅可以遮風擋雨,還美觀大方,讓你一改對農村自建房的偏見。 戶型一 房屋基本信息: 開間:11.8米 進深:11.1米 占地面積:132.8平方米 建筑面積:325.3平方米 建筑結構:磚混結構 主體造價:26—32萬
這是一款兼具時尚與復古的二層自建房,弧形采光玻璃窗美觀大氣,建筑線條流暢簡潔,主體配色沉穩有質感。室內布局細致豐富,空間布局安排合理。
一層:客廳、餐廳、廚房、衛生間、臥室、車庫,洗衣房
二層:2間臥室、臥室(衛生間)、陽臺,另可設客廳和娛樂區。 戶型二 房屋基本信息: 開間:12.5米 進深:11米 占地面積:130平方米 建筑面積:248平方米 主體造價:25萬 建筑結構:磚混結構
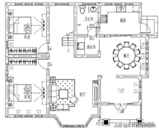
顏色清新亮麗、四平八穩的歐式自建房,充滿了田園的愜意與溫馨。內部設計合理,功能豐富,進門的門廳可設祖宗牌位非常符合農村老百姓生活習慣,臥室基本帶有內衛或者臨近廁所,方便使用。
一層:門廳、客廳、餐廳、廚房、2臥室、衛生間
二層:起居室、3間臥室、書房、衛生間、露臺 戶型三 房屋基本信息: 開間:11.9米 進深:11.4米 占地面積:125平方米 建筑面積:208平方米 主體造價:20—25萬 建筑結構:磚混結構
這是一款簡約風格的現代別墅,外觀時尚簡單,淡雅秀麗,在功能布局上貼合農村生活習慣,一層帶有回廊,戶型比較小,適合居家養老。
一層:玄關、客廳、廚房、餐廳、臥室、衛生間
二層:2間臥室、陽臺、衛生間、家族室、書房 房子不僅是看起來美好,住起來也要輕松愉快,喜歡這三套別墅,有建房意愿的都可以先收藏起來,說不定以后就能派上大用場。 圖紙之家-專注農村別墅/自建房設計18年,集合國內200余位經驗豐富的設計師,被評為口碑最好的農村建筑設計公司! |

高顏值農村二層別墅設計圖,顏值在線造價不高,建房好選擇!
占地:216.93平方米
農村一層五間(6間)新農村設計圖方案,含外觀圖片
占地:193.47平方米
三層現代平頂別墅設計圖,簡約時尚百看不厭,外觀令人驚艷!
占地:125.142平方米
簡單農村二層自建房子設計圖,主體18萬就能建好,太心動了!
占地:124.53
80平方米新農村三層房屋設計圖,新農村住宅圖紙精選
占地:80平方米
農村二層L戶型農村別墅!設計圖簡約時尚又大氣,住著超舒適
占地:170.55平方米
新中式三層別墅,旋轉樓梯+挑空客廳,高級感拉滿
占地:125平方米
二層新農村自建房設計圖,帶外觀效果圖
占地:140平方米
農村自建房別再做傳統客廳!“客廳+茶室”一體設計,寬敞明亮
占地:143.73平方米
復式客廳挑空三層別墅設計圖,帶外觀效果圖片,推薦
占地:150平方米
二層復式樓房設計圖,平實接地氣的平面布局
占地:180平方米
一層合院中式小別院設計圖,白墻灰瓦,愜意十足!
占地:219平方米
村里蓋房圖紙大廳挑空的三層別墅設計圖,面寬不到10米
占地:122.4平方米
18×15米新中式高檔農村三層別墅設計圖,低調奢華又實用
占地:195.91平方米
110平方米新農村三層房屋設計圖紙,含效果圖,帶車庫
占地:113平方米
一層農村自建房別墅設計圖,簡潔時尚的設計,給父母建養老房
占地:144平方米
100平方米左右新農村二層房屋設計建筑CAD圖紙帶外觀效果圖
占地:多戶型可選
簡歐風格別墅設計圖帶外觀效果圖,三層140平米戶型方案
占地:140平方米
時尚一層別墅圖,一層這樣蓋房最漂亮
占地:160平方米
100-140平多戶型二層經典新農村小別墅設計建筑圖紙
占地:多種戶型
推薦:10套新農村自建房設計圖,2026年最新設計
閱讀次數:4825737次
100套鄉村別墅圖片大全,2026年最新設計
閱讀次數:2492203次
6款農村蓋一層平房的設計圖,10萬元就能建起來
閱讀次數:1852637次
這11個一層農村自建房別墅火爆了朋友圈!我最喜歡戶型十!你呢
閱讀次數:750268次
農村6萬元建一層小別墅圖,你敢相信嗎
閱讀次數:567686次
農村5萬塊就能自建房,6套普通房子設計圖分享,你沒看錯!
閱讀次數:419410次
8套農村漂亮三間平房圖片,非常適合在農村修建!
閱讀次數:411197次
農村自建房化糞池怎么做?附方案及施工過程
閱讀次數:391783次
農村一層三間平房設計圖,告別土氣養老房,讓人忍不住點贊
閱讀次數:350581次
新農村二層樓房圖片造價12萬,挑一套回家建房吧!
閱讀次數:349126次
