
|
不少網友看了很多漂亮好看的別墅,都會嗤之以鼻。說建好了也白搭配,現在都統一蓋房,集中居住了。但是今天這棟別墅,哪怕是建完再推倒也不后悔,實在太好看了! 福建蔡先生的定制別墅設計圖,古典歐式經典霸氣。
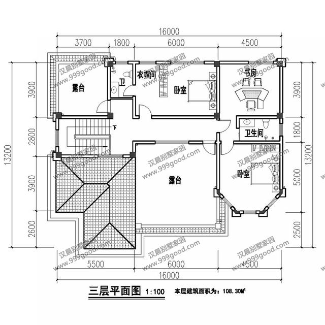
結合了當地的風俗和避免開門見山,大門合理的進行了安排。
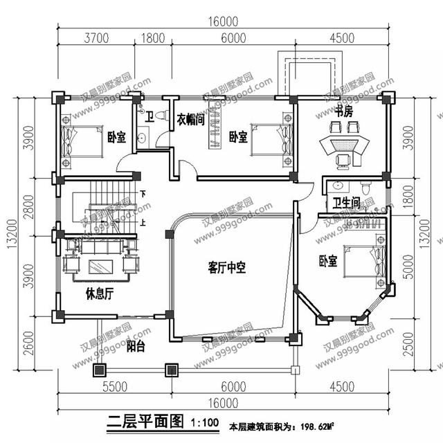
平面功能:入戶是開放式的衣帽間,用于進門放鞋子、包包等。 餐廳旁邊有開放式的休息廳,共家人飯后聊天所用。
二層和三層一樣的格局,客廳挑空,臥室帶有衛生間、書房或者衣帽間。 ![]()
圖紙之家-專注農村別墅/自建房設計18年,集合國內200余位經驗豐富的設計師,被評為口碑最好的農村建筑設計公司! |

中式兄弟雙拼別墅設計圖紙,類似合院造型,美爆了
占地:221.9平方米
農村三層四合院別墅設計圖紙,自建房建這棟面子十足
占地:227.49平方米
100平方米左右新農村二層房屋設計建筑CAD圖紙帶外觀效果圖
占地:多戶型可選
110平方米農村三層自建房設計圖紙帶外觀圖
占地:110平方米
165平方米三層雙拼農村房屋設計圖大全14x12
占地:168平方米
最新款二層半別墅圖片,占地115平米左右,帶地下室,帶露臺
占地:115平方米
120平方米農村四層別墅施工設計圖紙及效果圖
占地:120平方米
精致小巧新農村二層別墅設計圖紙,占地90平米左右,造價15萬左
占地:90平方米
新農村現代簡約別墅建筑設計圖紙(含外觀效果圖),28萬左右
占地:107平方米
帶露臺陽光房二層建房別墅設計圖,13米乘12米,享受農村悠然慢
占地:143.54平方米
田園輕奢三層帶露臺的鄉村別墅設計圖紙,11x10米
占地:106.64平方米
130多平方米新農村三層別墅建筑設計圖及效果圖
占地:133平方米左右
面寬13米簡簡單單一層農村自建別墅設計圖,方正大氣經濟宜居
占地:126.1平方米
造價40萬內三層別墅房屋設計方案,設計圖+外觀效果圖
占地:150平方米
最好看的新款農村三層復式別墅設計圖片及設計圖,外觀高端、大
占地:160平方米
自建一層三合院別墅圖,雅致鄉村居造價經濟,南北通透更宜居!
占地:176.36平方米
農村一層中式三合院別墅戶型圖,這才是適合中國人建的好房子
占地:218.77平方米
農村三層樓房設計圖三層別墅圖片,占地面積135平米
占地:135平方米
農村7字形漂亮房子設計圖及外觀效果圖
占地:189.3平方米
最實用中式一層三合院別墅設計圖,簡約精致布局實用
占地:162.49平方米
推薦:10套新農村自建房設計圖,2026年最新設計
閱讀次數:4825737次
100套鄉村別墅圖片大全,2026年最新設計
閱讀次數:2492203次
6款農村蓋一層平房的設計圖,10萬元就能建起來
閱讀次數:1852637次
這11個一層農村自建房別墅火爆了朋友圈!我最喜歡戶型十!你呢
閱讀次數:750268次
農村6萬元建一層小別墅圖,你敢相信嗎
閱讀次數:567686次
農村5萬塊就能自建房,6套普通房子設計圖分享,你沒看錯!
閱讀次數:419410次
8套農村漂亮三間平房圖片,非常適合在農村修建!
閱讀次數:411197次
農村自建房化糞池怎么做?附方案及施工過程
閱讀次數:391783次
農村一層三間平房設計圖,告別土氣養老房,讓人忍不住點贊
閱讀次數:350581次
新農村二層樓房圖片造價12萬,挑一套回家建房吧!
閱讀次數:349126次
