?
這家的房主比較喜歡新中式園林的風格,考慮到自家宅基地的面積不夠搭,做不了四合院的形式,最終房主便決定,在宅基地上蓋棟新中式的二層別墅出來。
整個建筑的色調偏向于暖色調,斜坡屋頂能夠在雨季來臨的時候,盡快讓雨水排出。在別墅的二層中庭還專門設計有一個大露臺,既可以供房主一家人晾曬衣物,還可以供孩子們在此休閑玩耍。
別墅的室內裝修風格同樣走的是新中式風格。新中式園林別墅,一間中庭連兩家,兄弟同心父母樂!
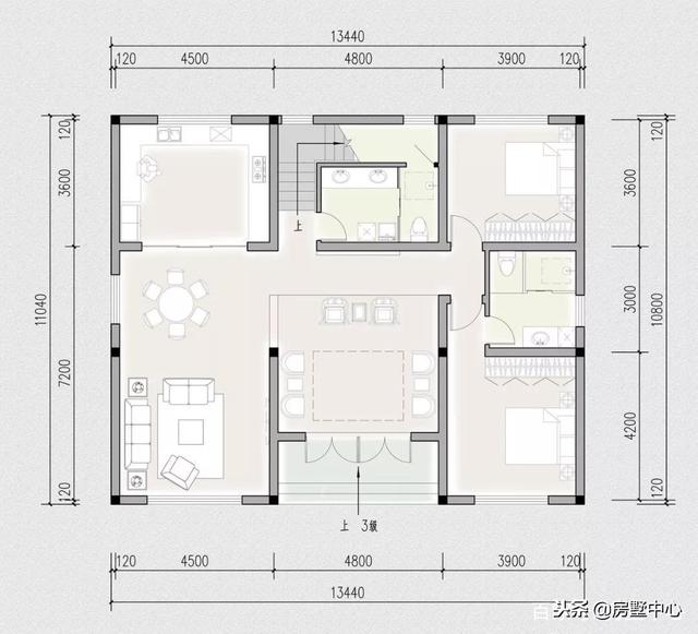
一層設客廳、餐廳、廚房、兩間臥室、兩間衛生間。
入戶堂屋反正大氣,帶有超大前廳的入戶,在鄉下可以稍作隔斷作玄關使用,還可以設置神臺,南向視野無遮擋,各個功能房間相互獨立。廚房關上門,做飯用餐時就不需要擔心油煙進入生活區域了。
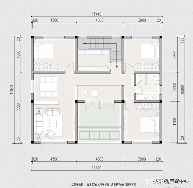
二層為主要的居住空間,設置3個臥室,一個衣帽間,一個起居室,一個露臺。







































