
|
一般在農村出生的孩子,都會希望在家里的宅基地上建一棟屬于自己的房子,這是一種情結所在。老婆孩子熱炕頭,這才是熱騰騰的生活呀!如果家里沒有一棟像樣的房子,娶媳婦第一關就連媒人的關都過不了。當然如果你有一棟像下面這一棟歐式三層的房子,絕對可以輕松把媳婦抱回家。
房屋基本信息: 開間:12.2米 進深:13.6米 占地面積:125平方米 建筑面積:330.6平方米 建筑結構:框架結構 主體造價:20—25萬 這是一棟外表看起來就氣勢非凡的三層別墅,和村里那些東抄抄、西借鑒的“妖艷賤貨”們不一樣,建筑線條簡約靈動,凸面造型更顯立體,整體配色清新干凈,讓人心情愉悅。弧形采光玻璃窗,不僅采光通透,而且造型現代,讓整棟建筑時尚感滿分!加分點遠不止于此,這是一款可獨棟、可雙拼的別墅,有兄弟的可以和兄弟一起建,鄰居、朋友關系好的也能一起建。
一層設計車庫、客廳、餐廳、廚房、衛生間、臥室。外置式車庫,方便停放車輛,不用也可以當作雜物房使用。客廳與餐廳相連,整個空間看上去寬敞明亮。臥室靠近衛生間,非常人性化的設計。
二層設計臥室(帶衛生間)、2間臥室、公衛。主臥帶有衛生間,方便使用,兩間次臥可以作為兒童房、客房,或者改造成書房、娛樂室等。
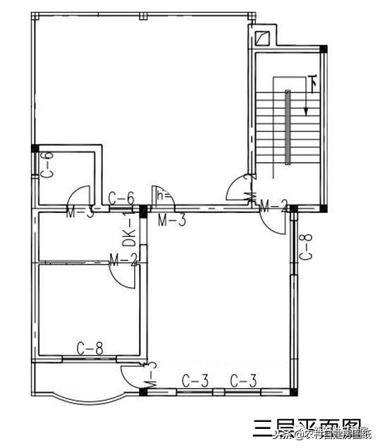
三層設置了隔斷,防水、防火還可以防一定噪音,同時能提高房屋的使用面積,非常人性化的考慮。 等天氣晴朗,趕緊找個靠譜的施工隊,給自建建個漂亮的新房子,把心儀的姑娘娶回家,多幸福呀! 圖紙之家-專注農村別墅/自建房設計18年,集合國內200余位經驗豐富的設計師,被評為口碑最好的農村建筑設計公司! |

農村一層五間(6間)新農村設計圖方案,含外觀圖片
占地:193.47平方米
帶車庫,帶露臺的三層復式樓房設計圖,新農村房屋方案推薦
占地:140平方米
簡歐風格三層別墅設計圖,外觀看起來很高端、上檔次
占地:139平方米
架空層設計的農村自建房別墅設計圖,既做車庫又做儲物間,太實
占地:230.62平方米
簡潔大氣140平方三層房子設計圖,帶車庫戶型極佳
占地:140平方米
農村三層歐式別墅豪宅戶型圖設計方案,復式中空客廳+旋轉樓梯
占地:134.84平方米
兩層半新農村別墅設計圖紙,CAD設計圖+高清效果圖
占地:90平方米
14米乘10米農村二層別墅新款,外觀對稱設計,經久耐看!
占地:140平方米
120平方米農村漂亮實用的兩層別墅設計圖紙,含外觀圖片
占地:120平方米
一層中式三合院別墅設計圖,白墻黛瓦引領潮流
占地:177.94平方米
三層半復式別墅設計方案,全套設計圖+效果圖
占地:160平方米
2026新款戶型三層新農村別墅房屋設計圖紙,外觀對稱
占地:160平方米
農村蓋平房設計大全圖,鄉下建房一層戶型圖及效果圖
占地:160平方米
農村二層中式戶型設計圖,造型古香古色,建好絕對是地標
占地:245.39平方米
一層共用,二層兄弟雙拼的二層別墅設計圖
占地:182.48平方米
100平內的三層豪華歐式別墅房屋設計圖紙 ,簡歐風格
占地:94平方米左右
三層新農村小別墅設計圖紙,占地120平米,客廳中空,帶大露臺
占地:120平方米
辦公居住共用的一層別墅設計圖,簡約優雅,精致生活新體驗
占地:265.3平方米
新農村三層帶露臺自建房設計施工圖,農村自建別墅推薦
占地:112平方米
新中式農村三層房屋效果圖及施工圖,140平方米左右
占地:140平方米
推薦:10套新農村自建房設計圖,2026年最新設計
閱讀次數:4825737次
100套鄉村別墅圖片大全,2026年最新設計
閱讀次數:2492203次
6款農村蓋一層平房的設計圖,10萬元就能建起來
閱讀次數:1852637次
這11個一層農村自建房別墅火爆了朋友圈!我最喜歡戶型十!你呢
閱讀次數:750268次
農村6萬元建一層小別墅圖,你敢相信嗎
閱讀次數:567686次
農村5萬塊就能自建房,6套普通房子設計圖分享,你沒看錯!
閱讀次數:419410次
8套農村漂亮三間平房圖片,非常適合在農村修建!
閱讀次數:411197次
農村自建房化糞池怎么做?附方案及施工過程
閱讀次數:391783次
農村一層三間平房設計圖,告別土氣養老房,讓人忍不住點贊
閱讀次數:350581次
新農村二層樓房圖片造價12萬,挑一套回家建房吧!
閱讀次數:349126次
