
|
農村自建房不能盲目追求大,而應該根據自家的人口和使用情況適度建設,因此未必所有家庭都需要建滿兩層甚至三層。但是農村又追求房屋高度,至少蓋出來不能比鄰居家低。家里住不了兩層那么大面積卻又不得不蓋兩層,以便高度跟鄰居一致。其實經過設計還是有辦法在一層的基礎之上蓋出兩層的效果。 今天這款圖紙就是一個很好的范例,省時省力還省錢。
農村自建房效果圖 上圖為效果圖,可以很明顯的看出,主體結構是一層,在二層的位置上用磚混結構搭出來一個類似閣樓,但實際上比閣樓更大的突出部。二層閣樓加上尖頂的高度,不僅讓這個一層為主的自建房高度上超過普通二層樓,而且在工程建設成本上遠低于普通二層樓。畢竟二層建筑面積小,整體造價只相當于一層樓的三分之一。
一層平面圖 面積和造價雖小,但使用起來絕對方便,進門是客廳,正對大門設計有儲物間和樓梯,樓梯下方還設有去后院的小門,方便進出。廚房位于客廳東側,跟餐廳結合在一起。這個戶型的特點是,廚房餐廳不對建筑內部開門,而是放在了一層門廊下面,對門廊開門。這樣的設計方案最大限度保留了上一代農村住宅的居住習慣。 因為在現有未經改造的農村住宅中,餐廳廚房一般是不設在建筑內部的,而是單獨放在院子一側,空間大排油煙也方便。 另外這套戶型一層設計了三個臥室和一個衛生間,妥妥滿足一代人的居住需求。整體面寬13米、進深12.8米,加上小院之后,正好滿足農村宅基地尺寸。完全用滿宅基地也是提高建房效率的必要條件。 二層平面 接下來看二層平面,從樓梯上來之后,二層閣樓是兩室設計,南面一個大臥室,北面一個小臥室,不過即便如此,北面的臥室也是可以朝南開窗采光的,這個很有必要,不然沒有南向窗戶的房間到了冬天會非常難受,不僅冷,而且通風狀況不好。走廊東側設計了衛生間一個,旁邊有儲藏間。 露臺也是這款自建房的特色之一,東西兩側分別設計有大小兩個露臺,可以從主臥室或者走廊分別進入兩個露臺之中。這樣的設計在農村晾曬物比較多的家庭是很實用的。
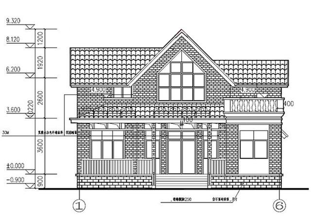
再看立面圖,一層高度3.6米,二層主體部分高度稍小為2.6米,但是尖頂部分做到了將近兩米,這樣一來整個建筑總高度達到了八米多,是不是很劃算。 圖紙之家-專注農村別墅/自建房設計18年,集合國內200余位經驗豐富的設計師,被評為口碑最好的農村建筑設計公司! |

2026新款戶型三層新農村別墅房屋設計圖紙,外觀對稱
占地:160平方米
新農村二層歐式別墅設計圖,外觀漂亮,主體18萬起建
占地:115.2平方米
農村兩層新中式別墅圖紙設計圖,外觀圖片大氣,21萬左右
占地:108平方米
農村二層中式戶型設計圖,造型古香古色,建好絕對是地標
占地:245.39平方米
經典三層雙拼樓房設計圖,經典外觀,經典戶型
占地:225平方米
30萬以下的經典二層新農村別墅設計圖紙及效果圖,簡單大氣
占地:170平方米
農村二層小別墅自建房屋設計圖,客廳中空,占地150平米
占地:150平方米
120平米農村三層房屋設計圖,客廳中空,戶型合理
占地:120平方米
高端二層新中式四合院別墅設計圖,含全套CAD施工圖
占地:217平方米
2026新款新式農村50萬三層別墅圖片,帶地下室,美觀大氣
占地:130平方米左右
農村兩層帶地下室別墅設計圖,還帶庭院規劃,適合農村建
占地:144.5平方米
農村自建房三間設計圖,花錢少效果好12米乘9米,經濟適用性價比
占地:108.9平方米
140-150平方米新農村別墅設計圖紙,帶外觀效果圖,復式戶型
占地:146平方米
農村一層四開間自建別墅,美麗住宅如詩如畫里15米乘10米
占地:142平方米
35萬左右的農村小別墅設計圖及效果圖,新中式風格
占地:137平方米
簡單大氣二層兄弟雙拼樓房設計圖,外觀簡約
占地:268平方米
小L型新款二層別墅設計圖,復式客廳旋轉樓梯,14米乘13米
占地:182平方米
130平四間二層小洋樓設計圖,含外觀圖片
占地:130平方米
最新歐式三層別墅設計圖紙,超漂亮,預算30到40萬
占地:160平方米
二層半新中式別墅設計圖,農村自建24萬,帶庭院規劃設計
占地:140.68平方米
推薦:10套新農村自建房設計圖,2026年最新設計
閱讀次數:4825737次
100套鄉村別墅圖片大全,2026年最新設計
閱讀次數:2492203次
6款農村蓋一層平房的設計圖,10萬元就能建起來
閱讀次數:1852637次
這11個一層農村自建房別墅火爆了朋友圈!我最喜歡戶型十!你呢
閱讀次數:750268次
農村6萬元建一層小別墅圖,你敢相信嗎
閱讀次數:567686次
農村5萬塊就能自建房,6套普通房子設計圖分享,你沒看錯!
閱讀次數:419410次
8套農村漂亮三間平房圖片,非常適合在農村修建!
閱讀次數:411197次
農村自建房化糞池怎么做?附方案及施工過程
閱讀次數:391783次
農村一層三間平房設計圖,告別土氣養老房,讓人忍不住點贊
閱讀次數:350581次
新農村二層樓房圖片造價12萬,挑一套回家建房吧!
閱讀次數:349126次
