
|
農村建房和城市建房有所不同,城市是政府出讓住宅用地,屬于私產。而農村是集體分配宅基地,屬于集體土地。可是相比較來說,咱們農村自建房的自由度更大一些,在這種情況下,給我們建房帶來了相當大的設計空間,能夠根據農村實際情況設計出更貼近實際使用需求的住宅。 比如今天共享給大家的兩層農村自建房圖紙,在一塊宅基地上可以貼鄰建造兩幢自建房,為農村兄弟多的人家提供了非常實用的設計方案。
首層平面圖 咱們只介紹其中一半,另一半跟這邊完全一致,按宅基地中心線鏡像即可。一層進門是院子,單獨為汽車設計了車棚。圍繞院子,按照中國傳統四合院的形式,分別設計了客廳、餐廳、廚房以及老人房。最南側設計有儲藏間,滿足農村家庭多種多樣的儲藏要求。 樓梯位于西北角,可以直通二樓。廁所設計于樓梯一側,位于西北角采光較差的位置,不浪費優質空間。
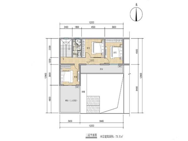
二層平面圖 二層設計有三個臥室和一個廁所,并且在西南角設計了超大的露臺。這個露臺在農村生活中是必須品,各種農產品采摘之后很多都需要進行晾曬才能入庫或者售賣。曬在露臺上比曬在馬路上更加方便和衛生,省時省力。 小院做了挑空處理,一二層打通,陽光可是直接照射進來,但是如果后期有更大面積的使用需求,可以直接在二層地面位置將小院封上,這樣就相當于增加了一個院子大小的居住空間。對于人口持續增多的家庭是具有可操作性的。
外觀設計 這張效果圖是兩棟自建房拼起來的效果,采用坡屋頂形式,免去了冬天積雪和夏天雨水排水的問題。當然,南北方氣候有所不同,但是毫無例外,坡屋頂適合全國大部分地區的氣候模式。 設計風格上選用徽派建筑為模板,通過白墻灰瓦的主要建筑元素將整體氣質烘托出來。另外在材料選擇上,外立面采用了部分木質元素,貼近自然材料。這樣整體設計出來,可以說在當地肯定是數一數二的存在。估計落成當天會有很多鄉親來參觀。 整體建筑面積200平米,四室三廳,面寬和進深分別在13米左右,基本符合全國大部分地區的宅基地尺寸。布局上簡單靈活,能夠滿足幾代人的居住需求,同時還能兩棟合拼建造,為兄弟二人建房需求提供了優質的設計參考。 圖紙之家-專注農村別墅/自建房設計18年,集合國內200余位經驗豐富的設計師,被評為口碑最好的農村建筑設計公司! |

140平方米三層半新農村房屋別墅設計圖,帶車庫
占地:140平方米
三層新中式別墅建筑設計圖紙及圖片,11.66m*9.76m,典雅耐看
占地:114平方米
面寬8米農村二間二層小別墅設計方案,施工簡單造價低
占地:73.77平方米
中式三層新農村房子別墅設計圖,看了那么久,還是中式最有韻味
占地:97.2平方米
一二層都帶廚房餐廳的獨棟二層別墅設計圖,帶雙廚房
占地:143.68平方米
小型新中式二層小別墅圖紙設計方案,好看造價不高
占地:232.98平方米
時尚漂亮的二層小洋樓設計圖,設計師建房都選這個方案
占地:149.27平方米
小型中式一層三合院別墅設計圖,小宅基地照樣建合院
占地:119.73平方米
鄉村別墅現代風平屋頂四層自建房設計圖,簡約時尚
占地:144.7平方米
簡單實用農村自建四層小別墅設計圖(三層半),95平米
占地:95平方米
120平方三層房子設計圖,漂亮實用農村自建小別墅設計圖
占地:120平方米
帶露臺陽光房二層建房別墅設計圖,13米乘12米,享受農村悠然慢
占地:143.54平方米
給爸媽建養老房?100 平人字坡一層房太合適!簡約低調還實用
占地:102.6平方米
2026最受歡迎的三層農村小別墅設計圖紙,占地155平方米
占地:155平方米
簡歐二層別墅設計圖紙含效果圖片,寶家鄉墅經典風格
占地:137.34平方米
小平米四層自建房屋設計圖紙,戶型簡單實用,占地80平方米
占地:80平方米
奢華歐式二層樓房設計圖,入戶設有玄關,一層大窗設計
占地:190平方米
新中式復式三層別墅設計圖紙,最美的新中式別墅
占地:130平方米
80多平米二層小型自建房設計圖,經濟舒適別具一格
占地:84.48平方米
田園輕奢三層帶露臺的鄉村別墅設計圖紙,11x10米
占地:106.64平方米
推薦:10套新農村自建房設計圖,2026年最新設計
閱讀次數:4825737次
100套鄉村別墅圖片大全,2026年最新設計
閱讀次數:2492203次
6款農村蓋一層平房的設計圖,10萬元就能建起來
閱讀次數:1852637次
這11個一層農村自建房別墅火爆了朋友圈!我最喜歡戶型十!你呢
閱讀次數:750268次
農村6萬元建一層小別墅圖,你敢相信嗎
閱讀次數:567686次
農村5萬塊就能自建房,6套普通房子設計圖分享,你沒看錯!
閱讀次數:419410次
8套農村漂亮三間平房圖片,非常適合在農村修建!
閱讀次數:411197次
農村自建房化糞池怎么做?附方案及施工過程
閱讀次數:391783次
農村一層三間平房設計圖,告別土氣養老房,讓人忍不住點贊
閱讀次數:350581次
新農村二層樓房圖片造價12萬,挑一套回家建房吧!
閱讀次數:349126次
