
|
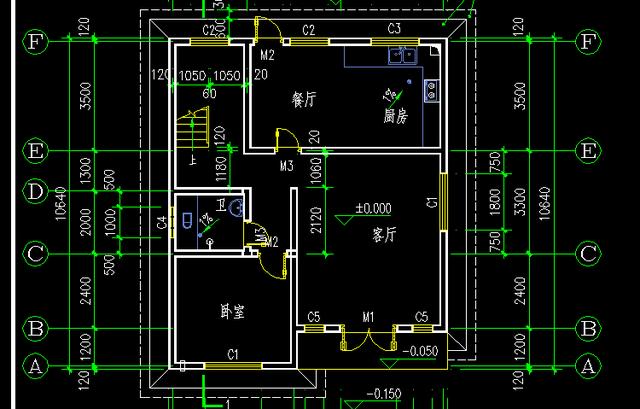
今天小編分享的是90平方三層樓房設計圖及圖片,戶型設計簡約時尚,三層上設有大露臺,戶主可以自行布局,靈活使用有限的空間。外立面采用白色搭配底部黃褐色,清新優雅。 占地尺寸:8.94*10.64m;占地面積:89.36㎡;總建筑面積:218.47㎡;主體造價:18.02萬(僅供參考) 建筑層數:三層 結構形式:磚混結構
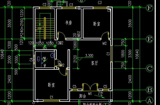
設計功能: 一 層:客廳、廚房、餐廳、臥室、衛生間 二 層: 客廳、2臥室、書房、衛生間 三 層:儲藏室2間(可用作房間)、曬臺 平面圖:
一層平面圖
二層平面圖 圖紙之家-專注農村別墅/自建房設計18年,集合國內200余位經驗豐富的設計師,被評為口碑最好的農村建筑設計公司! |

170平米自建三層房屋別墅設計圖紙及效果圖
占地:170平米
三層新農村住宅設計圖及效果圖,三層樓房設計圖展示
占地:140平方米
精致時尚一層雙拼別墅設計圖,造價實惠,起居互不打擾
占地:369.54平方米
豪華二層別墅設計圖紙及效果圖,帶車庫,歐式別墅方案
占地:170平方米
3款三層農村自建別墅設計圖,氣派十足,準備建房的快快查看
占地:多戶型可選
農村二層半兄弟共建房別墅設計圖,復式戶型帶車庫,面寬24米
占地:312平方米左右
兄弟兩戶雙拼房屋設計圖及外觀圖片,戶型合理
占地:185平方米
135平復式別墅房屋設計圖,外觀時尚、漂亮
占地:135平方米
開間8米的小戶型二層別墅設計圖,2開間占地不到60平
占地:56平方米左右
私人二層農村小樓設計圖,外觀靚麗,富有現代氣息
占地:160平方米
農村四層雙拼別墅房屋設計圖,造型現代、大氣
占地:220平方米
90平農村自建房二層新款,占地不大但很實用,
占地:88平方米
160平方米農村二層別墅設計效果圖帶CAD建筑圖
占地:160平方米
農村最好看18萬左右兩層小樓圖,外觀、造型簡潔大方
占地:120平方米
帶架空層的三層農村別墅設計火了!雨季不怕返潮
占地:147.15平方米
12x13米豪華三層農村別墅設計圖,宅基地上的貴族人生
占地:156平方米
帶堂屋設計一層5間平房新農村自建別墅效果圖全套施工圖
占地:198.41平方米
140平三層自建房別墅設計圖,外觀圖大氣、美觀
占地:140平方米
帶地下室獨棟三層高端別墅房圖紙設計圖,復式客廳旋轉樓梯
占地:146.145平方米
歐式二層別墅cad施工圖紙,含效果圖,歐式別墅設計圖紙展示
占地:189平方米
推薦:10套新農村自建房設計圖,2026年最新設計
閱讀次數:4825737次
100套鄉村別墅圖片大全,2026年最新設計
閱讀次數:2492203次
6款農村蓋一層平房的設計圖,10萬元就能建起來
閱讀次數:1852637次
這11個一層農村自建房別墅火爆了朋友圈!我最喜歡戶型十!你呢
閱讀次數:750268次
農村6萬元建一層小別墅圖,你敢相信嗎
閱讀次數:567686次
農村5萬塊就能自建房,6套普通房子設計圖分享,你沒看錯!
閱讀次數:419410次
8套農村漂亮三間平房圖片,非常適合在農村修建!
閱讀次數:411197次
農村自建房化糞池怎么做?附方案及施工過程
閱讀次數:391783次
農村一層三間平房設計圖,告別土氣養老房,讓人忍不住點贊
閱讀次數:350581次
新農村二層樓房圖片造價12萬,挑一套回家建房吧!
閱讀次數:349126次
