
|
現在農村建房者喜歡新中式別墅的越來越多了,為此設計師特意精心挑選出5套中式合院建筑給大家分享,看了才知道這才是真正的別墅設計,每一款包含效果圖+戶型平面圖+造價,總有一款是你喜歡的。 別墅一: 別墅首層占地面積為:350㎡(含庭院面積); 開間為:20米,進深為17.2米; 共3層,總建筑面積為:480.06㎡ 主體造價:70萬左右;
戶型設計如下:
別墅二: 別墅主體首層占地面積為:188㎡; 開間為:18.0米,進深為:16.1米; 共2層,總建筑面積為:370.25平米; 主體造價:45萬左右;
平面設計圖如下:
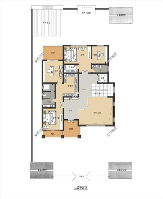
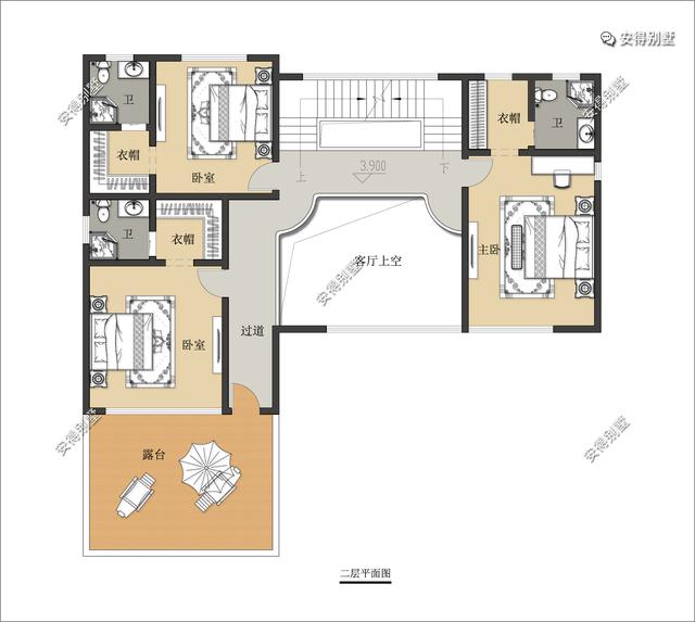
別墅三: 別墅首層占地面積為:302.56㎡; 開間為:14.6米,進深為:21.6米; 地下1層,地上3層,總建筑面積為829.79㎡; 主體造價:90萬左右;
內部平面布局如下:
別墅四: 別墅主體首層占地面積為:178㎡; 前院5米進深,后院2米進深; 共2層,總建筑面積為:329平米; 開間為:14.4米,進深為:12.3米; 主體造價:50萬左右;
內部功能布局圖如下:
別墅五: 別墅主體占地面積為:170㎡; 開間為:12.9米,進深為:12.9米; 共3層,總建筑面積為:412㎡; 主體造價:60萬左右;
平面設計圖如下:
![]()
圖紙之家-專注農村別墅/自建房設計18年,集合國內200余位經驗豐富的設計師,被評為口碑最好的農村建筑設計公司! |

現代風格建房圖紙二層別墅設計方案,外觀百看不厭
占地:多戶型可選
三層現代簡約農村雙拼小別墅圖,好看精致,開間17米
占地:187平方米
新農村自建三層樓房設計圖紙,外觀簡單大方
占地:137平方米
二層新中式小別墅設計圖紙,舒適實用,16米乘12米
占地:189.88平方米
兄弟雙拼別墅設計戶型圖及設計方案圖,帶外觀效果圖,外觀好看
占地:185平方米(單棟)
240平方米新農村四合院兩層樓房施工設計圖紙帶外觀圖
占地:234平方米
130平方米復式三層別墅房屋設計圖,含外觀效果圖
占地:130平方米
簡潔干練三層現代風平頂別墅設計圖,8X15米
占地:115.1平方米
徽派3層農村小別墅設計圖,廣東新農村住宅設計圖集
占地:110平方米
16米乘11米接地氣農村二層自建房圖,帶配房設計
占地:149.8平方米
中式二層對稱別墅設計圖,帶地下室設計,整體造價經濟
占地:171.6平方米
經濟實惠一層戶型圖,農村養老房舒適至上,簡約而不失溫馨
占地:147.5平方米
實用型二層別墅設計圖,簡單大方最耐看,16.5米乘11米
占地:150.94平方米
110平預算20萬內三層別墅設計圖,含效果圖
占地:110平方米
105平一層簡單農村別墅設計圖,造價8萬左右
占地:105平方米
五十萬二層半鄉村別墅,客廳挑空設計,占地200平米左右
占地:200平方米
150平米二層鄉村小別墅圖,戶型合理,外觀清新淡雅
占地:150平方米
140平方米農村三層復式房屋設計施工圖,開放式廚房
占地:143平方米
帶地下室+挑空客廳,農村三層洋樓別墅誰家圖在
占地:97.74平方米
農村三層樓房設計圖及圖片,客廳挑空,優化室內采光
占地:140平方米
推薦:10套新農村自建房設計圖,2026年最新設計
閱讀次數:4825737次
100套鄉村別墅圖片大全,2026年最新設計
閱讀次數:2492203次
6款農村蓋一層平房的設計圖,10萬元就能建起來
閱讀次數:1852637次
這11個一層農村自建房別墅火爆了朋友圈!我最喜歡戶型十!你呢
閱讀次數:750268次
農村6萬元建一層小別墅圖,你敢相信嗎
閱讀次數:567686次
農村5萬塊就能自建房,6套普通房子設計圖分享,你沒看錯!
閱讀次數:419410次
8套農村漂亮三間平房圖片,非常適合在農村修建!
閱讀次數:411197次
農村自建房化糞池怎么做?附方案及施工過程
閱讀次數:391783次
農村一層三間平房設計圖,告別土氣養老房,讓人忍不住點贊
閱讀次數:350581次
新農村二層樓房圖片造價12萬,挑一套回家建房吧!
閱讀次數:349126次
