
|
每一個人對家都有著深切的渴望 走在回家的路上經常能看到漂亮的農村住房 即使走過了也忍不住回頭多看幾眼 自己心里也暗暗希望能夠給家人,給愛人。 一個舒適的環境,一個完美的家,伊人如彩虹,她配得上世間最美好的東西。 但苦于宅基地面積較小,在這樣的條件上,要想蓋一棟漂亮又實用的別墅,就成了一個讓人很頭疼的問題了。想要找個好戶型很是困難,戶型好不容易覺得可以了,外觀造型上可能又不滿意了。今天小編就給大家來個福利,7.8米小面寬的住宅戶型。
別墅外觀為歐式風格,整體造型層次感豐富,也合理安排了天井、露臺和陽臺,滿足日常晾曬,優化通風采光。
一層:設置有大客廳,廚房,餐廳,臥室,衛生間和天井。 設置一個臥室,可以作老人房,避免老人爬樓梯摔跤受傷。 客廳設計了天井,這樣住宅里就能有更多的自然光照射進來顯得更加寬敞明亮。兩側都由于地形限制兩側都沒有開窗。
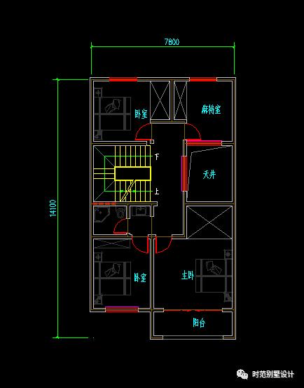
二層設起居室(休閑廳)、3個臥室、一個棋牌室,一間衛生間、天井。 天井的采光使室內光線得到強化,能為住戶提供一個良好的居住環境。 較多的臥室能方便年節是招待客人,要是覺得不必,可以把朝南兩個臥室改成一個套房,這樣就極其方便了。
三層設置一個臥室,沒有設置衛生間,一個書房,朝南大露臺,大露臺設計方便晾曬的同時,還可以作休閑和觀景平臺使用,打造成家中休閑愜意的好去處。 室內案例:廚房:
臥室: ![]() 圖紙之家-專注農村別墅/自建房設計18年,集合國內200余位經驗豐富的設計師,被評為口碑最好的農村建筑設計公司! |

二層簡歐別墅設計圖挑空客廳+旋轉樓梯,看過的人都說氣派
占地:154.699平方米
網紅農村一層小別墅設計圖,建一層的必看
占地:多戶型可選
100平方建房子設計圖及效果圖,簡單實用的戶型設計
占地:97.3平方米
新農村二層歐式別墅設計圖,外觀漂亮,主體18萬起建
占地:115.2平方米
現代風格二層別墅設計圖,外觀時尚、大氣
占地:153平方米
造價40萬內三層別墅房屋設計方案,設計圖+外觀效果圖
占地:150平方米
20萬左右普通農村房子設計圖,二層簡約小別墅
占地:140平方米
140平方米新農村二層自建平屋頂房屋設計圖紙帶外觀效果圖
占地:140平方米左右
簡歐風格三層別墅設計圖,外觀看起來很高端、上檔次
占地:139平方米
二層平頂別墅設計圖,漂亮經濟實用二層農村小別墅最新房屋設計
占地:多種戶型
一層合院中式小別院設計圖,白墻灰瓦,愜意十足!
占地:219平方米
農村二層中式小三合院別墅全套設計圖,民族特色風格
占地:122平方米
二層現代別墅設計圖及效果圖,外觀美觀,大氣
占地:195平方米
二層新農村自建房設計圖,帶外觀效果圖
占地:140平方米
農村一層平房別墅設計圖,18米乘9米,實實在在的好戶型
占地:162平方米
平屋頂12米寬別墅三層設計圖,平頂照樣建的漂亮
占地:129.6平方米
一層農村自建房別墅設計圖,簡潔時尚的設計,給父母建養老房
占地:144平方米
現代風格四合院別墅設計圖,回老家建一棟吧
占地:177.89平方米
一層共用,二層兄弟雙拼的二層別墅設計圖
占地:182.48平方米
建完被夸半年!現代風三層農村別墅,顏值抗打還百看不厭
占地:136.01平方米
推薦:10套新農村自建房設計圖,2026年最新設計
閱讀次數:4825737次
100套鄉村別墅圖片大全,2026年最新設計
閱讀次數:2492203次
6款農村蓋一層平房的設計圖,10萬元就能建起來
閱讀次數:1852637次
這11個一層農村自建房別墅火爆了朋友圈!我最喜歡戶型十!你呢
閱讀次數:750268次
農村6萬元建一層小別墅圖,你敢相信嗎
閱讀次數:567686次
農村5萬塊就能自建房,6套普通房子設計圖分享,你沒看錯!
閱讀次數:419410次
8套農村漂亮三間平房圖片,非常適合在農村修建!
閱讀次數:411197次
農村自建房化糞池怎么做?附方案及施工過程
閱讀次數:391783次
農村一層三間平房設計圖,告別土氣養老房,讓人忍不住點贊
閱讀次數:350581次
新農村二層樓房圖片造價12萬,挑一套回家建房吧!
閱讀次數:349126次
