
|
在農村適合建什么樣的房子?在小編看來,實用性永遠都是第一位,其次才是要外觀漂亮。農村別墅戶型很多,但要算得上經濟實惠,還得要三層農村別墅。三層的別墅符合現代農村的潮流,功能布局足夠一戶家庭居住。 今天小編就給大家推薦一款大型的歐式別墅,復式三層豪華歐式別墅,宮廷似的舒適度讓人欲罷不能。
建筑的整體風格是歐式,而且是華麗的歐式風格,看起來非常的霸氣。也是三層獨棟的設計,空間設計了三層,且配置齊全,真的是幸福。
這款別墅房型方方正正,外觀設計簡單大方,搭配時尚的羅馬柱裝飾,美觀又大方。從外觀看,窗欞、屋脊、檐口都有講究,還有一個重要的就是尺寸把握和比例把控。配以適度的景觀設計就是宜居之所。
外觀上錯落不一的米黃色西瓦,淺色的外墻涂料和文化石搭配,清爽之余,又多了幾分鄉村的恬淡美好。二至四層并設有多個陽臺及大窗戶,白色陽臺護欄及磚石柱。四層設有大露臺,室外景觀一覽無余。
多面開窗,采光通風良好,陽光充沛。而且弧形落地窗的設計,讓整個別墅看起來更富有時尚氣息,充滿了理性的現代感。進門的門廳精致大氣,讓別墅的氣勢又上了一個臺階。
建筑的正面效果圖。
建筑的西面效果圖。
建筑的東面效果圖。
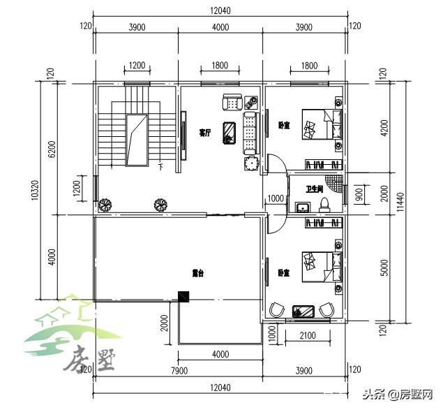
接下來我們看看別墅的平面設計圖:
一層設有儲藏室、客廳、臥室、廚房、餐廳、衛生間。
二層設有:客廳、主臥(附書房衣帽間、衛生間、陽臺)、臥室、衛生間、露臺。
三層設有2臥室、衛生間、露臺。 三層主要是居住區,來了客人讓客人居住在這一層。 圖紙之家-專注農村別墅/自建房設計18年,集合國內200余位經驗豐富的設計師,被評為口碑最好的農村建筑設計公司! |

130平米新農村自建房屋施工建筑圖紙及效果圖
占地:132平米
好看精致的三層自建房別墅設計圖,開間12米進深12米左右
占地:125.73平方米
農村4間2層樓房設計圖,戶型方正,四平八穩的二層農村別墅
占地:180平方米
二層復式農村別墅設計圖,進深12米,戶型堪稱完美
占地:193.2平方米
三層新農村別墅設計圖片及全套圖紙,外形對稱,帶露臺,這個戶
占地:160平方米
帶車庫現代三層樓房設計圖,外觀效果圖時尚、美觀
占地:160平方米
125平方米新中式農村自建三層別墅建筑設計圖紙及效果圖
占地:124平方米
小占地二層徽派別墅設計圖,白墻黛瓦韻味十足,太氣派了
占地:89.6平方米
2026最新款50萬左右農村三層別墅設計圖,客廳中空
占地:160平方米
最新網紅二層別墅,寬敞時尚沉穩大氣,布局實用正好滿足您的需
占地:110平方米
20萬農村自建三層別墅設計圖,外觀美觀,戶型實用
占地:105平方米
倆兄弟蓋房子的雙拼設計圖,小宅基地設計方案
占地:151.91平方米
60多平三層現代風格別墅設計圖,小戶型平屋頂
占地:66.4平方米
二層帶架空層的農村別墅設計圖,功能齊全,超越十里八村
占地:130平方米
造價低經濟簡單的二層農村自建房圖紙設計,簡潔實用
占地:136.08平方米
農村自建二層樓房設計圖及效果圖,二層房屋圖推薦
占地:105平方米
農村帶地下室二層半自建房屋設計圖,樓中樓設計,歐式風格
占地:140平方米
占地120平米清新脫俗簡單二層別墅設計方案,含效果圖
占地:119.01平方米
農村二層別墅設計圖,帶外觀效果圖,兄弟自建推薦
占地:多種戶型
新中式一層別墅設計圖紙,農村自建平房戶型方案圖
占地:183.7平方
推薦:10套新農村自建房設計圖,2026年最新設計
閱讀次數:4825737次
100套鄉村別墅圖片大全,2026年最新設計
閱讀次數:2492203次
6款農村蓋一層平房的設計圖,10萬元就能建起來
閱讀次數:1852637次
這11個一層農村自建房別墅火爆了朋友圈!我最喜歡戶型十!你呢
閱讀次數:750268次
農村6萬元建一層小別墅圖,你敢相信嗎
閱讀次數:567686次
農村5萬塊就能自建房,6套普通房子設計圖分享,你沒看錯!
閱讀次數:419410次
8套農村漂亮三間平房圖片,非常適合在農村修建!
閱讀次數:411197次
農村自建房化糞池怎么做?附方案及施工過程
閱讀次數:391783次
農村一層三間平房設計圖,告別土氣養老房,讓人忍不住點贊
閱讀次數:350581次
新農村二層樓房圖片造價12萬,挑一套回家建房吧!
閱讀次數:349126次
