
|
層數: 二層 結構形式:磚混結構 開間:15.6米 進深:9.6米 占地面積:133平方米 總建筑面積:241.75平方米 建筑高度:9.65米 主體造價:22萬
該戶型一層采用復古、耐臟且耐看的文化石裝飾,二樓采用淺黃色真石漆,搭配穩重的寶藍色坡面屋頂,配色氣質優雅。功能多樣化設計,設有車庫、陽臺、臥室套房等,二樓有露臺,方便賞金及晾曬。 平面圖展示
一層平面圖 一層:車庫、玄關、臥室、客廳、餐廳、廚房、公衛、洗漱間
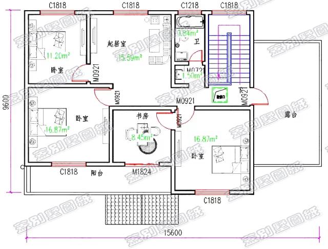
二層平面圖 二層:起居室、臥室(帶書房、陽臺)、臥室×2、公衛、洗漱臺、露臺 圖紙之家-專注農村別墅/自建房設計18年,集合國內200余位經驗豐富的設計師,被評為口碑最好的農村建筑設計公司! |

小型三層別墅cad建筑圖紙帶效果圖,帶屋頂露臺
占地:101平方米左右
農村二層帶車庫樓房設計圖,帶外觀效果圖片
占地:125平方米
農村三層四合院別墅設計圖紙,自建房建這棟面子十足
占地:227.49平方米
140平方米新農村二層自建平屋頂房屋設計圖紙帶外觀效果圖
占地:140平方米左右
徽派3層農村小別墅設計圖,廣東新農村住宅設計圖集
占地:110平方米
新農村兩層帶露臺自建房設計圖,造價30萬內
占地:170平方米
現代二層樓房圖片造價25萬,含全套設計圖,風格獨特
占地:多戶型可選
10×12米三層別墅戶型,挑空大客廳設計,圈粉無數的爆款方案
占地:120平方米
小面寬大進深三層別墅圖紙設計,戶型非常實用經典
占地:171.39平方米
面寬不到8米的農村二層半別墅建筑圖紙及效果圖
占地:96平方米左右
農村7字形漂亮房子設計圖及外觀效果圖
占地:189.3平方米
60多平三層現代風格別墅設計圖,小戶型平屋頂
占地:66.4平方米
2026新款戶型三層新農村別墅房屋設計圖紙,外觀對稱
占地:160平方米
農村兩間三層房屋設計圖,含外觀圖片
占地:120平方米
戳中年輕人喜好!時尚三層自建房,簡約時尚設計,住著舒適自然
占地:169.76平方米
140平方米新農村三層房屋設計圖,磚混結構帶地下室
占地:138平方米左右
建一棟就成了村里的門面擔當!三層歐式別墅,左右對稱太氣派
占地:173.67平方米
美式二層別墅設計圖,含外觀效果圖,造型精美
占地:144平方米
占地90平新中式經濟二層小別墅自建房設計圖,僅15萬
占地:89.3平方米
95平米二層別墅必蓋戶型圖,造型洋氣,布局接地氣,趕緊回村建
占地:95.38平方米
推薦:10套新農村自建房設計圖,2026年最新設計
閱讀次數:4825737次
100套鄉村別墅圖片大全,2026年最新設計
閱讀次數:2492203次
6款農村蓋一層平房的設計圖,10萬元就能建起來
閱讀次數:1852637次
這11個一層農村自建房別墅火爆了朋友圈!我最喜歡戶型十!你呢
閱讀次數:750268次
農村6萬元建一層小別墅圖,你敢相信嗎
閱讀次數:567686次
農村5萬塊就能自建房,6套普通房子設計圖分享,你沒看錯!
閱讀次數:419410次
8套農村漂亮三間平房圖片,非常適合在農村修建!
閱讀次數:411197次
農村自建房化糞池怎么做?附方案及施工過程
閱讀次數:391783次
農村一層三間平房設計圖,告別土氣養老房,讓人忍不住點贊
閱讀次數:350581次
新農村二層樓房圖片造價12萬,挑一套回家建房吧!
閱讀次數:349126次
