
|
眾所周知,閣樓有防潮防熱等功能,農村自建房在頂層做一個半層的閣樓可以晾曬糧食干菜,而有一個連接閣樓的露臺就顯得方便很多,閣樓本身不需要增加很多建筑成本,同時能多出一個溫馨的私密空間。下面介紹3套帶有閣樓的農村一層半別墅,中式、歐式和現代你更喜歡哪一款。 第一棟
通常帶閣樓的別墅多見于一層半結構,而這棟別墅還是主樓+附樓的形式,占地面積大的宅地才可以蓋這種,多余的地方還能圍起一個院子。
閣樓通向露臺,車庫旁邊有外樓梯還能上露臺。院子露臺都能滿足晾曬的需要。
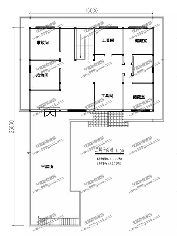
平面圖 帶有院子的戶型是很多建房朋友中意的形式,不僅有車庫還有生活功能齊全。 一層有臥室5間,進門神臺和門廳,有書房位居中央。二層和大部分農村自建房一樣用于存放雜物
第二棟
20萬就能蓋起一棟一層的別墅,基本上打一年工就能蓋起來了。大氣的戶型結構,外面用走廊形成室內和自然中間過渡的緩沖地帶。
背面為了節省成本,造型很簡單,通過一些線條的勾勒和色彩的層次打造立體效果。
平面圖 進門堂屋和神臺,仿佛是約定俗成的規定。當然也有很多農村不講究這個。生活起居活動全部在一層,有臥室5間,有廚房、餐廳和書房,也有樓梯通向二層的閣樓。
第三棟
符合中式合院結構的特點,正廂房比兩邊要稍微高點,中間正屋局部兩層。
平面圖 大門入戶都有臺階上下,右邊餐廳廚房等潔污區。左邊臥室,中間是中堂,用于接待外客。 基本每個臥室都有衛生,也有一個小樓梯通向二層閣樓,閣樓精裝后還能成為一個獨立的私密空間。
圖紙之家-專注農村別墅/自建房設計18年,集合國內200余位經驗豐富的設計師,被評為口碑最好的農村建筑設計公司! |

三十萬農村別墅設計圖帶外觀圖片,30萬造價別墅展示
占地:125平方米
大面寬一層別墅設計圖紙,新中式風格兩款戶型
占地:多戶型可選
爆款二層自建房別墅設計圖,不追求奢華,建個溫馨實用的家
占地:100平方米
80平方米新農村三層房屋設計圖,新農村住宅圖紙精選
占地:80平方米
100平復式三層別墅房屋設計圖,客廳挑高,采光好,臥室多
占地:100平方米
三層歐式自建房別墅設計方案,11x11米洋氣實用,飽受大家好評
占地:127平方米
鄉村三層別墅設計圖紙,帶屋頂花園(含效果圖)
占地:150平方米
進深14米的二層小別墅設計圖,農村自建房好方案
占地:144平方米左右
異形宅基地二層農村別墅設計圖,現代風時尚又大氣
占地:242.03平方米
三層新農村140平方米房屋設計圖紙,全套施工圖及效果圖
占地:140平方米
三層農村小別墅設計圖,一層帶商鋪,占地110平米,經濟實用
占地:110平方米
新農村自建二層小樓圖,時尚大方,外型精美,室內布局也很贊
占地:137平方米
四層別墅豪宅外觀效果圖及全套施工圖,高端歐式風格
占地:176.97平方米
二層復式小洋樓設計圖,外觀精致,戶型合理
占地:115平方米
一層中式三合院農村自建別墅圖,面寬18米帶堂屋設計
占地:165.72平方米
帶閣樓兩層半雙拼別墅房屋設計圖,帶外觀效果圖
占地:240平方米
小戶型二層農村別墅設計圖,占地140平經典漂亮
占地:139.54平方米
180平方米新農村自建二層小別墅設計圖及效果圖,15X13米
占地:183平方米
15×12米一層農村寶藏戶型,適合養老房,看完鄰居直接要圖紙!
占地:180平方米
帶地下室+挑空客廳,農村三層洋樓別墅誰家圖在
占地:97.74平方米
推薦:10套新農村自建房設計圖,2026年最新設計
閱讀次數:4825737次
100套鄉村別墅圖片大全,2026年最新設計
閱讀次數:2492203次
6款農村蓋一層平房的設計圖,10萬元就能建起來
閱讀次數:1852637次
這11個一層農村自建房別墅火爆了朋友圈!我最喜歡戶型十!你呢
閱讀次數:750268次
農村6萬元建一層小別墅圖,你敢相信嗎
閱讀次數:567686次
農村5萬塊就能自建房,6套普通房子設計圖分享,你沒看錯!
閱讀次數:419410次
8套農村漂亮三間平房圖片,非常適合在農村修建!
閱讀次數:411197次
農村自建房化糞池怎么做?附方案及施工過程
閱讀次數:391783次
農村一層三間平房設計圖,告別土氣養老房,讓人忍不住點贊
閱讀次數:350581次
新農村二層樓房圖片造價12萬,挑一套回家建房吧!
閱讀次數:349126次
